Get discounts,
promos, see our
newest plans
and more!
+ 15% off any plan
See terms opt out anytime


No Thanks

Thanks for
signing up!


Use Code:

SIGNUP15

And save 15% off any plan!

Check your email for details.

CLOSE
Search Plans
Customer Reviews
     
15% off ALL House Plans Sitewide
15% off ALL House Plans Sitewide
15% off ALL House Plans Sitewide

Code: SAVE15
Sale ends midnight 4/22/2026 PST

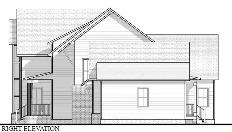
Nyssa | 4 Bedroom Modern Farmhouse Style House, Plan 11403

 
 

Sq Ft
3,266 FT²

Beds
4

Baths
3.5

Stories
2

Garage
2

Depth
52'

Width
84'
On Sale
$1,185.75
$1,395.00
© copyright by designer
 View All 18 Images | Photographs may reflect modified home
Sq Ft
3,266 FT²
Beds
4
Baths
3.5
Stories
2
Garage
2
Depth
52'
Width
84'
 
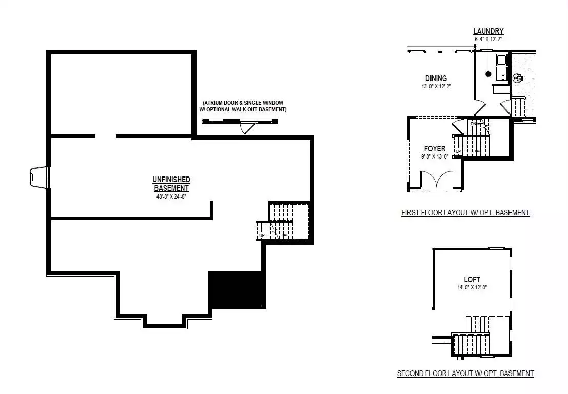
Click to Zoom In on Floor Plan
© copyright by designer
 
 

About This Plan

House Plan 11403 offers bold modern farmhouse curb appeal and a flexible layout you can really make your own! Inside its two-story layout, you'll find 3,266 square feet with four bedrooms and three-and-a-half baths. The foyer is open to the living area on the side and the dining area straight ahead while the island kitchen fills out the corner of these common spaces. You can choose to have a two-sided fireplace between the living area and kitchen to create a more formal floor plan with definition, or you can open it up by putting the fireplace on the wall instead. The office and powder room are in a hall by the living area while the primary suite is privately tucked off the kitchen. It boasts a five-piece bath and a walk-in closet. Across the main floor, the laundry/mudroom by the dining space connects the two-car garage to the house. Head up the stairs in the foyer and you'll come to a loft space. Three bedrooms--including a private suite, another with direct bathroom access, and a third with nearby hall access to the second's bathroom--are just down the hallway. Everybody gets a walk-in closet!  

See All Plan Options
 

FEATURES & DETAILS

Kitchen features
Country Kitchen
Kitchen Island
Pantry
Bedroom features
Double Vanity Sink
Primary Bdrm Main Floor
Separate Tub and Shower
Split Bedrooms
Walk-in Closet
Exterior features
Covered Front Porch
Covered Rear Porch
Additional features
Dining Room
Family Room
Fireplace
Formal LR
Foyer
Home Office
Laundry 1st Fl
Loft / Balcony
Mud Room
Open Floor Plan
Garage Location
Side
Garage Options
Attached
Front-entry
4,231 Ft
2
Total Structure
3,266 Ft
2
Total Heated
1,857 Ft
2
1st Floor
1,409 Ft
2
2nd Floor
1,857 Ft
2
Lower Floor
4
Bedrooms
3.5
Bathrooms
2
Garage
2
Stories
84' 0"
Width
52' 0"
Depth
29' 0"
Height
9' 0"
Main Floor Ceiling
8' 0"
Upper Floor Ceiling
9' 0"
Lower Floor Ceiling
2x4
Framing
Combination
Roof Framing
9/12
Primary Roof Pitch
3/12
Secondary Roof Pitch
Single
Dwelling Number
None
Bonus Access

Unheated Living Space
724 Ft
2
Garage
63 Ft
2
Front Porch
178 Ft
2
Rear Porch
 

Plan Package Options

 Select Plan Package
 Need To Reverse Plan? (Optional)
  Select Foundation Option
  Add-Ons (Optional)
INCLUDED WITH YOUR PURCHASE

Free Ground shipping in the U.S.

FREE

Home Building & Product Ideas Organizer

Sub Total
$0
Free Shipping
QUESTIONS OR NEED HELP ORDERING? LIVE CHAT OR CALL US AT 866-214-2242
Plan Packages

Each set of construction documents typically includes detailed, dimensioned floor plans, basic electric layouts, cross sections, roof details, cabinet layouts, and elevations, as well as general IRC specifications. Please refer to the ARCHITECT or DESIGNER’S PLAN DETAILS link above the floor plan on any plan page to determine the specific details for each plan. Our house plans contain virtually all of the information required to construct your home. The typical plan set does not include plumbing, HVAC drawings, or engineering stamps due to the wide variety of specific needs, local codes, and climatic conditions. These details and specifications are easily obtained from your builder, contractors, and/or local engineers.

BEST PRICE GUARANTEE

Find the same house plan (modifications included!) and package for less on another site, show us the URL and we'll give you the difference plus an additional 10% back.

100% SATISFACTION GUARANTEE

We offer a one-time, 30-day exchange policy for unused, printed plan packages in the event you aren't satisfied with your first selection.

 
 

Plan 11403  Back to plan page

Loading...