Get discounts,
promos, see our
newest plans
and more!
+ 15% off any plan
See terms opt out anytime


No Thanks

Thanks for
signing up!


Use Code:

SIGNUP15

And save 15% off any plan!

Check your email for details.

CLOSE
Search Plans
Customer Reviews
     
15% off ALL House Plans Sitewide
15% off ALL House Plans Sitewide
15% off ALL House Plans Sitewide

Code: HONOR
Sale ends midnight 5/29/2026 PST

Torani 3 Bedroom Contemporary Style House, Plan 10041

 
 

Sq Ft
1,448 FT²

Beds
3

Baths
2

Stories
2

Garage
2

Depth
50'

Width
40'
On Sale
$1,316.65
$1,549.00
© copyright by designer
 View All 7 Images | Photographs may reflect modified home
Sq Ft
1,448 FT²
Beds
3
Baths
2
Stories
2
Garage
2
Depth
50'
Width
40'
 
Click to Zoom In on Floor Plan
© copyright by designer
 
 

About This Plan

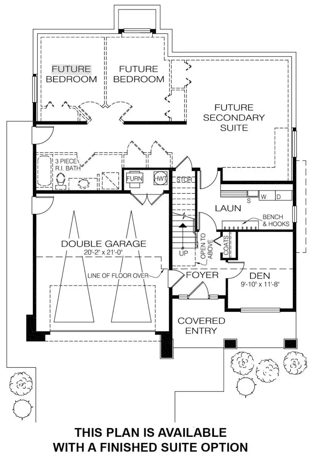
The Torani is a sleek three-bedroom family home with a contemporary design and thoughtful layout. A covered entrance with brick pilasters welcomes you into the foyer, where a spacious den doubles as an ideal home office. Upstairs, the great room boasts a coffered ceiling, a gas fireplace with built-in shelving, and sliding doors to a covered deck with a glass balustrade. The kitchen, separated from the dining area by a prep island, features a window overlooking the patio and backyard. The private primary suite offers garden views, an ensuite with a double sink and shower, and nearby linen storage. Two additional bedrooms share a three-piece bath and overlook the double garage. The ground level includes an unfinished two-bedroom suite with roughed-in plumbing, offering future flexibility. Exterior finishes of brick, stucco, and horizontal siding complete this modern gem. 

See All Plan Options
 

FEATURES & DETAILS

Kitchen features
Kitchen Island
L-Shaped
Pantry
Bedroom features
Double Vanity Sink
Family Style
Primary Bdrm Upstairs
Walk-in Closet
Exterior features
Covered Front Porch
Deck
Lot Options
Suited for sloping lot
Suited for view lot
Additional features
Dining Room
Fireplace
Foyer
Great Room
Home Office
In-law Suite
Laundry 1st Fl
Open Floor Plan
Unfinished Space
Garage Location
Under
Garage Options
Attached
Drive-under
Front-entry
2,702 Ft
2
Total Structure
1,448 Ft
2
Total Heated
1,237 Ft
2
1st Floor
1,365 Ft
2
2nd Floor
3
Bedrooms
2
Bathrooms
2
Garage
2
Stories
40' 0"
Width
50' 0"
Depth
24' 8"
Height
8' 0"
Main Floor Ceiling
9' 0"
Upper Floor Ceiling
8' 0"
Lower Floor Ceiling
9' 0"
Living/Great Room Ceiling
8' 0"
Foyer Ceiling
9' 0"
Primary Ceiling
2x6
Framing
Truss
Roof Framing
4/12
Primary Roof Pitch
Single
Dwelling Number

Unheated Living Space
475 Ft
2
Garage
220 Ft
2
Deck
 

Plan Package Options

 Select Plan Package
 Need To Reverse Plan? (Optional)
  Select Foundation Option
  Add-Ons (Optional)
INCLUDED WITH YOUR PURCHASE

Free Ground shipping in the U.S.

FREE

Home Building & Product Ideas Organizer

Sub Total
$0
Free Shipping

Note: B
QUESTIONS OR NEED HELP ORDERING? LIVE CHAT OR CALL US AT 866-214-2242
Plan Packages

Each set of construction documents typically includes detailed, dimensioned floor plans, basic electric layouts, cross sections, roof details, cabinet layouts, and elevations, as well as general IRC specifications. Please refer to the ARCHITECT or DESIGNER’S PLAN DETAILS link above the floor plan on any plan page to determine the specific details for each plan. Our house plans contain virtually all of the information required to construct your home. The typical plan set does not include plumbing, HVAC drawings, or engineering stamps due to the wide variety of specific needs, local codes, and climatic conditions. These details and specifications are easily obtained from your builder, contractors, and/or local engineers.

BEST PRICE GUARANTEE

Find the same house plan (modifications included!) and package for less on another site, show us the URL and we'll give you the difference plus an additional 10% back.

100% SATISFACTION GUARANTEE

We offer a one-time, 30-day exchange policy for unused, printed plan packages in the event you aren't satisfied with your first selection.

 
 

Plan 10041  Back to plan page

Loading...