Get discounts,
promos, see our
newest plans
and more!
+ 15% off any plan
See terms opt out anytime


No Thanks

Thanks for
signing up!


Use Code:

SIGNUP15

And save 15% off any plan!

Check your email for details.

CLOSE
Search Plans
Customer Reviews
     
20% off ALL House Plans Sitewide
20% off ALL House Plans Sitewide
20% off ALL House Plans Sitewide

Code: SAVE20
Sale ends midnight 3/22/2026 PST

Brookmere Court | 3 Bedroom Farmhouse Style House, Plan 11418

 
 

Sq Ft
2,395 FT²

Beds
3

Baths
2.5

Stories
1.5

Garage
2

Depth
67' 8"

Width
81' 4"
On Sale
$1,156.00
$1,445.00
© copyright by designer
 View All 13 Images | Photographs may reflect modified home
Sq Ft
2,395 FT²
Beds
3
Baths
2.5
Stories
1.5
Garage
2
Depth
67' 8"
Width
81' 4"
 
Click to Zoom In on Floor Plan
© copyright by designer
 
 

About This Plan

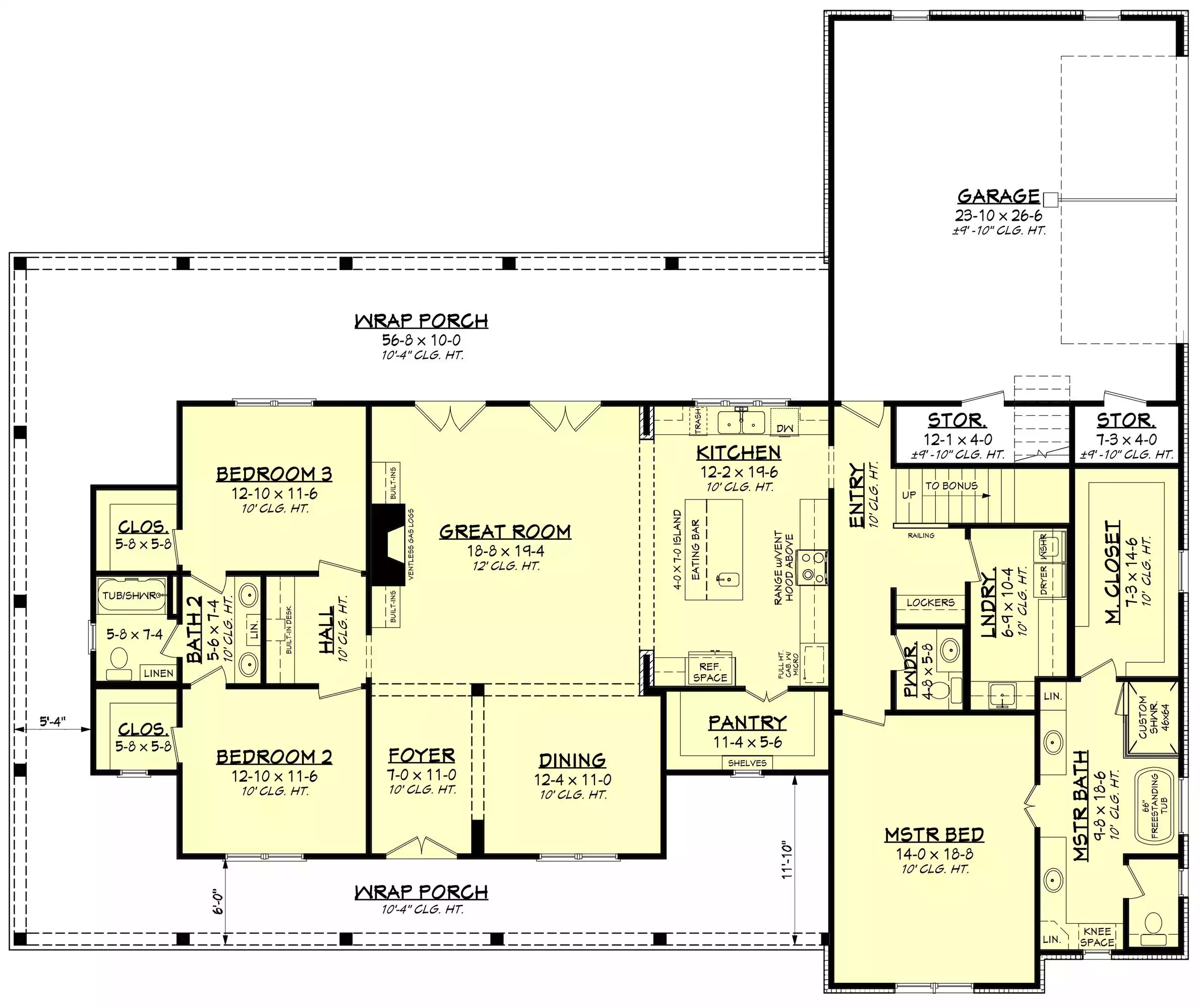
If you're looking for comfortable country living on one level, House Plan 11418 could be the one for you. This charming 2,395-square-foot farmhouse combines timeless style with thoughtful design for today’s families. The open floor plan features a bright great room with a 12' ceiling that flows naturally into the dining and kitchen spaces. A large U-shaped kitchen with an island and walk-in pantry provides the perfect setup for cooking and entertaining. All three split bedrooms include walk-in closets! The primary suite offers a luxurious five-piece bath and an especially large closet, of course. A cozy study nook adds functionality for the kids, while the extra half bath provides convenience for guests. The bonus space above the garage offers flexible options for a media room, home gym, or guest retreat. A classic wraparound porch on three sides makes outdoor living a daily pleasure. Designed with comfort and charm, this home is ideal for family gatherings and lasting memories. 

See All Plan Options
 

FEATURES & DETAILS

Kitchen features
Kitchen Island
U-Shaped
Walk-in Pantry
Bedroom features
Double Vanity Sink
Primary Bdrm Main Floor
Separate Tub and Shower
Split Bedrooms
Walk-in Closet
Exterior features
Covered Front Porch
Covered Rear Porch
Wraparound Porch
Lot Options
Suited for corner lot
Additional features
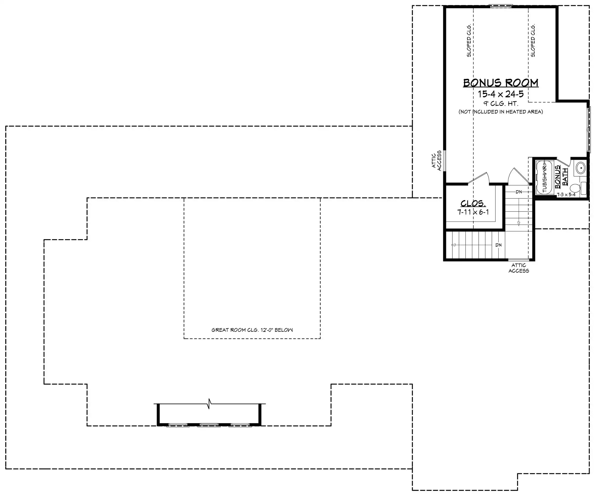
Bonus Room
Dining Room
Fireplace
Foyer
Great Room
Laundry 1st Fl
Mud Room
Open Floor Plan
Storage Space
Garage Location
Rear
Garage Options
Attached
Side-entry
4,903 Ft
2
Total Structure
2,395 Ft
2
Total Heated
2,395 Ft
2
1st Floor
3
Bedrooms
2.5
Bathrooms
2
Garage
1.5
Stories
81' 4"
Width
67' 8"
Depth
28' 0"
Height
10' 0"
Main Floor Ceiling
9' 0"
Upper Floor Ceiling
12' 0"
Living/Great Room Ceiling
2x4
Framing
Stick
Roof Framing
10/12
Primary Roof Pitch
12/12
Secondary Roof Pitch
Single
Dwelling Number
2nd Floor
Bonus Access

Unheated Living Space
662 Ft
2
Garage
87 Ft
2
Storage
1,213 Ft
2
Porch
546 Ft
2
Bonus Room
 

Plan Package Options

 Select Plan Package
 Need To Reverse Plan? (Optional)
  Select Foundation Option
  Add-Ons (Optional)
INCLUDED WITH YOUR PURCHASE

Free Ground shipping in the U.S.

FREE

Home Building & Product Ideas Organizer

Sub Total
$0
Free Shipping
QUESTIONS OR NEED HELP ORDERING? LIVE CHAT OR CALL US AT 866-214-2242
Plan Packages

Each set of construction documents includes detailed, dimensioned floor plans, basic electric layouts, cross sections, roof details, cabinet layouts and elevations, as well as general IRC specifications. They contain virtually all of the information required to construct your home. The typical plan set does not include any plumbing, HVAC drawings, or engineering stamps due to the wide variety of specific needs, local codes, and climatic conditions. These details and specifications are easily obtained from your builder, contractors, and/or local engineers.

BEST PRICE GUARANTEE

Find the same house plan (modifications included!) and package for less on another site, show us the URL and we'll give you the difference plus an additional 10% back.

100% SATISFACTION GUARANTEE

We offer a one-time, 30-day exchange policy for unused, printed plan packages in the event you aren't satisfied with your first selection.

 
 

Plan 11418  Back to plan page

Loading...