Get discounts,
promos, see our
newest plans
and more!
+ 15% off any plan
See terms opt out anytime


No Thanks

Thanks for
signing up!


Use Code:

SIGNUP15

And save 15% off any plan!

Check your email for details.

CLOSE
Search Plans
Customer Reviews
     
20% off ALL House Plans Sitewide
20% off ALL House Plans Sitewide
20% off ALL House Plans Sitewide

Code: LOVE20
Sale ends midnight 2/15/2026 PST

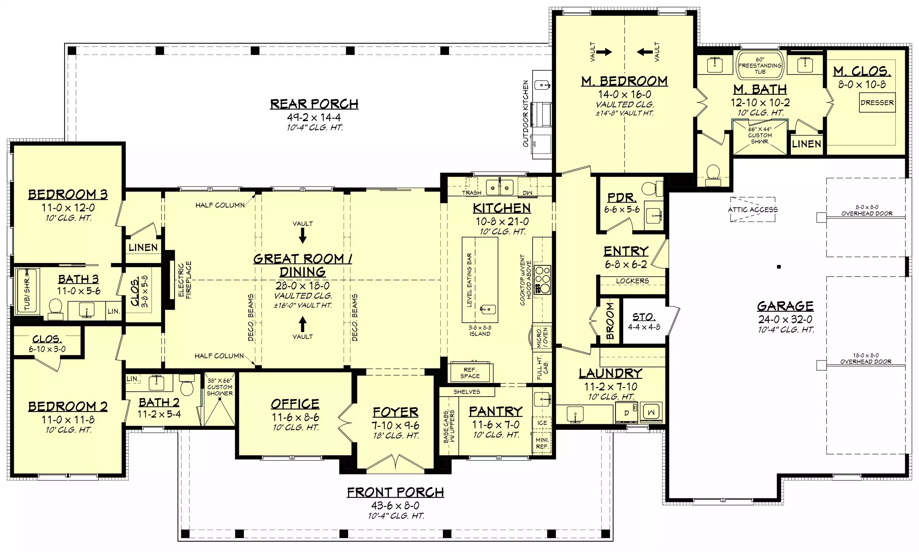
Falcon Terrace | 3 Bedroom Southern Style House, Plan 11978

 
 

Sq Ft
2,379 FT²

Beds
3

Baths
3.5

Stories
1

Garage
3

Depth
53' 6"

Width
91' 2"
On Sale
$1,156.00
$1,445.00
© copyright by designer
 View All 15 Images | Photographs may reflect modified home
Sq Ft
2,379 FT²
Beds
3
Baths
3.5
Stories
1
Garage
3
Depth
53' 6"
Width
91' 2"
 
Click to Zoom In on Floor Plan
© copyright by designer
 
 

About This Plan

With 2,379 square feet of heated living space, this home offers comfort and efficiency wrapped in a warm, inviting layout ideal for family life. The great room opens beneath a dramatic vaulted ceiling, giving the heart of the home a bright and airy feel that flows easily into the dining room and kitchen. A well-appointed kitchen includes a butler’s pantry, island, and peninsula, providing plenty of space for both cooking and casual conversations. The main floor primary suite is a peaceful retreat with its own vaulted ceiling, walk-in closet, and a relaxing bath featuring a separate tub and shower. Split bedrooms offer privacy for family or guests, while a dedicated home office and mud room give daily routines welcome support. Outdoor living is a true highlight, with a covered front porch, covered rear porch, and a full outdoor kitchen designed for entertaining. Thoughtful features throughout make this home a warm and functional space perfect for everyday comfort. 

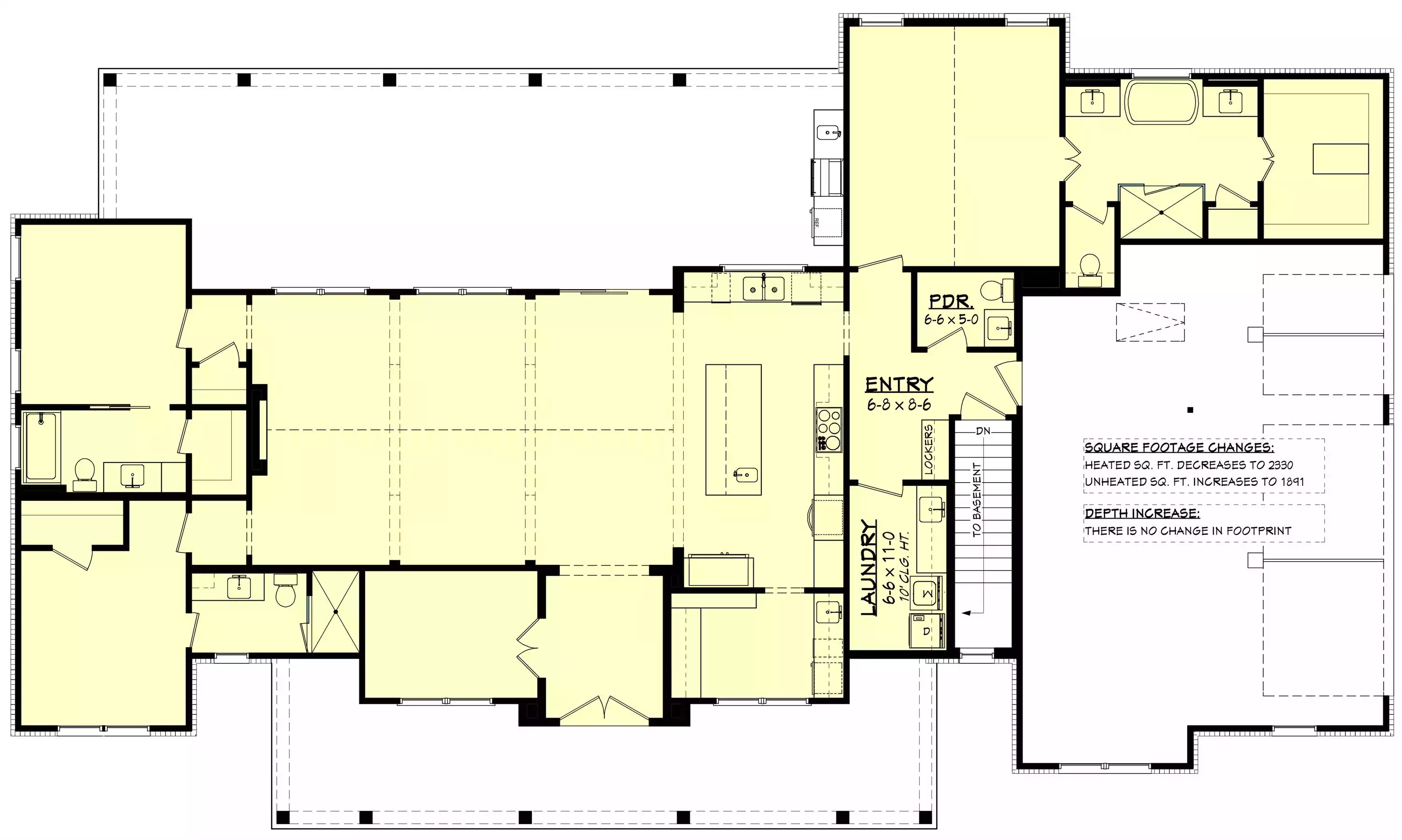
See All Plan Options
 

FEATURES & DETAILS

Kitchen features
Butler's Pantry
Kitchen Island
L-Shaped
Peninsula / Eating Bar
Bedroom features
Double Vanity Sink
Primary Bdrm Main Floor
Separate Tub and Shower
Split Bedrooms
Walk-in Closet
Exterior features
Covered Front Porch
Covered Rear Porch
Outdoor Kitchen
Outdoor Living Space
Lot Options
Suited for corner lot
Additional features
Dining Room
Fireplace
Foyer
Great Room
Home Office
Laundry 1st Fl
Mud Room
Open Floor Plan
Storage Space
Vaulted Great Room/Living
Vaulted Primary
Garage Location
Side
Garage Options
Attached
Side-entry
4,221 Ft
2
Total Structure
2,379 Ft
2
Total Heated
3
Bedrooms
3.5
Bathrooms
3
Garage
1
Stories
91' 2"
Width
53' 6"
Depth
27' 0"
Height
10' 0"
Main Floor Ceiling
16' 0"
Living/Great Room Ceiling
14' 8"
Primary Ceiling
2x4
Framing
Stick
Roof Framing
8/12
Primary Roof Pitch
3/12
Secondary Roof Pitch
4/12
Teritary Roof Pitch
Single
Dwelling Number

Unheated Living Space
795 Ft
2
Garage
22 Ft
2
Storage
1,025 Ft
2
Porch
364 Ft
2
Front Porch
661 Ft
2
Rear Porch
 

Plan Package Options

 Select Plan Package
 Need To Reverse Plan? (Optional)
  Select Foundation Option
  Add-Ons (Optional)
INCLUDED WITH YOUR PURCHASE

Free Ground shipping in the U.S.

FREE

Home Building & Product Ideas Organizer

Sub Total
$0
Free Shipping
QUESTIONS OR NEED HELP ORDERING? LIVE CHAT OR CALL US AT 866-214-2242
Plan Packages

Each set of construction documents includes detailed, dimensioned floor plans, basic electric layouts, cross sections, roof details, cabinet layouts and elevations, as well as general IRC specifications. They contain virtually all of the information required to construct your home. The typical plan set does not include any plumbing, HVAC drawings, or engineering stamps due to the wide variety of specific needs, local codes, and climatic conditions. These details and specifications are easily obtained from your builder, contractors, and/or local engineers.

BEST PRICE GUARANTEE

Find the same house plan (modifications included!) and package for less on another site, show us the URL and we'll give you the difference plus an additional 10% back.

100% SATISFACTION GUARANTEE

We offer a one-time, 30-day exchange policy for unused, printed plan packages in the event you aren't satisfied with your first selection.

 
 

Plan 11978  Back to plan page

Loading...