Get discounts,
promos, see our
newest plans
and more!
+ 15% off any plan
See terms opt out anytime


No Thanks

Thanks for
signing up!


Use Code:

SIGNUP15

And save 15% off any plan!

Check your email for details.

CLOSE
Search Plans
Customer Reviews
     
20% off ALL House Plans Sitewide
20% off ALL House Plans Sitewide
20% off ALL House Plans Sitewide

Code: HONOR20
Sale ends midnight 5/25/2026 PST

Livingston | 4 Bedroom Ranch Style House, Plan 12271

 
 

Sq Ft
2,658 FT²

Beds
4

Baths
3.5

Stories
1

Garage
2

Depth
77' 4"

Width
64' 2"
On Sale
$1,196.00
$1,495.00
© copyright by designer
 View All 8 Images | Photographs may reflect modified home
Sq Ft
2,658 FT²
Beds
4
Baths
3.5
Stories
1
Garage
2
Depth
77' 4"
Width
64' 2"
 
Click to Zoom In on Floor Plan
© copyright by designer
 
 

About This Plan

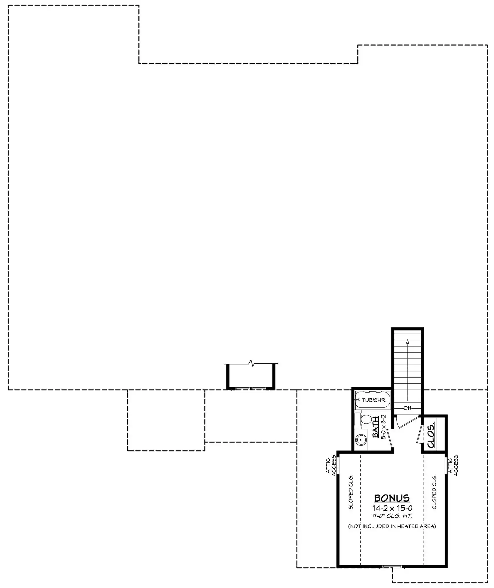
This thoughtfully designed home offers 2,658 square feet of heated living space with 4 bedrooms and 3.5 baths arranged for comfortable family living. The open floor plan connects the great room, dining area, and kitchen, creating a seamless and welcoming flow. The kitchen features a U-shaped layout with a central island, peninsula eating bar, and walk-in pantry for generous storage and prep space. The primary suite is located on the main floor and includes a walk-in closet along with a private bath featuring a separate tub and shower. Split bedrooms provide added privacy while keeping shared living areas easily accessible. A bonus room on the second floor adds flexible space for guests, hobbies, or relaxation. Covered front and rear porches extend the living space outdoors, completing a home that feels warm, functional, and inviting. 

See All Plan Options
 

FEATURES & DETAILS

Kitchen features
Kitchen Island
Peninsula / Eating Bar
U-Shaped
Walk-in Pantry
Bedroom features
Double Vanity Sink
Primary Bdrm Main Floor
Separate Tub and Shower
Split Bedrooms
Walk-in Closet
Exterior features
Covered Front Porch
Covered Rear Porch
Lot Options
Suited for corner lot
Additional features
Bonus Room
Dining Room
Foyer
Great Room
Laundry 1st Fl
Mud Room
Open Floor Plan
Storage Space
Garage Location
Front
Garage Options
Attached
Front-entry
4,108 Ft
2
Total Structure
2,658 Ft
2
Total Heated
2,658 Ft
2
1st Floor
4
Bedrooms
3.5
Bathrooms
2
Garage
1
Stories
64' 2"
Width
77' 4"
Depth
27' 0"
Height
10' 0"
Main Floor Ceiling
9' 0"
Upper Floor Ceiling
2x4
Framing
Stick
Roof Framing
8/12
Primary Roof Pitch
3/12
Secondary Roof Pitch
Single
Dwelling Number
2nd Floor
Bonus Access

Unheated Living Space
677 Ft
2
Garage
44 Ft
2
Storage
464 Ft
2
Porch
171 Ft
2
Front Porch
293 Ft
2
Rear Porch
315 Ft
2
Bonus Room
 

Plan Package Options

 Select Plan Package
 Need To Reverse Plan? (Optional)
  Select Foundation Option
  Add-Ons (Optional)
INCLUDED WITH YOUR PURCHASE

Free Ground shipping in the U.S.

FREE

Home Building & Product Ideas Organizer

Sub Total
$0
Free Shipping
QUESTIONS OR NEED HELP ORDERING? LIVE CHAT OR CALL US AT 866-214-2242
Plan Packages

Each set of construction documents typically includes detailed, dimensioned floor plans, basic electric layouts, cross sections, roof details, cabinet layouts, and elevations, as well as general IRC specifications. Please refer to the ARCHITECT or DESIGNER’S PLAN DETAILS link above the floor plan on any plan page to determine the specific details for each plan. Our house plans contain virtually all of the information required to construct your home. The typical plan set does not include plumbing, HVAC drawings, or engineering stamps due to the wide variety of specific needs, local codes, and climatic conditions. These details and specifications are easily obtained from your builder, contractors, and/or local engineers.

BEST PRICE GUARANTEE

Find the same house plan (modifications included!) and package for less on another site, show us the URL and we'll give you the difference plus an additional 10% back.

100% SATISFACTION GUARANTEE

We offer a one-time, 30-day exchange policy for unused, printed plan packages in the event you aren't satisfied with your first selection.

 
 

Plan 12271  Back to plan page

Loading...