Get discounts,
promos, see our
newest plans
and more!
+ 15% off any plan
See terms opt out anytime


No Thanks

Thanks for
signing up!


Use Code:

SIGNUP15

And save 15% off any plan!

Check your email for details.

CLOSE
Search Plans
Customer Reviews
     
15% off ALL House Plans Sitewide
15% off ALL House Plans Sitewide
15% off ALL House Plans Sitewide

Code: SAVE15
Sale ends midnight 5/3/2026 PST

Meadowrest Overlook | 4 Bedroom Ranch Style House, Plan 12095

 
 

Sq Ft
2,475 FT²

Beds
4

Baths
3.5

Stories
1

Garage
2

Depth
71' 2"

Width
69' 2"
On Sale
$1,228.25
$1,445.00
© copyright by designer
 View All 7 Images | Photographs may reflect modified home
Sq Ft
2,475 FT²
Beds
4
Baths
3.5
Stories
1
Garage
2
Depth
71' 2"
Width
69' 2"
 
Click to Zoom In on Floor Plan
© copyright by designer
 
 

About This Plan

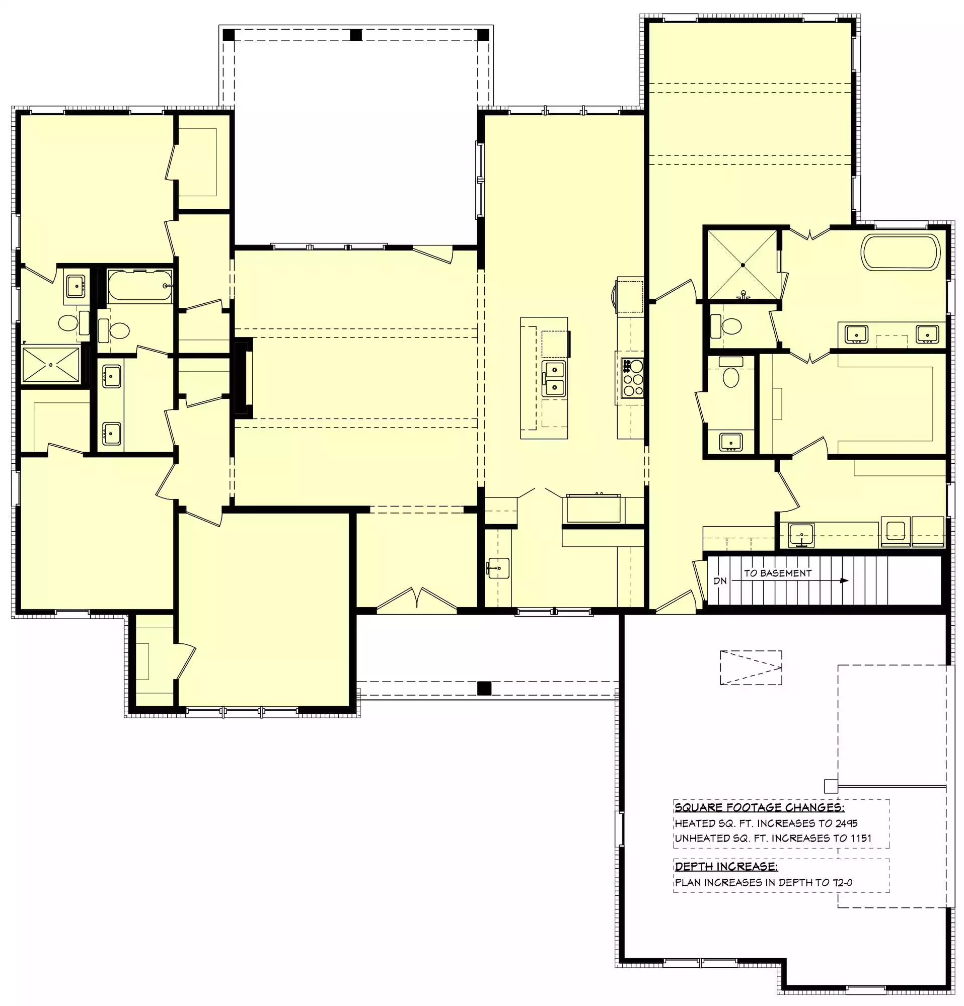
With 2475 heated square feet, this 4-bedroom home offers a warm and inviting layout designed for easy everyday living. The great room features a tall ceiling that fills the space with light while connecting smoothly to the dining room and country kitchen. The kitchen includes an island, peninsula, butler’s pantry, and an L-shaped work area that supports both casual meals and larger gatherings. The main-floor primary bedroom provides convenience with a walk-in closet, double vanity sink, and a separate tub and shower. Split bedrooms help create privacy for family members or guests. A home office, mud room, and first-floor laundry add comfort and organization to daily routines. With covered front and rear porches extending your outdoor living space, this home brings relaxation and connection into every corner. It is a welcoming design that blends comfort with practical living. 

See All Plan Options
 

FEATURES & DETAILS

Kitchen features
Butler's Pantry
Country Kitchen
Kitchen Island
L-Shaped
Peninsula / Eating Bar
Bedroom features
Double Vanity Sink
Primary Bdrm Main Floor
Separate Tub and Shower
Split Bedrooms
Walk-in Closet
Exterior features
Covered Front Porch
Covered Rear Porch
Outdoor Living Space
Lot Options
Suited for corner lot
Additional features
Dining Room
Fireplace
Foyer
Great Room
Home Office
Laundry 1st Fl
Mud Room
Open Floor Plan
Garage Location
Front
Garage Options
Attached
Side-entry
3,548 Ft
2
Total Structure
2,475 Ft
2
Total Heated
2,475 Ft
2
1st Floor
4
Bedrooms
3.5
Bathrooms
2
Garage
1
Stories
69' 2"
Width
71' 2"
Depth
29' 0"
Height
10' 0"
Main Floor Ceiling
12' 0"
Living/Great Room Ceiling
12' 0"
Foyer Ceiling
2x4
Framing
Stick
Roof Framing
10/12
Primary Roof Pitch
5/12
Secondary Roof Pitch
12/12
Teritary Roof Pitch
Single
Dwelling Number

Unheated Living Space
658 Ft
2
Garage
415 Ft
2
Porch
117 Ft
2
Front Porch
298 Ft
2
Rear Porch
 

Plan Package Options

 Select Plan Package
 Need To Reverse Plan? (Optional)
  Select Foundation Option
  Add-Ons (Optional)
INCLUDED WITH YOUR PURCHASE

Free Ground shipping in the U.S.

FREE

Home Building & Product Ideas Organizer

Sub Total
$0
Free Shipping
QUESTIONS OR NEED HELP ORDERING? LIVE CHAT OR CALL US AT 866-214-2242
Plan Packages

Each set of construction documents typically includes detailed, dimensioned floor plans, basic electric layouts, cross sections, roof details, cabinet layouts, and elevations, as well as general IRC specifications. Please refer to the ARCHITECT or DESIGNER’S PLAN DETAILS link above the floor plan on any plan page to determine the specific details for each plan. Our house plans contain virtually all of the information required to construct your home. The typical plan set does not include plumbing, HVAC drawings, or engineering stamps due to the wide variety of specific needs, local codes, and climatic conditions. These details and specifications are easily obtained from your builder, contractors, and/or local engineers.

BEST PRICE GUARANTEE

Find the same house plan (modifications included!) and package for less on another site, show us the URL and we'll give you the difference plus an additional 10% back.

100% SATISFACTION GUARANTEE

We offer a one-time, 30-day exchange policy for unused, printed plan packages in the event you aren't satisfied with your first selection.

 
 

Plan 12095  Back to plan page

Loading...