Get discounts,
promos, see our
newest plans
and more!
+ 15% off any plan
See terms opt out anytime


No Thanks

Thanks for
signing up!


Use Code:

SIGNUP15

And save 15% off any plan!

Check your email for details.

CLOSE
Search Plans
Customer Reviews
     
America’s Top Home Plans
Trusted House Plans From America's Leading Architects & Designers

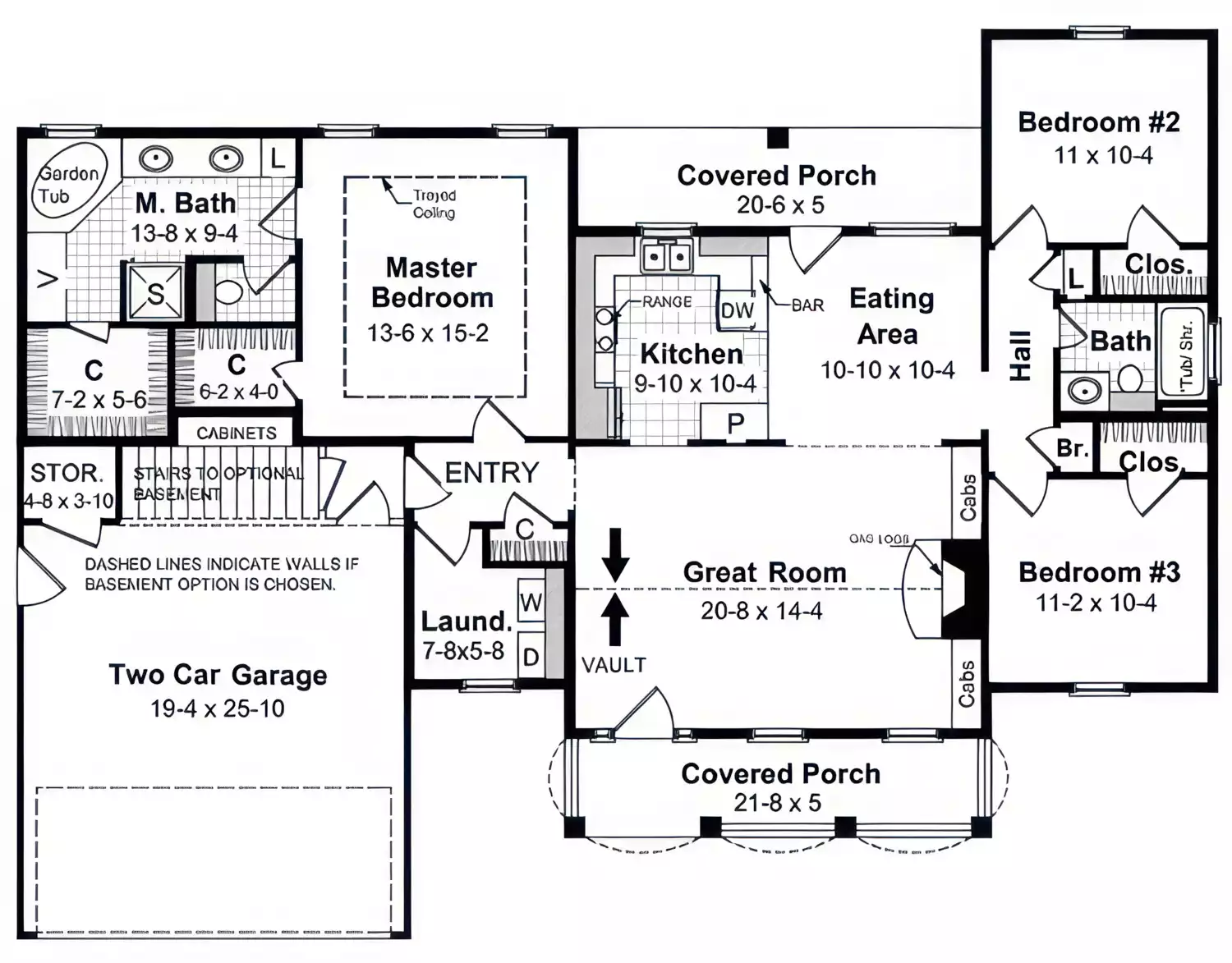
Fernridge Way | 3 Bedroom Ranch Style House, Plan 12079

 
 

Sq Ft
1,501 FT²

Beds
3

Baths
2

Stories
1

Garage
2

Depth
47' 4"

Width
61'
From
$1,300.00
© copyright by designer
 View All 3 Images | Photographs may reflect modified home | Video Tour
Sq Ft
1,501 FT²
Beds
3
Baths
2
Stories
1
Garage
2
Depth
47' 4"
Width
61'
 

 
Click to Zoom In on Floor Plan
© copyright by designer
 
 

About This Plan

This thoughtfully designed home offers 1,501 square feet of heated living space with 3 bedrooms and 2 baths arranged in a functional split-bedroom layout. A vaulted great room creates an open and inviting atmosphere, centered around a fireplace and flowing seamlessly into the dining area. The kitchen features a peninsula eating bar, pantry storage, and a cozy breakfast nook that supports everyday living. The main-floor primary suite includes his and hers closets, a double vanity, and a separate tub and shower for added comfort. A dedicated home office, mud room, and first-floor laundry enhance daily convenience throughout the home. Covered front and rear porches along with unfinished lower-level space provide flexibility for both outdoor living and future expansion. 

See All Plan Options
 

FEATURES & DETAILS

Kitchen features
Nook / Breakfast Area
Pantry
Peninsula / Eating Bar
Bedroom features
Double Vanity Sink
His and Hers Primary Closets
Primary Bdrm Main Floor
Separate Tub and Shower
Split Bedrooms
Walk-in Closet
Exterior features
Covered Front Porch
Covered Rear Porch
Lot Options
Suited for corner lot
Additional features
Fireplace
Home Office
Laundry 1st Fl
Mud Room
Open Floor Plan
Storage Space
Unfinished Space
Vaulted Great Room/Living
Garage Location
Front
Garage Options
Attached
Front-entry
Oversized
2,240 Ft
2
Total Structure
1,501 Ft
2
Total Heated
2,240 Ft
2
1st Floor
1,592 Ft
2
Lower Floor
3
Bedrooms
2
Bathrooms
2
Garage
1
Stories
61' 0"
Width
47' 4"
Depth
22' 0"
Height
9' 0"
Main Floor Ceiling
2x6
Framing
Stick
Roof Framing
8/12
Primary Roof Pitch
12/12
Secondary Roof Pitch
Single
Dwelling Number

Unheated Living Space
484 Ft
2
Garage
22 Ft
2
Storage
211 Ft
2
Porch
108 Ft
2
Front Porch
103 Ft
2
Rear Porch
 

Plan Package Options

 Select Plan Package
 Need To Reverse Plan? (Optional)
  Select Foundation Option
  Add-Ons (Optional)
INCLUDED WITH YOUR PURCHASE

Free Ground shipping in the U.S.

FREE

Home Building & Product Ideas Organizer

Sub Total
$0
Free Shipping
QUESTIONS OR NEED HELP ORDERING? LIVE CHAT OR CALL US AT 866-214-2242
Plan Packages

Each set of construction documents typically includes detailed, dimensioned floor plans, basic electric layouts, cross sections, roof details, cabinet layouts, and elevations, as well as general IRC specifications. Please refer to the ARCHITECT or DESIGNER’S PLAN DETAILS link above the floor plan on any plan page to determine the specific details for each plan. Our house plans contain virtually all of the information required to construct your home. The typical plan set does not include plumbing, HVAC drawings, or engineering stamps due to the wide variety of specific needs, local codes, and climatic conditions. These details and specifications are easily obtained from your builder, contractors, and/or local engineers.

BEST PRICE GUARANTEE

Find the same house plan (modifications included!) and package for less on another site, show us the URL and we'll give you the difference plus an additional 10% back.

100% SATISFACTION GUARANTEE

We offer a one-time, 30-day exchange policy for unused, printed plan packages in the event you aren't satisfied with your first selection.

 
 

Plan 12079  Back to plan page

Loading...