Get discounts,
promos, see our
newest plans
and more!
+ 15% off any plan
See terms opt out anytime


No Thanks

Thanks for
signing up!


Use Code:

SIGNUP15

And save 15% off any plan!

Check your email for details.

CLOSE
Search Plans
Customer Reviews
     
America’s Top Home Plans
Trusted House Plans From America's Leading Architects & Designers

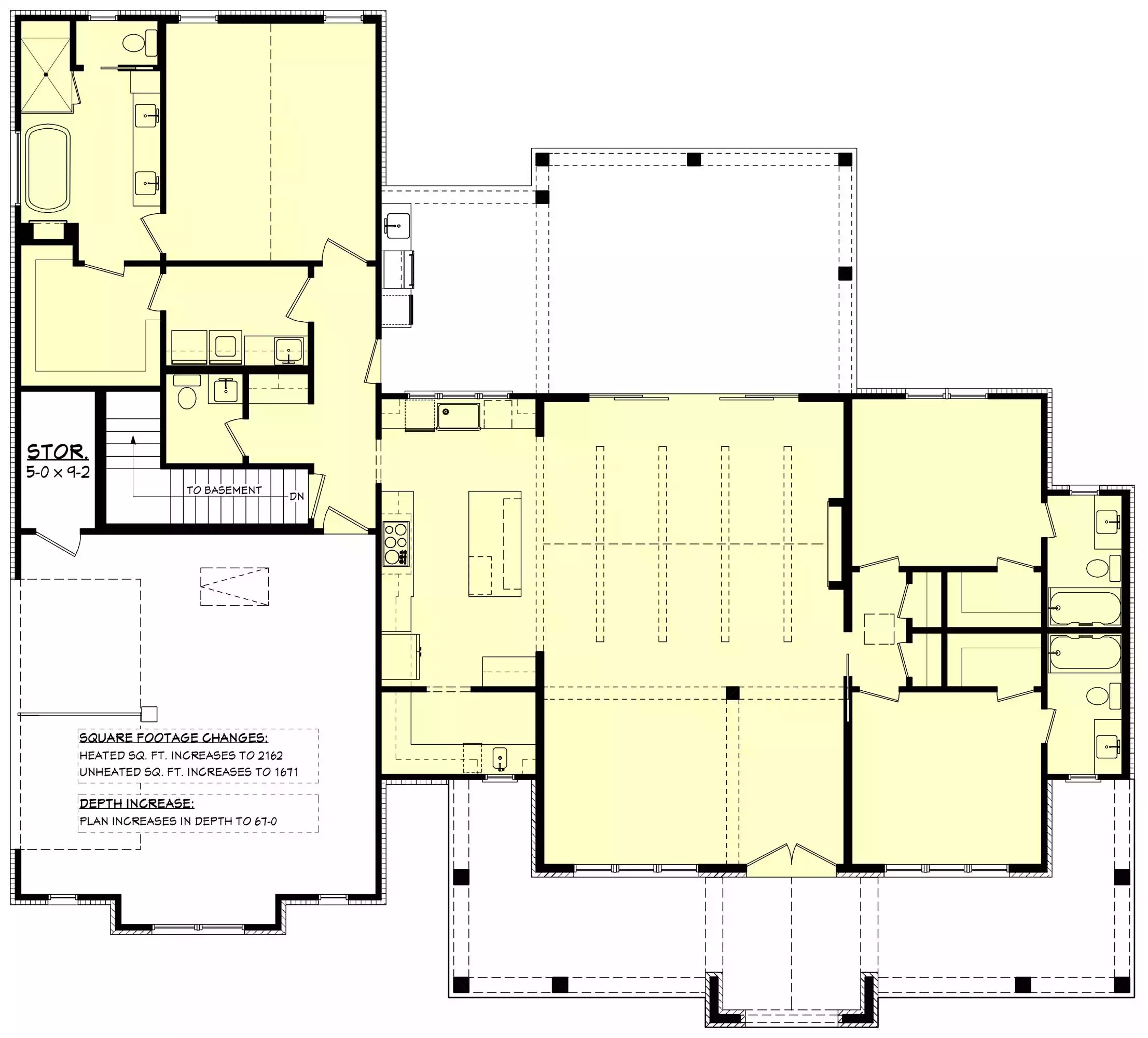
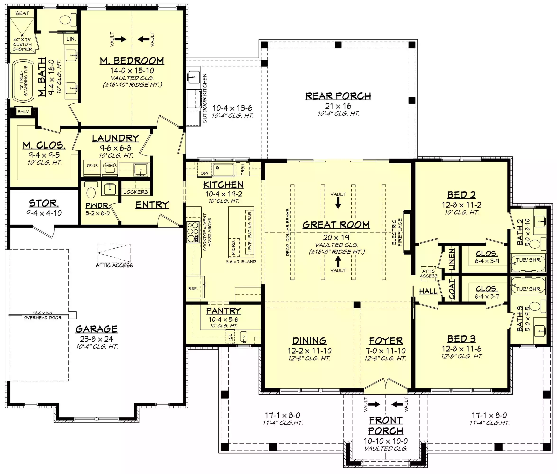
Swift Rapids | 3 Bedroom Modern Farmhouse Style House, Plan 12415

 
 

Sq Ft
2,143 FT²

Beds
3

Baths
3.5

Stories
1

Garage
2

Depth
62' 8"

Width
74' 2"
From
$1,445.00
© copyright by designer
 View All 15 Images | Photographs may reflect modified home
Sq Ft
2,143 FT²
Beds
3
Baths
3.5
Stories
1
Garage
2
Depth
62' 8"
Width
74' 2"
 
Click to Zoom In on Floor Plan
© copyright by designer
 
 

About This Plan

This 2,143 square foot home features 3 bedrooms and 3.5 bathrooms in a spacious single story layout designed for comfort and entertaining. A welcoming foyer opens into a dramatic great room with vaulted ceilings and a fireplace that creates a warm and inviting focal point. The open floor plan connects the great room to the dining area and kitchen, allowing gatherings and everyday living to flow naturally. The kitchen offers a U-shaped design with a large island, peninsula eating bar, and a convenient butler’s pantry for additional prep space and storage. The primary suite is privately located on the main floor and includes a vaulted ceiling, walk-in closet, and a bathroom with double vanity sinks along with a separate tub and shower. Two additional bedrooms are arranged in a split layout, each with convenient access to bathrooms for family members or guests. A mud room and first floor laundry add practical organization near the main living spaces. Covered front and rear porches extend the living area outdoors and include space for outdoor dining and an outdoor kitchen, creating the perfect setting for relaxing and entertaining. 

See All Plan Options
 

FEATURES & DETAILS

Kitchen features
Butler's Pantry
Kitchen Island
Peninsula / Eating Bar
U-Shaped
Bedroom features
Double Vanity Sink
Primary Bdrm Main Floor
Separate Tub and Shower
Split Bedrooms
Walk-in Closet
Exterior features
Covered Front Porch
Covered Rear Porch
Outdoor Kitchen
Outdoor Living Space
Lot Options
Suited for corner lot
Additional features
Fireplace
Foyer
Great Room
Laundry 1st Fl
Mud Room
Open Floor Plan
Storage Space
Vaulted Great Room/Living
Vaulted Primary
Garage Location
Front
Garage Options
Attached
Side-entry
3,728 Ft
2
Total Structure
2,143 Ft
2
Total Heated
2,143 Ft
2
1st Floor
3
Bedrooms
3.5
Bathrooms
2
Garage
1
Stories
74' 2"
Width
62' 8"
Depth
28' 0"
Height
10' 0"
Main Floor Ceiling
18' 0"
Living/Great Room Ceiling
12' 6"
Foyer Ceiling
16' 10"
Primary Ceiling
2x4
Framing
Stick
Roof Framing
12/12
Primary Roof Pitch
3.5/12
Secondary Roof Pitch
Single
Dwelling Number

Unheated Living Space
609 Ft
2
Garage
50 Ft
2
Storage
926 Ft
2
Porch
450 Ft
2
Front Porch
476 Ft
2
Rear Porch
 

Plan Package Options

 Select Plan Package
 Need To Reverse Plan? (Optional)
  Select Foundation Option
  Add-Ons (Optional)
INCLUDED WITH YOUR PURCHASE

Free Ground shipping in the U.S.

FREE

Home Building & Product Ideas Organizer

Sub Total
$0
Free Shipping
QUESTIONS OR NEED HELP ORDERING? LIVE CHAT OR CALL US AT 866-214-2242
Plan Packages

Each set of construction documents typically includes detailed, dimensioned floor plans, basic electric layouts, cross sections, roof details, cabinet layouts, and elevations, as well as general IRC specifications. Please refer to the ARCHITECT or DESIGNER’S PLAN DETAILS link above the floor plan on any plan page to determine the specific details for each plan. Our house plans contain virtually all of the information required to construct your home. The typical plan set does not include plumbing, HVAC drawings, or engineering stamps due to the wide variety of specific needs, local codes, and climatic conditions. These details and specifications are easily obtained from your builder, contractors, and/or local engineers.

BEST PRICE GUARANTEE

Find the same house plan (modifications included!) and package for less on another site, show us the URL and we'll give you the difference plus an additional 10% back.

100% SATISFACTION GUARANTEE

We offer a one-time, 30-day exchange policy for unused, printed plan packages in the event you aren't satisfied with your first selection.

 
 

Plan 12415  Back to plan page

Loading...