Get discounts,
promos, see our
newest plans
and more!
+ 15% off any plan
See terms opt out anytime


No Thanks

Thanks for
signing up!


Use Code:

SIGNUP15

And save 15% off any plan!

Check your email for details.

CLOSE
Search Plans
Customer Reviews
     
15% off ALL House Plans Sitewide
15% off ALL House Plans Sitewide
15% off ALL House Plans Sitewide

Code: SAVE15
Sale ends midnight 4/19/2026 PST

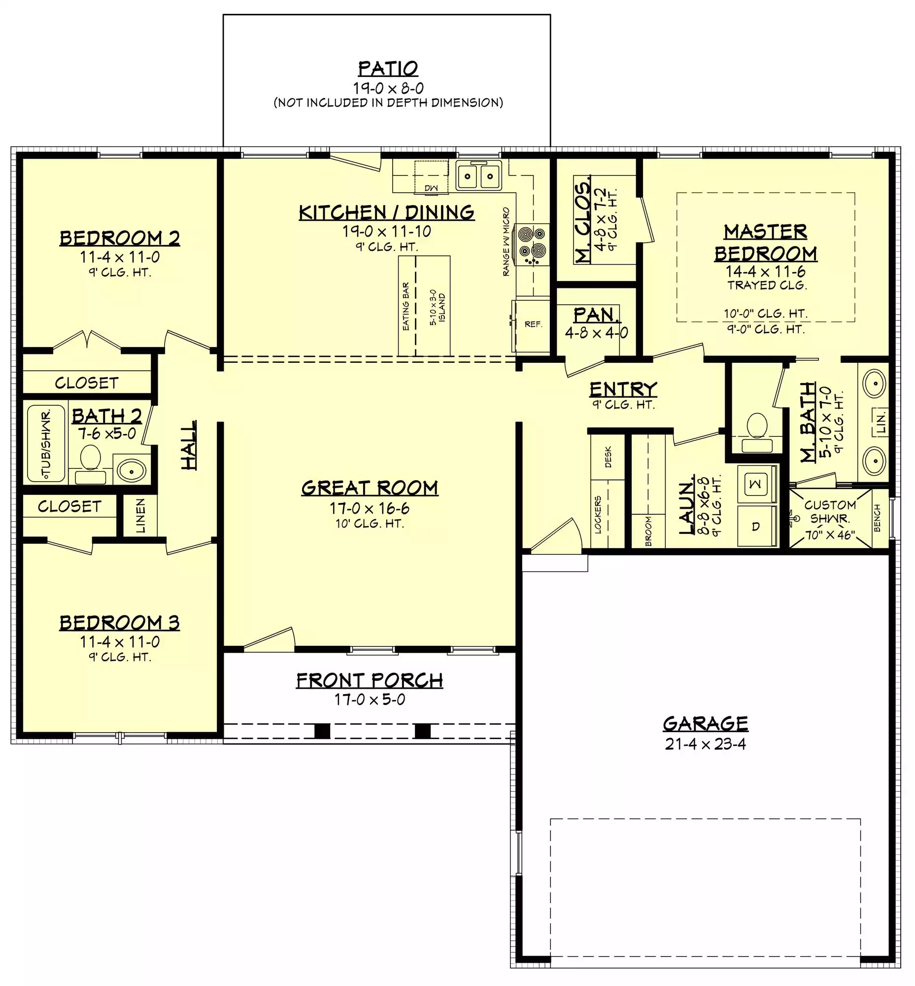
Aubrey 3 Bedroom Farmhouse Style House, Plan 6739

 
 

Sq Ft
1,416 FT²

Beds
3

Baths
2

Stories
1

Garage
2

Depth
47'

Width
51'
On Sale
$1,143.25
$1,345.00
© copyright by designer
 View All 7 Images | Photographs may reflect modified home
Sq Ft
1,416 FT²
Beds
3
Baths
2
Stories
1
Garage
2
Depth
47'
Width
51'
 
Click to Zoom In on Floor Plan
© copyright by designer
 
 

About This Plan

House Plan 6739 has everything today's families need in a chic and simple ranch format! Behind that country exterior, you'll find 1,416 square feet with three bedrooms and two bathrooms. Enter through the front door and you'll immediately be welcomed into the open great room, with clear views back to the island kitchen and dining area. The master suite is placed in the hallway with the laundry room and mudroom coming in from the garage. The other two bedrooms sit in the opposite hallway, separated by a hall bath. If you're looking for a neat, budget-friendly home with split bedrooms on one level, this would make a great choice!  

See All Plan Options
 

FEATURES & DETAILS

Kitchen features
Kitchen Island
L-Shaped
Pantry
Bedroom features
Double Vanity Sink
Primary Bdrm Main Floor
Split Bedrooms
Walk-in Closet
Exterior features
Covered Front Porch
Rear Porch
Lot Options
Suited for corner lot
Additional features
Dining Room
Great Room
Laundry 1st Fl
Mud Room
Open Floor Plan
Garage Location
Front
Garage Options
Attached
Front-entry
2,020 Ft
2
Total Structure
1,416 Ft
2
Total Heated
1,416 Ft
2
1st Floor
3
Bedrooms
2
Bathrooms
2
Garage
1
Stories
51'
Width
47'
Depth
21'
Height
9' 0"
Main Floor Ceiling
10' 0"
Living/Great Room Ceiling
10' 0"
Primary Ceiling
2x4
Framing
Stick
Roof Framing
8:12
Primary Roof Pitch
Single
Dwelling Number

Unheated Living Space
519 Ft
2
Garage
85 Ft
2
Porch
 

Plan Package Options

 Select Plan Package
 Need To Reverse Plan? (Optional)
  Select Foundation Option
  Add-Ons (Optional)
INCLUDED WITH YOUR PURCHASE

Free Ground shipping in the U.S.

FREE

Home Building & Product Ideas Organizer

Sub Total
$0
Free Shipping
QUESTIONS OR NEED HELP ORDERING? LIVE CHAT OR CALL US AT 866-214-2242
Plan Packages

Each set of construction documents typically includes detailed, dimensioned floor plans, basic electric layouts, cross sections, roof details, cabinet layouts, and elevations, as well as general IRC specifications. Please refer to the ARCHITECT or DESIGNER’S PLAN DETAILS link above the floor plan on any plan page to determine the specific details for each plan. Our house plans contain virtually all of the information required to construct your home. The typical plan set does not include plumbing, HVAC drawings, or engineering stamps due to the wide variety of specific needs, local codes, and climatic conditions. These details and specifications are easily obtained from your builder, contractors, and/or local engineers.

BEST PRICE GUARANTEE

Find the same house plan (modifications included!) and package for less on another site, show us the URL and we'll give you the difference plus an additional 10% back.

100% SATISFACTION GUARANTEE

We offer a one-time, 30-day exchange policy for unused, printed plan packages in the event you aren't satisfied with your first selection.

 
 

Plan 6739  Back to plan page

Loading...