Get discounts,
promos, see our
newest plans
and more!
+ 15% off any plan
See terms opt out anytime


No Thanks

Thanks for
signing up!


Use Code:

SIGNUP15

And save 15% off any plan!

Check your email for details.

CLOSE
Search Plans
Customer Reviews
     
15% off ALL House Plans Sitewide
15% off ALL House Plans Sitewide
15% off ALL House Plans Sitewide

Code: SAVE15
Sale ends midnight 4/19/2026 PST

Troutdale 3 Bedroom Country Style House, Plan 10066

 
 

Sq Ft
2,301 FT²

Beds
3

Baths
2.5

Stories
1.5

Garage
2

Depth
66' 8"

Width
83' 2"
On Sale
$1,228.25
$1,445.00
© copyright by designer
 View All 43 Images | Photographs may reflect modified home
Sq Ft
2,301 FT²
Beds
3
Baths
2.5
Stories
1.5
Garage
2
Depth
66' 8"
Width
83' 2"
 
Click to Zoom In on Floor Plan
© copyright by designer
 
 

About This Plan

If you’re looking for a great family home, see if House Plan 10066 could be the one for you! This 2,301-square-foot country ranch offers three split bedrooms, two-and-half bathrooms, and a beautiful open-concept floor plan. When you step inside, you’ll find the dining room to the side of the foyer. The U-shaped island kitchen overlooks the vaulted great room farther in. Make sure not to miss the hidden walk-in pantry that adds even more storage to the already well-appointed kitchen! In the hall behind the kitchen, you’ll find the powder room, office, laundry room, mudroom that connects to the garage, the stairs up to the bonus, and the luxurious primary suite. With a tray ceiling in the bedroom, a five-piece bath, and a walk-in closet, this suite will serve you in style. The other two bedrooms are clear on the opposite side of the house. They have unique hallways in front and back, off the great room, but share a large Jack-and-Jill bath where each bedroom has its own vanity and walk-in closet while they share the toilet and tub/shower. Need more than all this? There’s a workbench in the garage as well as a large storage closet, and you’ll enjoy covered porches in front and back, too! 

See All Plan Options
 

FEATURES & DETAILS

Kitchen features
Kitchen Island
U-Shaped
Walk-in Pantry
Bedroom features
Double Vanity Sink
Primary Bdrm Main Floor
Separate Tub and Shower
Split Bedrooms
Walk-in Closet
Exterior features
Covered Front Porch
Covered Rear Porch
Lot Options
Suited for view lot
Additional features
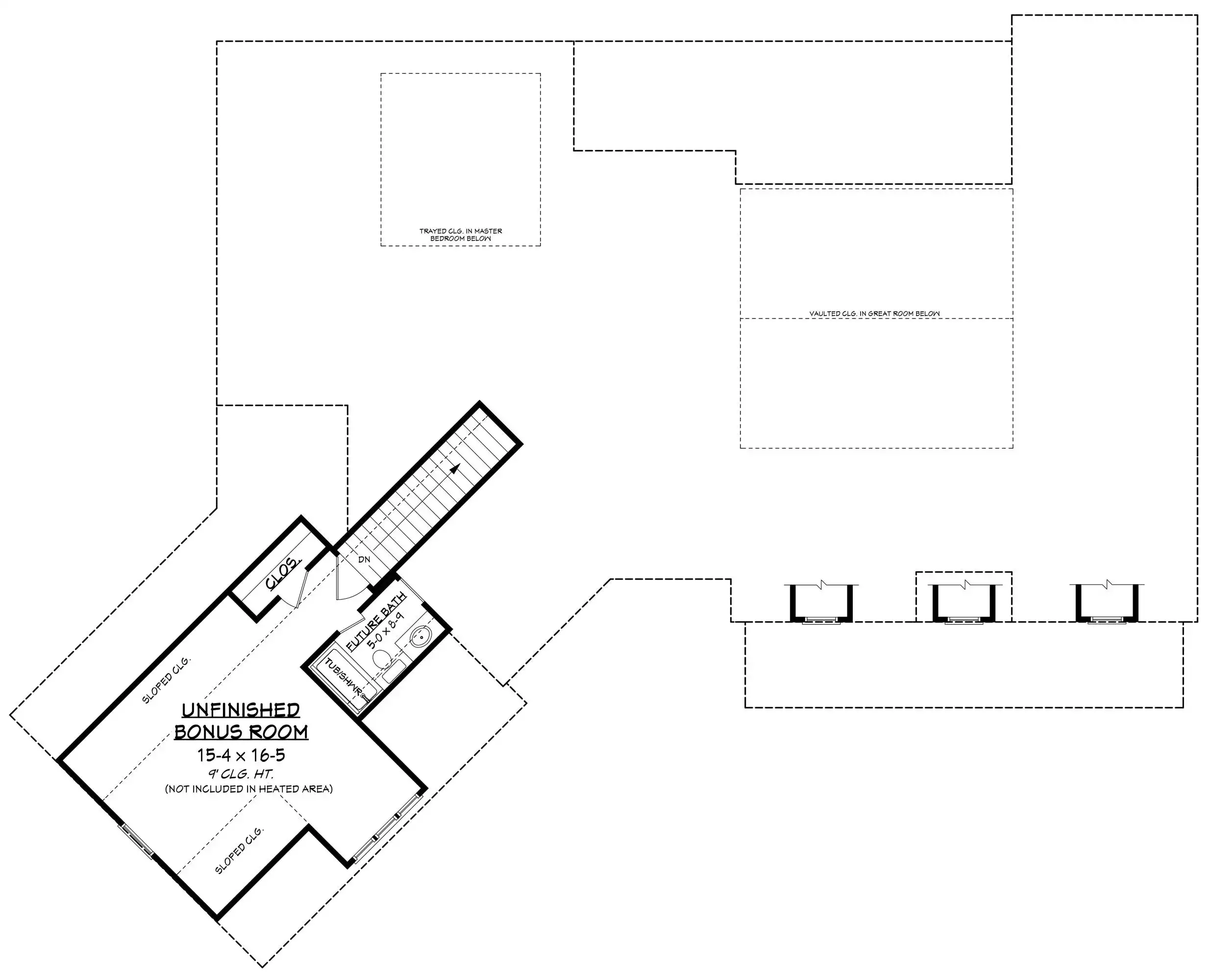
Bonus Room
Dining Room
Fireplace
Foyer
Great Room
Home Office
Laundry 1st Fl
Mud Room
Open Floor Plan
Unfinished Space
Vaulted Ceilings
Workshop
Garage Location
Side
Garage Options
Attached
Front-entry
3,948 Ft
2
Total Structure
2,301 Ft
2
Total Heated
2,301 Ft
2
1st Floor
3
Bedrooms
2.5
Bathrooms
2
Garage
1.5
Stories
83'
Width
66'
Depth
28'
Height
10' 0"
Main Floor Ceiling
9' 0"
Upper Floor Ceiling
2x4
Framing
Stick
Roof Framing
9/12
Primary Roof Pitch
2/12
Secondary Roof Pitch
4.5/12
Teritary Roof Pitch
Single
Dwelling Number
2nd Floor
Bonus Access

Unheated Living Space
699 Ft
2
Garage
39 Ft
2
Storage
207 Ft
2
Front Porch
284 Ft
2
Rear Porch
418 Ft
2
Bonus Room
 

Plan Package Options

 Select Plan Package
 Need To Reverse Plan? (Optional)
  Select Foundation Option
  Add-Ons (Optional)
INCLUDED WITH YOUR PURCHASE

Free Ground shipping in the U.S.

FREE

Home Building & Product Ideas Organizer

Sub Total
$0
Free Shipping
QUESTIONS OR NEED HELP ORDERING? LIVE CHAT OR CALL US AT 866-214-2242
Plan Packages

Each set of construction documents typically includes detailed, dimensioned floor plans, basic electric layouts, cross sections, roof details, cabinet layouts, and elevations, as well as general IRC specifications. Please refer to the ARCHITECT or DESIGNER’S PLAN DETAILS link above the floor plan on any plan page to determine the specific details for each plan. Our house plans contain virtually all of the information required to construct your home. The typical plan set does not include plumbing, HVAC drawings, or engineering stamps due to the wide variety of specific needs, local codes, and climatic conditions. These details and specifications are easily obtained from your builder, contractors, and/or local engineers.

BEST PRICE GUARANTEE

Find the same house plan (modifications included!) and package for less on another site, show us the URL and we'll give you the difference plus an additional 10% back.

100% SATISFACTION GUARANTEE

We offer a one-time, 30-day exchange policy for unused, printed plan packages in the event you aren't satisfied with your first selection.

 
 

Plan 10066  Back to plan page

Loading...