Get discounts,
promos, see our
newest plans
and more!
+ 15% off any plan
See terms opt out anytime


No Thanks

Thanks for
signing up!


Use Code:

SIGNUP15

And save 15% off any plan!

Check your email for details.

CLOSE
Search Plans
Customer Reviews
     
15% off ALL House Plans Sitewide
15% off ALL House Plans Sitewide
15% off ALL House Plans Sitewide

Code: HONOR
Sale ends midnight 5/31/2026 PST

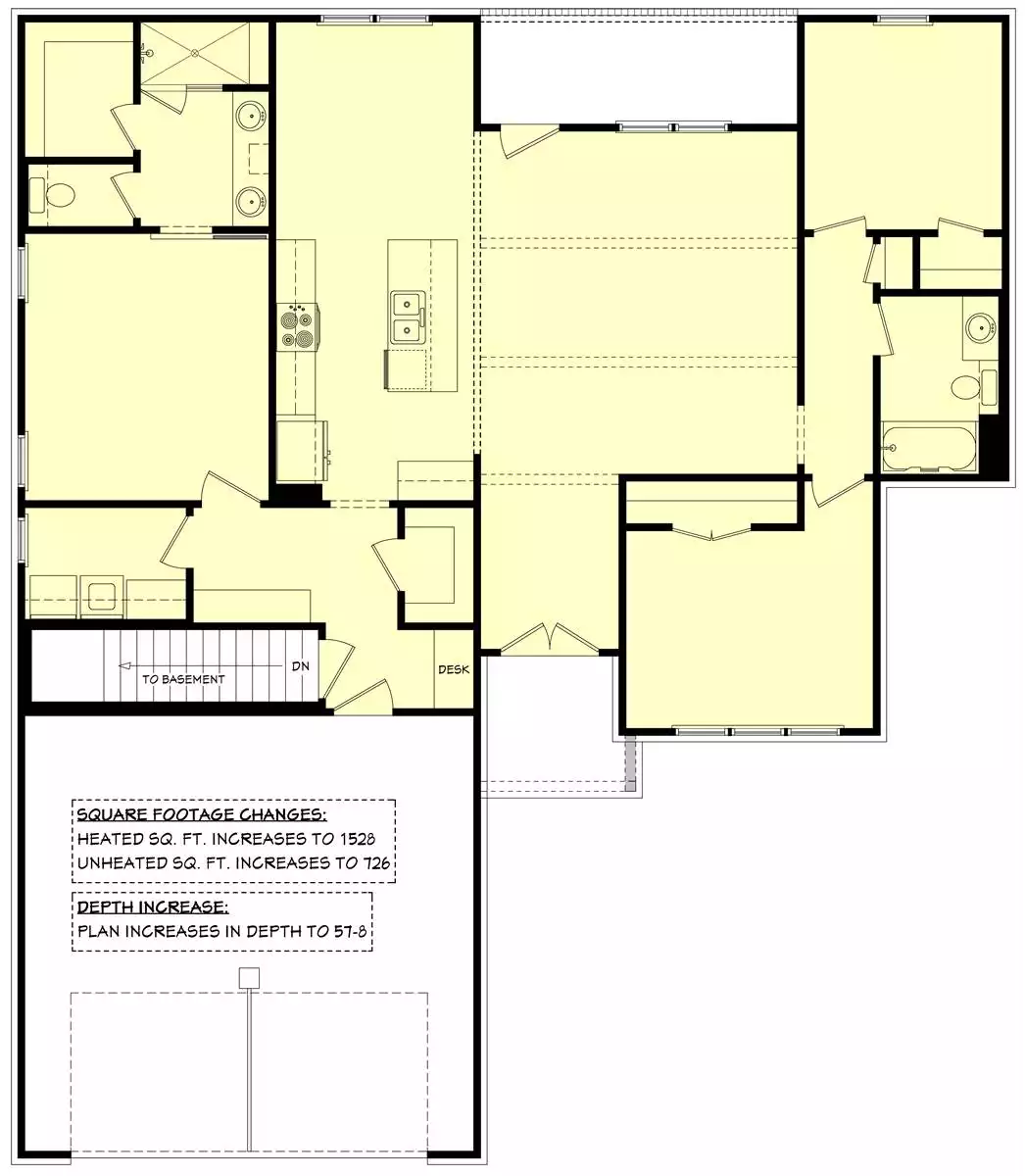
Cooper 3 Bedroom Country Style House, Plan 10364

 
 

Sq Ft
1,493 FT²

Beds
3

Baths
2

Stories
1

Garage
2

Depth
53' 4"

Width
50'
On Sale
$1,143.25
$1,345.00
© copyright by designer
 View All 33 Images | Photographs may reflect modified home
Sq Ft
1,493 FT²
Beds
3
Baths
2
Stories
1
Garage
2
Depth
53' 4"
Width
50'
 
Click to Zoom In on Floor Plan
© copyright by designer
 
 

About This Plan

Designed to fit into neighborhoods and acreage, House Plan 10364 is an adaptable country ranch offering 1,493 square feet, three bedrooms, and two bathrooms. The layout places the garage in front to create some distance from the street. Step inside the foyer and you'll be welcomed into a spacious open-concept great room first, with an island kitchen open to the living space as well as the dining nook in back. The primary suite is privately tucked away through the mudroom and includes a four-piece bath and a walk-in closet while the secondary bedrooms and their hall bath to share are placed in the hallway off the great room.  

See All Plan Options
 

FEATURES & DETAILS

Kitchen features
Kitchen Island
L-Shaped
Walk-in Pantry
Bedroom features
Double Vanity Sink
Primary Bdrm Main Floor
Split Bedrooms
Walk-in Closet
Exterior features
Covered Front Porch
Covered Rear Porch
Additional features
Dining Room
Foyer
Great Room
Laundry 1st Fl
Open Floor Plan
Garage Location
Front
Garage Options
Attached
Front-entry
2,152 Ft
2
Total Structure
1,493 Ft
2
Total Heated
1,493 Ft
2
1st Floor
3
Bedrooms
2
Bathrooms
2
Garage
1
Stories
50'
Width
53'
Depth
23'
Height
9' 0"
Main Floor Ceiling
10' 0"
Living/Great Room Ceiling
10' 0"
Foyer Ceiling
2x4
Framing
Stick
Roof Framing
8/12
Primary Roof Pitch
3/12
Secondary Roof Pitch
Single
Dwelling Number
None
Bonus Access

Unheated Living Space
521 Ft
2
Garage
50 Ft
2
Front Porch
88 Ft
2
Rear Porch
 

Plan Package Options

 Select Plan Package
 Need To Reverse Plan? (Optional)
  Select Foundation Option
  Add-Ons (Optional)
INCLUDED WITH YOUR PURCHASE

Free Ground shipping in the U.S.

FREE

Home Building & Product Ideas Organizer

Sub Total
$0
Free Shipping
QUESTIONS OR NEED HELP ORDERING? LIVE CHAT OR CALL US AT 866-214-2242
Plan Packages

Each set of construction documents typically includes detailed, dimensioned floor plans, basic electric layouts, cross sections, roof details, cabinet layouts, and elevations, as well as general IRC specifications. Please refer to the ARCHITECT or DESIGNER’S PLAN DETAILS link above the floor plan on any plan page to determine the specific details for each plan. Our house plans contain virtually all of the information required to construct your home. The typical plan set does not include plumbing, HVAC drawings, or engineering stamps due to the wide variety of specific needs, local codes, and climatic conditions. These details and specifications are easily obtained from your builder, contractors, and/or local engineers.

BEST PRICE GUARANTEE

Find the same house plan (modifications included!) and package for less on another site, show us the URL and we'll give you the difference plus an additional 10% back.

100% SATISFACTION GUARANTEE

We offer a one-time, 30-day exchange policy for unused, printed plan packages in the event you aren't satisfied with your first selection.

 
 

Plan 10364  Back to plan page

Loading...