Get discounts,
promos, see our
newest plans
and more!
+ 15% off any plan
See terms opt out anytime


No Thanks

Thanks for
signing up!


Use Code:

SIGNUP15

And save 15% off any plan!

Check your email for details.

CLOSE
Search Plans
Customer Reviews
     
22% Off House Plans Sitewide Ends Sunday
22% Off House Plans Sitewide Ends Sunday
22% Off House Plans Sitewide Ends Sunday

Code: SAVE22
Sale ends midnight 12/7/2025 PST

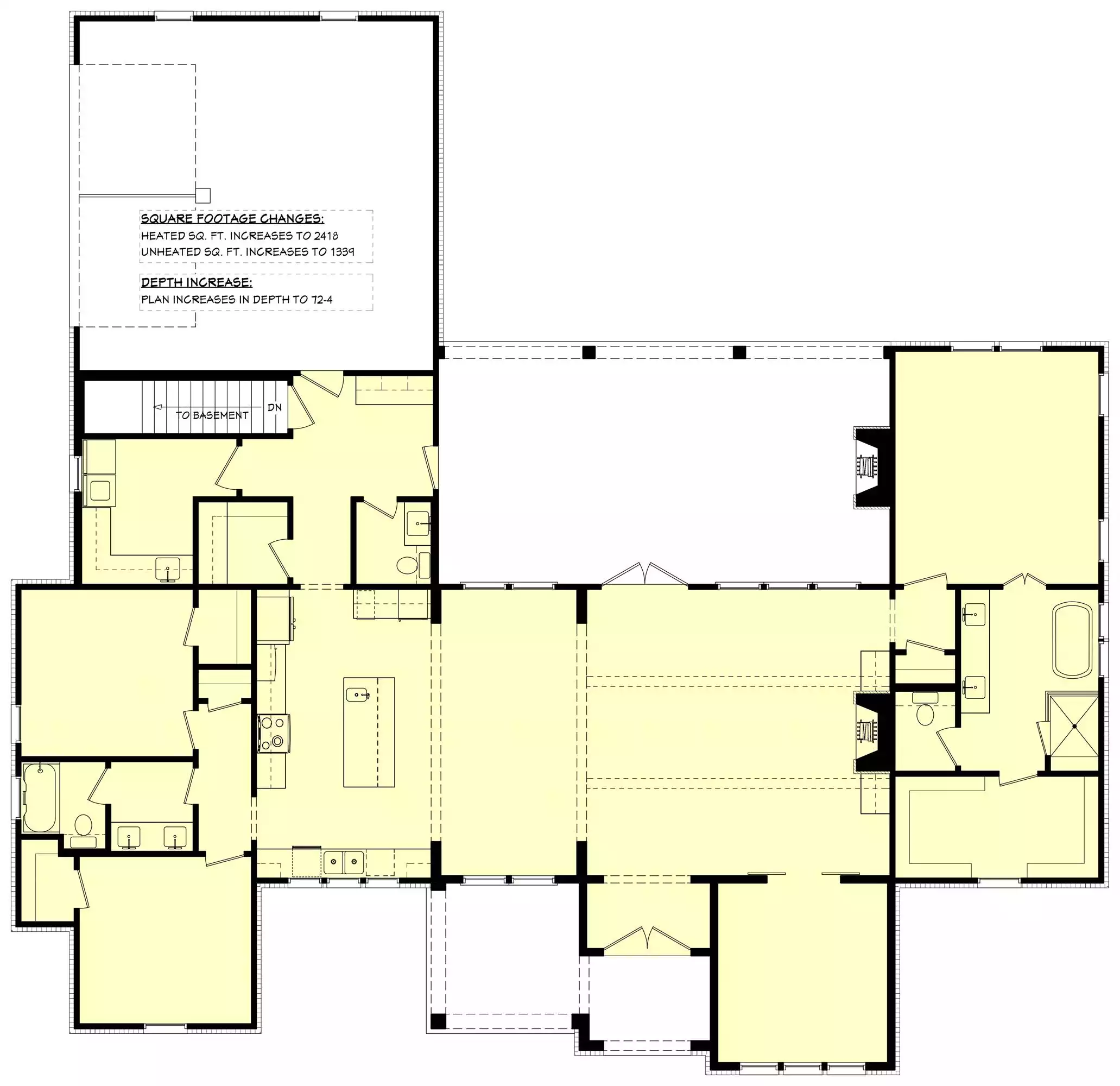
Daleview 3 Bedroom Cottage Style House, Plan 9374

 
 

Sq Ft
2,397 FT²

Beds
3

Baths
2.5

Stories
1

Garage
2

Depth
70' 4"

Width
74' 8"
On Sale
$1,088.10
$1,395.00
© copyright by designer
 View All 22 Images | Photographs may reflect modified home | Video Tour | 360° View
Sq Ft
2,397 FT²
Beds
3
Baths
2.5
Stories
1
Garage
2
Depth
70' 4"
Width
74' 8"
 

 
Click to Zoom In on Floor Plan
© copyright by designer
 
 

About This Plan

Looking for a great cottage with modern appeal inside? See what House Plan 9374 has to offer! This one-story layout boasts 2,397 square feet with porch space in front and back to expand potential. When you first enter, the totally open-concept common areas welcome you inside. The great room features a beamed ceiling, the dining area is very slightly defined with wide cased entries, and then you'll find a U-shaped island kitchen at the far end. There's also an office with front views off the great room while the primary suite and its five piece bath are tucked away in back. Two secondary bedrooms and a hall bath to share are placed behind the kitchen. Make sure to notice all the convenience of the entry area coming in from the garage--it includes the laundry room, pantry, storage built-ins, and the powder room! 

See All Plan Options
 

FEATURES & DETAILS

Kitchen features
Kitchen Island
U-Shaped
Walk-in Pantry
Bedroom features
Double Vanity Sink
Primary Bdrm Main Floor
Separate Tub and Shower
Split Bedrooms
Walk-in Closet
Exterior features
Covered Front Porch
Covered Rear Porch
Outdoor Living Space
Additional features
Fireplace
Foyer
Great Room
Home Office
Mud Room
Open Floor Plan
Garage Location
Rear
Garage Options
Attached
Side-entry
3,707 Ft
2
Total Structure
2,397 Ft
2
Total Heated
3
Bedrooms
2.5
Bathrooms
2
Garage
1
Stories
74'
Width
70'
Depth
28'
Height
10' 0"
Main Floor Ceiling
12' 0"
Living/Great Room Ceiling
12' 0"
Foyer Ceiling
10' 0"
Primary Ceiling
2x4
Framing
Stick
Roof Framing
8/12
Primary Roof Pitch
4/12
Secondary Roof Pitch
12/12
Teritary Roof Pitch
Single
Dwelling Number
None
Bonus Access

Unheated Living Space
643 Ft
2
Garage
161 Ft
2
Front Porch
506 Ft
2
Rear Porch
 

Plan Package Options

 Select Plan Package
Sale: $1,088
PDF Single Build
$1,395

Digital plans emailed to you in PDF format that allows for printing copies and sharing electronically with contractors, subs, decorators, and more. This package includes a license to build the home one time.

Sale: $1,088
Sale: $1,283
5 Printed Sets + PDF
$1,645

Digital plan emailed to you in PDF format that allows for printing copies on a home printer or local print shop and sharing with contractors, subs, decorators, and more. PLUS five printed sets shipped and delivered 3-5 business days.

Sale: $1,283
Sale: $1,634
PDF Unlimited Build
$2,095

Digital plans with an unlimited build license emailed in PDF format, that allows for printing copies on a home printer or local print shop and sharing with contractors, subs, decorators and more 

Sale: $1,634
Sale: $1,946
CAD + PDF Unlimited Build
$2,495

CAD files are a complete set of construction drawings delivered electronically. They can be used for any type of modification—including major design changes and engineering—and include a release granting permission to modify the plan. Most CAD plan orders are emailed the same or next business day.
 
This package also comes with a PDF set of plans and a multi-use building license, granting permission to construct the home an unlimited number of times, along with a copyright release for making modifications and printing unlimited copies.
 
CAD files are provided in .dwg format. For details on the specific CAD program used, please refer to the PLAN DETAILS section located above the floor plan on each plan’s page.

Sale: $1,946
 Need To Reverse Plan? (Optional)
$225
Readable Reverse

Reverse house plans with readable text and dimensions 

$225
  Select Foundation Option
  Add-Ons (Optional)
INCLUDED WITH YOUR PURCHASE

Free Ground shipping in the Continental U.S.

FREE

Design consultation with the architect or designer to discuss your plan

Home Building & Product Ideas Organizer

Sub Total
$0
Free Shipping
QUESTIONS OR NEED HELP ORDERING? LIVE CHAT OR CALL US AT 866-214-2242
Plan Packages

Each set of construction documents includes detailed, dimensioned floor plans, basic electric layouts, cross sections, roof details, cabinet layouts and elevations, as well as general IRC specifications. They contain virtually all of the information required to construct your home. The typical plan set does not include any plumbing, HVAC drawings, or engineering stamps due to the wide variety of specific needs, local codes, and climatic conditions. These details and specifications are easily obtained from your builder, contractors, and/or local engineers.

BEST PRICE GUARANTEE

find the same house plan (modifications included!) and package for less on another site, show us the URL and we'll give you the difference plus an additional 5% back.

100% SATISFACTION GUARANTEE

We offer a one-time, 30-day exchange policy for unused, non-electronic plan packages in the event you aren't satisfied with your first selection.

 
 

Plan 9374  Back to plan page

Loading...