Get discounts,
promos, see our
newest plans
and more!
+ 15% off any plan
See terms opt out anytime


No Thanks

Thanks for
signing up!


Use Code:

SIGNUP15

And save 15% off any plan!

Check your email for details.

CLOSE
Search Plans
Customer Reviews
     
15% off ALL House Plans Sitewide
15% off ALL House Plans Sitewide
15% off ALL House Plans Sitewide

Code: HONOR
Sale ends midnight 5/31/2026 PST

Eden Falls 3 Bedroom Modern Farmhouse Style House, Plan 9291

 
 

Sq Ft
2,278 FT²

Beds
3

Baths
3.5

Stories
1

Garage
2

Depth
67' 10"

Width
75' 2"
On Sale
$1,228.25
$1,445.00
© copyright by designer
 View All 17 Images | Photographs may reflect modified home | 3D Video Tour of Eden Falls
Sq Ft
2,278 FT²
Beds
3
Baths
3.5
Stories
1
Garage
2
Depth
67' 10"
Width
75' 2"
 

 
Click to Zoom In on Floor Plan
© copyright by designer
 
 

About This Plan

Welcome to this stunning modern farmhouse, Eden Falls, where sophisticated design meets timeless charm. The exterior seamlessly blends stone and board-and-batten siding, creating an inviting and elegant aesthetic. Inside, the open-concept great room, dining area, and kitchen feature a vaulted ceiling with exposed decorative beams, making it perfect for family living and entertaining. This home offers three spacious bedrooms and three and a half baths, with the primary suite boasting a vaulted ceiling, luxurious bath, and a generously sized closet accessible through the laundry room. Enjoy the outdoors from the semi wrap-around porch, and make use of the versatile bonus room that can be customized to suit your family's needs. Experience the perfect blend of style and functionality in this modern farmhouse, designed for those who love to entertain and appreciate the finer details of home. 

See All Plan Options
 

FEATURES & DETAILS

Kitchen features
Kitchen Island
U-Shaped
Walk-in Pantry
Bedroom features
Double Vanity Sink
Primary Bdrm Main Floor
Separate Tub and Shower
Split Bedrooms
Walk-in Closet
Exterior features
Covered Front Porch
Covered Rear Porch
Outdoor Living Space
Wraparound Porch
Lot Options
Suited for corner lot
Additional features
Dining Room
Fireplace
Foyer
Great Room
Laundry 1st Fl
Mud Room
Open Floor Plan
Storage Space
Unfinished Space
Vaulted Ceilings
Vaulted Primary
Garage Location
Front
Garage Options
Attached
Side-entry
2,278 Ft
2
Total Heated
2,278 Ft
2
1st Floor
3
Bedrooms
3.5
Bathrooms
2
Garage
1
Stories
75'
Width
67'
Depth
28'
Height
10' 0"
Main Floor Ceiling
2x4
Framing
Stick
Roof Framing
9/12
Primary Roof Pitch
12/12
Secondary Roof Pitch
Single
Dwelling Number
1st Floor
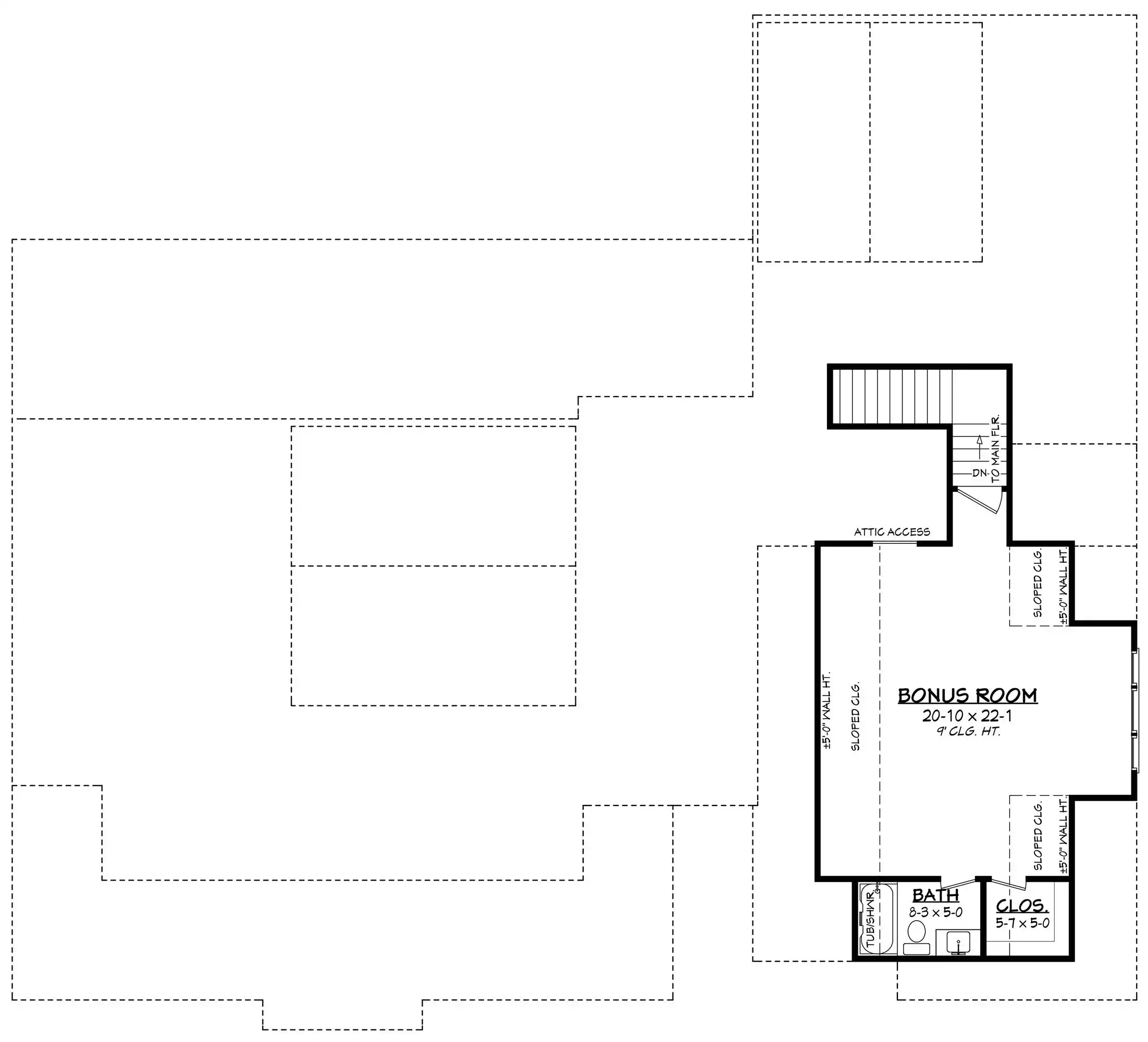
Bonus Access

Unheated Living Space
748 Ft
2
Garage
57 Ft
2
Storage
443 Ft
2
Front Porch
577 Ft
2
Rear Porch
539 Ft
2
Bonus Room
 

Plan Package Options

 Select Plan Package
 Need To Reverse Plan? (Optional)
  Select Foundation Option
  Add-Ons (Optional)
INCLUDED WITH YOUR PURCHASE

Free Ground shipping in the U.S.

FREE

Home Building & Product Ideas Organizer

Sub Total
$0
Free Shipping
QUESTIONS OR NEED HELP ORDERING? LIVE CHAT OR CALL US AT 866-214-2242
Plan Packages

Each set of construction documents typically includes detailed, dimensioned floor plans, basic electric layouts, cross sections, roof details, cabinet layouts, and elevations, as well as general IRC specifications. Please refer to the ARCHITECT or DESIGNER’S PLAN DETAILS link above the floor plan on any plan page to determine the specific details for each plan. Our house plans contain virtually all of the information required to construct your home. The typical plan set does not include plumbing, HVAC drawings, or engineering stamps due to the wide variety of specific needs, local codes, and climatic conditions. These details and specifications are easily obtained from your builder, contractors, and/or local engineers.

BEST PRICE GUARANTEE

Find the same house plan (modifications included!) and package for less on another site, show us the URL and we'll give you the difference plus an additional 10% back.

100% SATISFACTION GUARANTEE

We offer a one-time, 30-day exchange policy for unused, printed plan packages in the event you aren't satisfied with your first selection.

 
 

Plan 9291  Back to plan page

Loading...