Get discounts,
promos, see our
newest plans
and more!
+ 15% off any plan
See terms opt out anytime


No Thanks

Thanks for
signing up!


Use Code:

SIGNUP15

And save 15% off any plan!

Check your email for details.

CLOSE
Search Plans
Customer Reviews
     
15% off ALL House Plans Sitewide
15% off ALL House Plans Sitewide
15% off ALL House Plans Sitewide

Code: SAVE15
Sale ends midnight 4/26/2026 PST

Arlo | Lovely Empty Nester Cottage Style House, Plan 10632

 
 

Sq Ft
2,017 FT²

Beds
2

Baths
2

Stories
1

Garage
2

Depth
73'

Width
58'
On Sale
$1,317.50
$1,550.00
© copyright by designer
 View All 3 Images | Photographs may reflect modified home
Sq Ft
2,017 FT²
Beds
2
Baths
2
Stories
1
Garage
2
Depth
73'
Width
58'
 
Click to Zoom In on Floor Plan
© copyright by designer
 
 

About This Plan

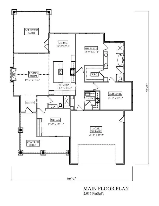
Calling all separate sleepers! House Plan 10632 is a flexible cottage of 2,017 square feet ideal for empty nesters or those who want to maximize the usability of an ensuite bath. The unique feature in this home is its Jack-and-Jill primary suite arrangement, with two separate bedrooms that share a five-piece bath between them. This is perfect for couples who sleep apart due to snoring, offset schedules, or just personal comfort reasons. Of course, you can always share one of the bedrooms and use the other for family or guests. The office off the foyer shares its hallway with a full bath--making it a great optional bedroom, too, if you don't need the workspace! An open-concept great room with an island kitchen and a vaulted ceiling over the living area provides plenty of room to gather. You'll find the laundry room conveniently located off the mudroom that sits between the two-car garage and the hallway with the Jack-and-Jill bedrooms, but that's not all--just look at the spacious covered/screened porch in back that expands livability into the fresh air!  

See All Plan Options
 

FEATURES & DETAILS

Kitchen features
Kitchen Island
L-Shaped
Bedroom features
2 Primary Suites
Double Vanity Sink
Family Style
Primary Bdrm Main Floor
Separate Tub and Shower
Walk-in Closet
Exterior features
Covered Front Porch
Covered Rear Porch
Screened Porch/Sunroom
Additional features
Dining Room
Fireplace
Foyer
Great Room
Home Office
Laundry 1st Fl
Mud Room
Open Floor Plan
Vaulted Ceilings
Vaulted Great Room/Living
Garage Location
Front
Garage Options
Attached
Front-entry
3,303 Ft
2
Total Structure
2,017 Ft
2
Total Heated
2,017 Ft
2
1st Floor
2
Bedrooms
2
Bathrooms
2
Garage
1
Stories
58' 0"
Width
73' 0"
Depth
26' 0"
Height
9' 0"
Main Floor Ceiling
2x6
Framing
Truss
Roof Framing
9/12
Primary Roof Pitch
5/12
Secondary Roof Pitch
Single
Dwelling Number
None
Bonus Access

Unheated Living Space
657 Ft
2
Garage
629 Ft
2
Porch
 

Plan Package Options

 Select Plan Package
 Need To Reverse Plan? (Optional)
  Select Foundation Option
  Add-Ons (Optional)
INCLUDED WITH YOUR PURCHASE

Free Ground shipping in the U.S.

FREE

Home Building & Product Ideas Organizer

Sub Total
$0
Free Shipping
QUESTIONS OR NEED HELP ORDERING? LIVE CHAT OR CALL US AT 866-214-2242
Plan Packages

Each set of construction documents typically includes detailed, dimensioned floor plans, basic electric layouts, cross sections, roof details, cabinet layouts, and elevations, as well as general IRC specifications. Please refer to the ARCHITECT or DESIGNER’S PLAN DETAILS link above the floor plan on any plan page to determine the specific details for each plan. Our house plans contain virtually all of the information required to construct your home. The typical plan set does not include plumbing, HVAC drawings, or engineering stamps due to the wide variety of specific needs, local codes, and climatic conditions. These details and specifications are easily obtained from your builder, contractors, and/or local engineers.

BEST PRICE GUARANTEE

Find the same house plan (modifications included!) and package for less on another site, show us the URL and we'll give you the difference plus an additional 10% back.

100% SATISFACTION GUARANTEE

We offer a one-time, 30-day exchange policy for unused, printed plan packages in the event you aren't satisfied with your first selection.

 
 

Plan 10632  Back to plan page

Loading...