Get discounts,
promos, see our
newest plans
and more!
+ 15% off any plan
See terms opt out anytime


No Thanks

Thanks for
signing up!


Use Code:

SIGNUP15

And save 15% off any plan!

Check your email for details.

CLOSE
Search Plans
Customer Reviews
     
15% off ALL House Plans Sitewide
15% off ALL House Plans Sitewide
15% off ALL House Plans Sitewide

Code: HONOR
Sale ends midnight 5/31/2026 PST

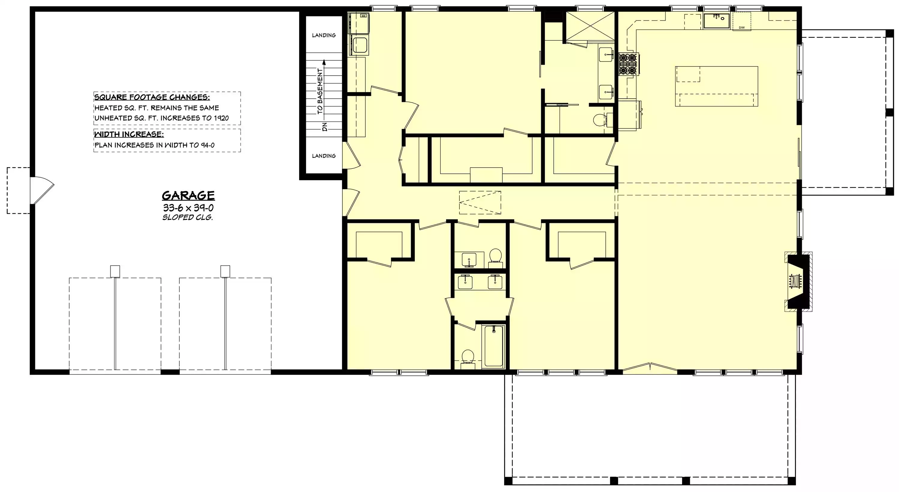
Manchester 3 Bedroom Barndominium Style House, Plan 10188

 
 

Sq Ft
2,000 FT²

Beds
3

Baths
2.5

Stories
1

Garage
2

Depth
52'

Width
90'
On Sale
$1,228.25
$1,445.00
© copyright by designer
 View All 8 Images | Photographs may reflect modified home
Sq Ft
2,000 FT²
Beds
3
Baths
2.5
Stories
1
Garage
2
Depth
52'
Width
90'
 
Click to Zoom In on Floor Plan
© copyright by designer
 
 

About This Plan

Introducing the Manchester, a 2,000 sq. ft. barndominium that seamlessly blends modern farmhouse charm with functional design. This stunning home features dramatic sloped rooflines, adding a contemporary edge to classic country style while enhancing the spacious feel of the open-concept great room, kitchen, and dining area. With vaulted ceilings and a cozy gas log fireplace, the living space is perfect for entertaining or relaxing in rustic elegance. The primary suite offers a luxurious retreat with a walk-in closet and spa-like bath, while two additional bedrooms share a Jack-and-Jill bathroom for maximum convenience. A massive 1,200 sq. ft. oversized garage provides ample room for vehicles, storage, or even a workshop. Outdoor living shines with a covered front porch and side porch, ideal for enjoying the fresh air. Designed for comfort and efficiency, the Manchester barndominium is perfect for those seeking a modern country home with timeless appeal. 

See All Plan Options
 

FEATURES & DETAILS

Kitchen features
Kitchen Island
L-Shaped
Peninsula / Eating Bar
Walk-in Pantry
Bedroom features
Double Vanity Sink
Family Style
Primary Bdrm Main Floor
Walk-in Closet
Exterior features
Covered Front Porch
Lot Options
Suited for view lot
Additional features
Dining Room
Fireplace
Great Room
Laundry 1st Fl
Mud Room
Open Floor Plan
Vaulted Ceilings
Vaulted Great Room/Living
Garage Location
Front
Garage Options
Attached
Front-entry
Oversized
3,760 Ft
2
Total Structure
2,000 Ft
2
Total Heated
2,000 Ft
2
1st Floor
3
Bedrooms
2.5
Bathrooms
2
Garage
1
Stories
90' 0"
Width
52' 0"
Depth
20' 0"
Height
9' 0"
Main Floor Ceiling
9' 0"
Primary Ceiling
2x6
Framing
Stick
Roof Framing
2/12
Primary Roof Pitch
Single
Dwelling Number
None
Bonus Access

Unheated Living Space
1,200 Ft
2
Garage
380 Ft
2
Front Porch
180 Ft
2
Rear Porch
 

Plan Package Options

 Select Plan Package
 Need To Reverse Plan? (Optional)
  Select Foundation Option
  Add-Ons (Optional)
INCLUDED WITH YOUR PURCHASE

Free Ground shipping in the U.S.

FREE

Home Building & Product Ideas Organizer

Sub Total
$0
Free Shipping
QUESTIONS OR NEED HELP ORDERING? LIVE CHAT OR CALL US AT 866-214-2242
Plan Packages

Each set of construction documents typically includes detailed, dimensioned floor plans, basic electric layouts, cross sections, roof details, cabinet layouts, and elevations, as well as general IRC specifications. Please refer to the ARCHITECT or DESIGNER’S PLAN DETAILS link above the floor plan on any plan page to determine the specific details for each plan. Our house plans contain virtually all of the information required to construct your home. The typical plan set does not include plumbing, HVAC drawings, or engineering stamps due to the wide variety of specific needs, local codes, and climatic conditions. These details and specifications are easily obtained from your builder, contractors, and/or local engineers.

BEST PRICE GUARANTEE

Find the same house plan (modifications included!) and package for less on another site, show us the URL and we'll give you the difference plus an additional 10% back.

100% SATISFACTION GUARANTEE

We offer a one-time, 30-day exchange policy for unused, printed plan packages in the event you aren't satisfied with your first selection.

 
 

Plan 10188  Back to plan page

Loading...