Get discounts,
promos, see our
newest plans
and more!
+ 15% off any plan
See terms opt out anytime


No Thanks

Thanks for
signing up!


Use Code:

SIGNUP15

And save 15% off any plan!

Check your email for details.

CLOSE
Search Plans
Customer Reviews
     
15% off ALL House Plans Sitewide
15% off ALL House Plans Sitewide
15% off ALL House Plans Sitewide

Code: HONOR
Sale ends midnight 5/31/2026 PST

Sq Ft
2,168 FT²

Beds
3

Baths
2.5

Stories
1.5

Garage
2

Depth
50'

Width
63' 8"
On Sale
$884.00
$1,040.00
EXCLUSIVE PLAN
© copyright by designer
 View All 8 Images | Photographs may reflect modified home
Sq Ft
2,168 FT²
Beds
3
Baths
2.5
Stories
1.5
Garage
2
Depth
50'
Width
63' 8"
 
Click to Zoom In on Floor Plan
© copyright by designer
 
 

About This Plan

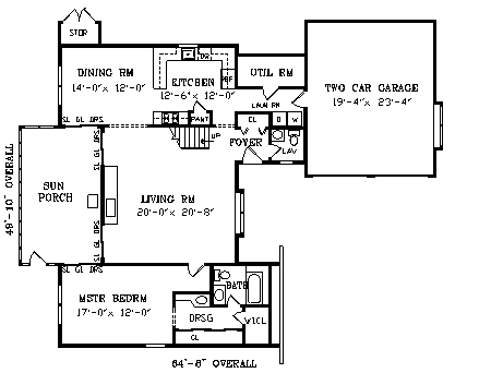
This passive solar home flaunts salt-box styling and exciting plan features in a dynamic "L" shape! Energy-efficient techniques include berming, a south-facing sun porch with masonry floor and wall heat storage, two wood stoves, extra insulation and triple-glazed windows. I designed the focal point of the interior-the spacious living room -with sliding door access to the sun porch. The open kitchen serves the dining room and boasts a handy snack bar. There is access to the sun-porch from here as well as from the private master suite, which is located at the opposite side. The two second floor bedrooms face out to a spacious loft playroom. 

See All Plan Options
 

FEATURES & DETAILS

Bedroom features
Primary Bdrm Main Floor
Foundation Options
Basement
Crawlspace
Slab
Additional features
Fireplace
Great Room
Garage Location
Side
Garage Options
Attached
2,168 Ft
2
Total Heated
1,375 Ft
2
1st Floor
793 Ft
2
2nd Floor
3
Bedrooms
2.5
Bathrooms
2
Garage
1.5
Stories
63' 8"
Width
50' 0"
Depth
23' 0"
Height
8'-1"' 0"
Main Floor Ceiling
8'-1"' 0"
Upper Floor Ceiling
2x6
Framing
Stick
Roof Framing
11/12
Primary Roof Pitch
Single
Dwelling Number

Unheated Living Space
480 Ft
2
Garage
258 Ft
2
Porch
 

Plan Package Options

 Select Plan Package
  Select Foundation Option
  Add-Ons (Optional)
INCLUDED WITH YOUR PURCHASE

Free Ground shipping in the U.S.

FREE

Home Building & Product Ideas Organizer

Sub Total
$0
Free Shipping
QUESTIONS OR NEED HELP ORDERING? LIVE CHAT OR CALL US AT 866-214-2242
Plan Packages

Each set of construction documents typically includes detailed, dimensioned floor plans, basic electric layouts, cross sections, roof details, cabinet layouts, and elevations, as well as general IRC specifications. Please refer to the ARCHITECT or DESIGNER’S PLAN DETAILS link above the floor plan on any plan page to determine the specific details for each plan. Our house plans contain virtually all of the information required to construct your home. The typical plan set does not include plumbing, HVAC drawings, or engineering stamps due to the wide variety of specific needs, local codes, and climatic conditions. These details and specifications are easily obtained from your builder, contractors, and/or local engineers.

BEST PRICE GUARANTEE

Find the same house plan (modifications included!) and package for less on another site, show us the URL and we'll give you the difference plus an additional 10% back.

100% SATISFACTION GUARANTEE

We offer a one-time, 30-day exchange policy for unused, printed plan packages in the event you aren't satisfied with your first selection.

 
 

Plan 3710  Back to plan page

Loading...