Get discounts,
promos, see our
newest plans
and more!
+ 15% off any plan
See terms opt out anytime


No Thanks

Thanks for
signing up!


Use Code:

SIGNUP15

And save 15% off any plan!

Check your email for details.

CLOSE
Search Plans
Customer Reviews
     
15% off ALL House Plans Sitewide
15% off ALL House Plans Sitewide
15% off ALL House Plans Sitewide

Code: SAVE15
Sale ends midnight 4/19/2026 PST

Sq Ft
1,902 FT²

Beds
3

Baths
2.5

Stories
2

Garage
2

Depth
38'

Width
66'
On Sale
$1,503.65
$1,769.00
© copyright by designer
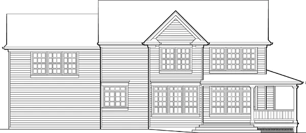
 View All 5 Images | Photographs may reflect modified home
Sq Ft
1,902 FT²
Beds
3
Baths
2.5
Stories
2
Garage
2
Depth
38'
Width
66'
 
Click to Zoom In on Floor Plan
© copyright by designer
 
 

About This Plan

Perfect for a country acreage or a city neighborhood, this charmer is distinguished by a gabled entry and a covered veranda that sweeps around three sides of the house. The interior is just as charming. Guests are welcomed in a two-story foyer capped by windows. A great room with fireplace flows into the dining room and kitchen, creating a cozy space for family meals and gatherings. The L-shaped kitchen is organized for efficiency with a corner sink, a downdraft cooktop in the center island, and a walk-in pantry beneath the staircase. Sliding glass doors in the dining room open to the veranda. Entry to the garage is through a laundry room.

Upstairs, the master suite includes a walk-in closet and his-and-her bath with separate tub and shower stall. Step down into the large bonus room above the garage. 


See All Plan Options
 

FEATURES & DETAILS

Kitchen features
Kitchen Island
Bedroom features
Primary Bdrm Upstairs
Walk-in Closet
Exterior features
Wraparound Porch
Foundation Options
Basement
Crawlspace
Slab
Additional features
Bonus Room
Great Room
Laundry 1st Fl
Unfinished Space
Garage Location
Side
Garage Options
Attached
Front-entry
1,902 Ft
2
Total Heated
1,032 Ft
2
1st Floor
870 Ft
2
2nd Floor
3
Bedrooms
2.5
Bathrooms
2
Garage
2
Stories
66' 0"
Width
38' 0"
Depth
29' 0"
Height
9' 0"
Main Floor Ceiling
8' 0"
Upper Floor Ceiling
2x6
Framing
Stick
Roof Framing
12/12
Primary Roof Pitch
4/12
Secondary Roof Pitch
Single
Dwelling Number

Unheated Living Space
462 Ft
2
Garage
624 Ft
2
Porch
306 Ft
2
Bonus Room
 

Plan Package Options

 Select Plan Package
 Need To Reverse Plan? (Optional)
  Select Foundation Option
  Add-Ons (Optional)
INCLUDED WITH YOUR PURCHASE

Free Ground shipping in the U.S.

FREE

Home Building & Product Ideas Organizer

Sub Total
$0
Free Shipping
QUESTIONS OR NEED HELP ORDERING? LIVE CHAT OR CALL US AT 866-214-2242
Plan Packages

Each set of construction documents typically includes detailed, dimensioned floor plans, basic electric layouts, cross sections, roof details, cabinet layouts, and elevations, as well as general IRC specifications. Please refer to the ARCHITECT or DESIGNER’S PLAN DETAILS link above the floor plan on any plan page to determine the specific details for each plan. Our house plans contain virtually all of the information required to construct your home. The typical plan set does not include plumbing, HVAC drawings, or engineering stamps due to the wide variety of specific needs, local codes, and climatic conditions. These details and specifications are easily obtained from your builder, contractors, and/or local engineers.

BEST PRICE GUARANTEE

Find the same house plan (modifications included!) and package for less on another site, show us the URL and we'll give you the difference plus an additional 10% back.

100% SATISFACTION GUARANTEE

We offer a one-time, 30-day exchange policy for unused, printed plan packages in the event you aren't satisfied with your first selection.

 
 

Plan 2493  Back to plan page

Loading...