Get discounts,
promos, see our
newest plans
and more!
+ 15% off any plan
See terms opt out anytime


No Thanks

Thanks for
signing up!


Use Code:

SIGNUP15

And save 15% off any plan!

Check your email for details.

CLOSE
Search Plans
Customer Reviews
     
America’s Top Home Plans
Trusted House Plans From America's Leading Architects & Designers

Winslow One Story Tudor Style House, Plan 4786

 
 

Sq Ft
2,342 FT²

Beds
4

Baths
3.5

Stories
1

Garage
0

Depth
64'

Width
70'
From
$1,100.00
© copyright by designer
 View All 8 Images | Photographs may reflect modified home
Sq Ft
2,342 FT²
Beds
4
Baths
3.5
Stories
1
Garage
0
Depth
64'
Width
70'
 
Click to Zoom In on Floor Plan
© copyright by designer
 
 

About This Plan

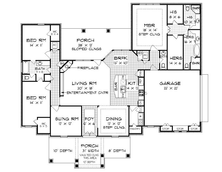
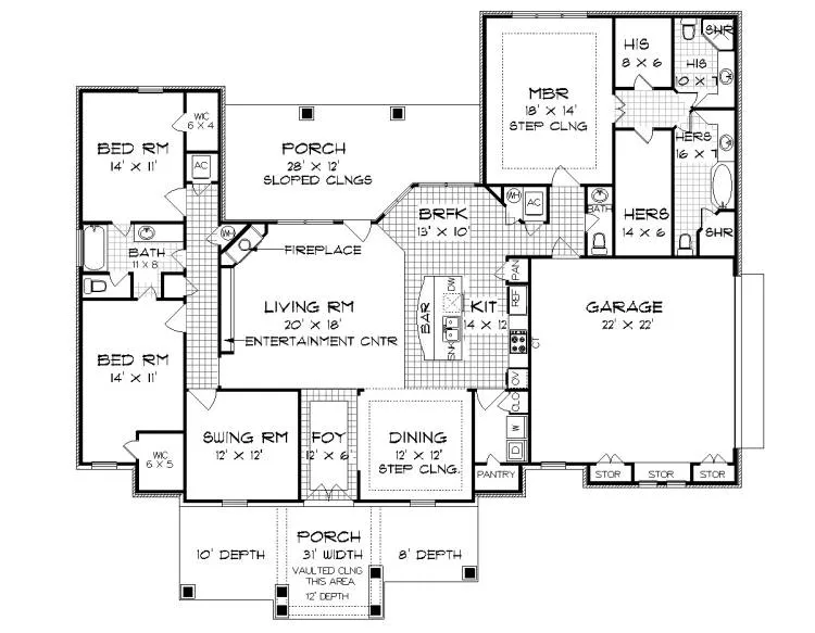
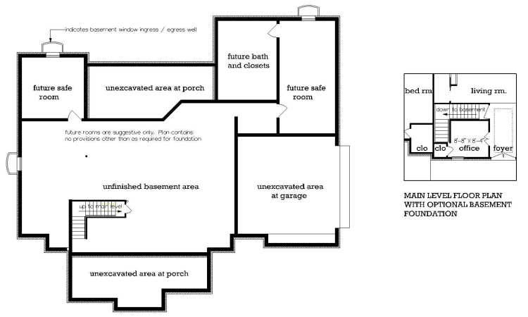
With the characteristic charm of a Tudor-inspired home, this unique Craftsman has a worldly appeal. Featuring a lovely exterior that finds elements of stone and exposed wood highlighting its facade, the 2,342 square foot design has plenty to offer. Beginning with its ranch-style layout, the single story plan is made to bring everyone together in a welcoming and comfortable fashion. The main level features the common areas at the center, including the spacious living room with its entertainment center, along with the gourmet island kitchen and breakfast nook. There is also a formal dining room and a bonus flex room which flank either side of the main entrance. On one wing of the home sits the master suite alongside the garage area. The master offers not only dual his and hers walk-in closets, but also separate spa bathroom suites! This unique feature allows for maximum privacy no matter what. Finally, the auxiliary bedrooms of the 3 bedroom plan are on the other end of the home, creating even more privacy for everyone. This plan also comes with an option to expand to a full basement if your lot allows.  

See All Plan Options
 

FEATURES & DETAILS

Kitchen features
Country Kitchen
Kitchen Island
Nook / Breakfast Area
Bedroom features
His and Hers Primary Closets
Primary Bdrm Main Floor
Separate Tub and Shower
Split Bedrooms
Walk-in Closet
Exterior features
Covered Front Porch
Covered Rear Porch
Front Porch
Rear Porch
Foundation Options
Basement
Crawlspace
Slab
Lot Options
Suited for corner lot
Suited for view lot
Additional features
Bonus Room
Dining Room
Fireplace
Foyer
Laundry 1st Fl
Open Floor Plan
Storage Space
Vaulted Ceilings
Garage Location
Side
Garage Options
Attached
3,468 Ft
2
Total Structure
2,342 Ft
2
Total Heated
2,342 Ft
2
1st Floor
4
Bedrooms
3.5
Bathrooms
0
Garage
1
Stories
70' 0"
Width
64' 0"
Depth
25' 0"
Height
10' 0"
Main Floor Ceiling
2x4
Framing
Stick
Roof Framing
8/12
Primary Roof Pitch
12:12
Secondary Roof Pitch
3:12
Dormer Roof Pitch
Single
Dwelling Number

Unheated Living Space
484 Ft
2
Garage
32 Ft
2
Storage
610 Ft
2
Porch
 

Plan Package Options

 Select Plan Package
 Need To Reverse Plan? (Optional)
  Select Foundation Option
  Add-Ons (Optional)
INCLUDED WITH YOUR PURCHASE

Free Ground shipping in the U.S.

FREE

Home Building & Product Ideas Organizer

Sub Total
$0
Free Shipping
QUESTIONS OR NEED HELP ORDERING? LIVE CHAT OR CALL US AT 866-214-2242
Plan Packages

Each set of construction documents typically includes detailed, dimensioned floor plans, basic electric layouts, cross sections, roof details, cabinet layouts, and elevations, as well as general IRC specifications. Please refer to the ARCHITECT or DESIGNER’S PLAN DETAILS link above the floor plan on any plan page to determine the specific details for each plan. Our house plans contain virtually all of the information required to construct your home. The typical plan set does not include plumbing, HVAC drawings, or engineering stamps due to the wide variety of specific needs, local codes, and climatic conditions. These details and specifications are easily obtained from your builder, contractors, and/or local engineers.

BEST PRICE GUARANTEE

Find the same house plan (modifications included!) and package for less on another site, show us the URL and we'll give you the difference plus an additional 10% back.

100% SATISFACTION GUARANTEE

We offer a one-time, 30-day exchange policy for unused, printed plan packages in the event you aren't satisfied with your first selection.

 
 

Plan 4786  Back to plan page

Loading...