Get discounts,
promos, see our
newest plans
and more!
+ 15% off any plan
See terms opt out anytime


No Thanks

Thanks for
signing up!


Use Code:

SIGNUP15

And save 15% off any plan!

Check your email for details.

CLOSE
Search Plans
Customer Reviews
     
22% Off House Plans Sitewide Ends Sunday

Code: SAVE22
Sale ends midnight 12/7/2025 PST

Sq Ft
4,264 FT²

Beds
4

Baths
3.5

Stories
2

Garage
2

Depth
58' 6"

Width
73' 8"
From
$1,995.00
© copyright by designer
 View All 5 Images | Photographs may reflect modified home
Sq Ft
4,264 FT²
Beds
4
Baths
3.5
Stories
2
Garage
2
Depth
58' 6"
Width
73' 8"
 
Click to Zoom In on Floor Plan
© copyright by designer
 
 

About This Plan

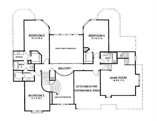
The stucco finish provides an elegant look to a home that is as beautiful from the rear as from the front curb. The two story Foyer is graced by a lovely staircase and Romeo Balcony overlook from upstairs. Two columns flank the entry to the Great Room. Two story double bays on the rear form the Keeping Room and Breakfast Room on one side and the Master Bedroom witha sitting area on the other. Rear stairs from the Kitchen join the family gathering areas with the three bedrooms and Game Room upstairs. 

See All Plan Options
 

FEATURES & DETAILS

Kitchen features
Butler's Pantry
Kitchen Island
Nook / Breakfast Area
Peninsula / Eating Bar
Walk-in Pantry
Bedroom features
Double Vanity Sink
Guest Suite
His and Hers Primary Closets
Primary Bdrm Main Floor
Separate Tub and Shower
Sitting Area
Walk-in Closet
Exterior features
Covered Front Porch
Front Porch
Foundation Options
Basement
Crawlspace
Slab
Lot Options
Suited for corner lot
Additional features
2 Story Volume
Arches
Bonus Room
Dining Room
Family Room
Fireplace
Foyer
Great Room
Home Office
Laundry 1st Fl
Library/Media Rm
Loft / Balcony
Open Floor Plan
Rec Room
Storage Space
Unfinished Space
Vaulted Ceilings
Garage Location
Front
Garage Options
Attached
Side-entry
4,264 Ft
2
Total Heated
2,634 Ft
2
1st Floor
1,630 Ft
2
2nd Floor
4
Bedrooms
3.5
Bathrooms
2
Garage
2
Stories
73' 8"
Width
58' 6"
Depth
34' 0"
Height
10' 0"
Main Floor Ceiling
8' 0"
Upper Floor Ceiling
2x4
Framing
Stick
Roof Framing
8/12
Primary Roof Pitch
12/12
Secondary Roof Pitch
Single
Dwelling Number
2nd Floor
Bonus Access

Unheated Living Space
517 Ft
2
Garage
86 Ft
2
Porch
Exterior Styles
Collections
 

Plan Package Options

 Select Plan Package
$1,450
PDF Bid Set
PDFs NOW!™

Home plans stamped "NOT FOR CONSTRUCTION" for cost estimating and bidding purposes only; a minimum 5 set plan package must be purchased within 90 days for a license to build plan set; a credit will be applied towards your house plan upgrade

$1,450
$1,995
PDF Single Build
PDFs NOW!™

Digital plans emailed to you in PDF format that allows for printing copies and sharing electronically with contractors, subs, decorators, and more. This package includes a license to build the home one time.

$1,995
$3,500
CAD + PDF Single Build

CAD files are a complete set of construction drawings delivered electronically. They can be used for any type of modification—including major design changes and engineering—and include a release granting permission to modify the plan. Most CAD plan orders are emailed the same or next business day.
 
This package also comes with a PDF set of plans and a copyright release for making modifications and printing unlimited copies.
 
CAD files are provided in .dwg format. For details on the specific CAD program used, please refer to the PLAN DETAILS section located above the floor plan on each plan’s page.

$3,500
 Need To Reverse Plan? (Optional)
$375
Readable Reverse

Reverse house plans with readable text and dimensions 

$375
  Select Foundation Option
  Add-Ons (Optional)
INCLUDED WITH YOUR PURCHASE

Free Ground shipping in the Continental U.S.

FREE

Design consultation with the architect or designer to discuss your plan

Home Building & Product Ideas Organizer

Sub Total
$0
Free Shipping
QUESTIONS OR NEED HELP ORDERING? LIVE CHAT OR CALL US AT 866-214-2242
Plan Packages

Each set of construction documents includes detailed, dimensioned floor plans, basic electric layouts, cross sections, roof details, cabinet layouts and elevations, as well as general IRC specifications. They contain virtually all of the information required to construct your home. The typical plan set does not include any plumbing, HVAC drawings, or engineering stamps due to the wide variety of specific needs, local codes, and climatic conditions. These details and specifications are easily obtained from your builder, contractors, and/or local engineers.

BEST PRICE GUARANTEE

find the same house plan (modifications included!) and package for less on another site, show us the URL and we'll give you the difference plus an additional 5% back.

100% SATISFACTION GUARANTEE

We offer a one-time, 30-day exchange policy for unused, non-electronic plan packages in the event you aren't satisfied with your first selection.

 
 

Plan 8445  Back to plan page

Loading...