Get discounts,
promos, see our
newest plans
and more!
+ 15% off any plan
See terms opt out anytime


No Thanks

Thanks for
signing up!


Use Code:

SIGNUP15

And save 15% off any plan!

Check your email for details.

CLOSE
Search Plans
     

Sq Ft
1,512 FT²

Beds
3

Baths
2.5

Stories
2

Garage
0

Depth
42'

Width
24'
From
$1,600.00
© copyright by designer
 View All 7 Images | Photographs may reflect modified home
Sq Ft
1,512 FT²
Beds
3
Baths
2.5
Stories
2
Garage
0
Depth
42'
Width
24'
 
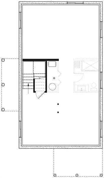
Click to Zoom In on Floor Plan
© copyright by designer
 
 

About This Plan

Simple yet spacious, this 2-story modern farmhouse-style plan is perfect for a narrow or limited lot. With a focus on value engineering, this plan would work well as a vacation home or a year-round residence, thanks to its 1,512 square foot, 3 bed, 2.5 bath layout, along with space for future expansions. The main floor houses an open concept living room, dining space, and island kitchen, as well as a convenient yet private master suite and laundry. Upstairs is where you can discover 2 more large bedrooms, along with a full bath and a small den. And if you ever need more space now or in the future, check out the unfinished basement which has plans for an additional full bath, along with tons of extra room to customize! 

See All Plan Options
 

FEATURES & DETAILS

Kitchen features
Kitchen Island
Peninsula / Eating Bar
Walk-in Pantry
Bedroom features
Double Vanity Sink
Guest Suite
Primary Bdrm Main Floor
Separate Tub and Shower
Split Bedrooms
Walk-in Closet
Exterior features
Covered Front Porch
Deck
Front Porch
Foundation Options
Basement
Crawlspace
Slab
Additional features
Dining Room
Family Room
Laundry 1st Fl
Loft / Balcony
Open Floor Plan
Unfinished Space
Vaulted Ceilings
1,512 Ft
2
Total Heated
1,008 Ft
2
1st Floor
504 Ft
2
2nd Floor
1,008 Ft
2
Lower Floor
3
Bedrooms
2.5
Bathrooms
0
Garage
2
Stories
24' 0"
Width
42' 0"
Depth
29' 10"
Height
8' 0"
Main Floor Ceiling
8' 0"
Upper Floor Ceiling
2x6
Framing
Truss
Roof Framing
12/12
Primary Roof Pitch
Single
Dwelling Number
None
Bonus Access

Unheated Living Space
 

Plan Package Options

 Select Plan Package
$1,600
PDF Single Build
PDFs NOW!™

Digital plans emailed to you in PDF format that allows for printing copies and sharing electronically with contractors, subs, decorators, and more. This package includes a license to build the home one time.

$1,600
$1,740
3 sets + PDF
Please allow 3-5 days for delivery
$1,740
$2,600
CAD + PDF Single Build

CAD files are a complete set of construction drawings delivered electronically. They can be used for any type of modification—including major design changes and engineering—and include a release granting permission to modify the plan. Most CAD plan orders are emailed the same or next business day.
 
This package also comes with a PDF set of plans and a copyright release for making modifications and printing unlimited copies.
 
CAD files are provided in .dwg format. For details on the specific CAD program used, please refer to the PLAN DETAILS section located above the floor plan on each plan’s page.

$2,600
 Need To Reverse Plan? (Optional)
$250
Readable Reverse
PDFs NOW!™

Reverse house plans with readable text and dimensions 

$250
  Select Foundation Option
  Add-Ons (Optional)
INCLUDED WITH YOUR PURCHASE

Free Ground shipping in the Continental U.S.

FREE

Design consultation with the architect or designer to discuss your plan

Home Building & Product Ideas Organizer

Sub Total
$0
Free Shipping
Please allow 3-5 business days for delivery of this plan Please check our PDFs NOW collection for plans that can be downloaded and received immediately or live chat us to help you find a similar plan available now.

Note: Please allow 12 days of delay for this plan.
QUESTIONS OR NEED HELP ORDERING? LIVE CHAT OR CALL US AT 866-214-2242
Plan Packages

Each set of construction documents includes detailed, dimensioned floor plans, basic electric layouts, cross sections, roof details, cabinet layouts and elevations, as well as general IRC specifications. They contain virtually all of the information required to construct your home. The typical plan set does not include any plumbing, HVAC drawings, or engineering stamps due to the wide variety of specific needs, local codes, and climatic conditions. These details and specifications are easily obtained from your builder, contractors, and/or local engineers.

BEST PRICE GUARANTEE

find the same house plan (modifications included!) and package for less on another site, show us the URL and we'll give you the difference plus an additional 5% back.

100% SATISFACTION GUARANTEE

We offer a one-time, 30-day exchange policy for unused, non-electronic plan packages in the event you aren't satisfied with your first selection.

 
 

Plan 4024  Back to plan page

Loading...