Get discounts,
promos, see our
newest plans
and more!
+ 15% off any plan
See terms opt out anytime


No Thanks

Thanks for
signing up!


Use Code:

SIGNUP15

And save 15% off any plan!

Check your email for details.

CLOSE
Search Plans
Customer Reviews
     
15% off ALL House Plans Sitewide
15% off ALL House Plans Sitewide
15% off ALL House Plans Sitewide

Code: HONOR
Sale ends midnight 5/31/2026 PST

Sq Ft
3,423 FT²

Beds
3

Baths
3

Stories
2

Garage
3

Depth
49'

Width
63'
On Sale
$1,928.65
$2,269.00
© copyright by designer
 View All 5 Images | Photographs may reflect modified home
Sq Ft
3,423 FT²
Beds
3
Baths
3
Stories
2
Garage
3
Depth
49'
Width
63'
 
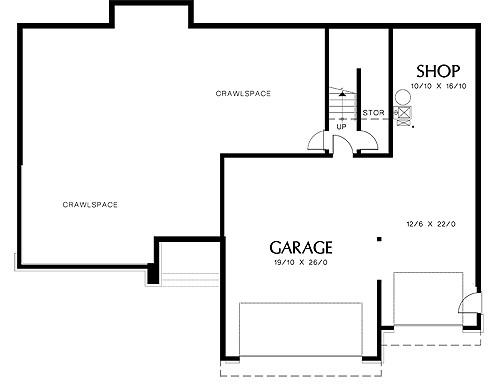
Click to Zoom In on Floor Plan
© copyright by designer
 
 

About This Plan

Shades of the International style movement are evident in this spectacular contemporary home. Its hillside-friendly nature, multiple balconies and foundation stonework make it the perfect choice for the discriminating homeowner. Begin your tour of the home by entering through an attractive sidelit entry door to the foyer with nine-foot ceiling. On the left is a dining hall for formal occasions; on the right is a two-story living room with through-fireplace to the den. A wide deck opens from the living room and stretches to the den to overlook the front of the property. More casual living is to the back of the plan: a family room/nook combination and an amply appointed island kitchen. A full bath at the back of the plan (near a laundry room) allows the den to serve as a guest room if needed. The master suite is on the upper level as are two family bedrooms. Each bedroom has its own walk-in closet. The master suite features a bath with walk-in shower, spa tub, compartmented toilet and dual sinks. The garage lies on the lower level and contains more than enough space for a well-equipped workshop. 

See All Plan Options
 

FEATURES & DETAILS

Kitchen features
Kitchen Island
Nook / Breakfast Area
Bedroom features
Double Vanity Sink
Primary Bdrm Upstairs
Separate Tub and Shower
Walk-in Closet
Exterior features
Deck
No Porch
Foundation Options
Daylight Basement
Slab
Walkout Basement
Lot Options
Suited for sloping lot
Suited for view lot
Additional features
Dining Room
Family Room
Fireplace
Formal LR
Foyer
Home Office
Laundry 1st Fl
Loft / Balcony
Open Floor Plan
Workshop
Garage Location
Front
Garage Options
Attached
Drive-under
Front-entry
Oversized
3,423 Ft
2
Total Heated
1,974 Ft
2
1st Floor
1,449 Ft
2
2nd Floor
3
Bedrooms
3
Bathrooms
3
Garage
2
Stories
63' 0"
Width
49' 0"
Depth
25' 0"
Height
9' 0"
Main Floor Ceiling
9' 0"
Upper Floor Ceiling
2x6
Framing
Truss
Roof Framing
4/12
Primary Roof Pitch
Single
Dwelling Number
None
Bonus Access

Unheated Living Space
1,212 Ft
2
Garage
359 Ft
2
Deck
 

Plan Package Options

 Select Plan Package
 Need To Reverse Plan? (Optional)
  Select Foundation Option
  Add-Ons (Optional)
INCLUDED WITH YOUR PURCHASE

Free Ground shipping in the U.S.

FREE

Home Building & Product Ideas Organizer

Sub Total
$0
Free Shipping
QUESTIONS OR NEED HELP ORDERING? LIVE CHAT OR CALL US AT 866-214-2242
Plan Packages

Each set of construction documents typically includes detailed, dimensioned floor plans, basic electric layouts, cross sections, roof details, cabinet layouts, and elevations, as well as general IRC specifications. Please refer to the ARCHITECT or DESIGNER’S PLAN DETAILS link above the floor plan on any plan page to determine the specific details for each plan. Our house plans contain virtually all of the information required to construct your home. The typical plan set does not include plumbing, HVAC drawings, or engineering stamps due to the wide variety of specific needs, local codes, and climatic conditions. These details and specifications are easily obtained from your builder, contractors, and/or local engineers.

BEST PRICE GUARANTEE

Find the same house plan (modifications included!) and package for less on another site, show us the URL and we'll give you the difference plus an additional 10% back.

100% SATISFACTION GUARANTEE

We offer a one-time, 30-day exchange policy for unused, printed plan packages in the event you aren't satisfied with your first selection.

 
 

Plan 5546  Back to plan page

Loading...