Get discounts,
promos, see our
newest plans
and more!
+ 15% off any plan
See terms opt out anytime


No Thanks

Thanks for
signing up!


Use Code:

SIGNUP15

And save 15% off any plan!

Check your email for details.

CLOSE
Search Plans
Customer Reviews
     
15% off ALL House Plans Sitewide
15% off ALL House Plans Sitewide
15% off ALL House Plans Sitewide

Code: HONOR
Sale ends midnight 5/29/2026 PST

Sq Ft
2,891 FT²

Beds
4

Baths
3.5

Stories
1

Garage
3

Depth
77'

Width
79' 6"
On Sale
$1,020.00
$1,200.00
© copyright by designer
 View All 6 Images | Photographs may reflect modified home
Sq Ft
2,891 FT²
Beds
4
Baths
3.5
Stories
1
Garage
3
Depth
77'
Width
79' 6"
 
Click to Zoom In on Floor Plan
© copyright by designer
 
 

About This Plan

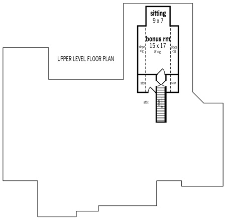
Designed for contemporary family needs, this elegant traditional style home has a home office adjoining the master suite. A guest suite, located at the rear of the home, is suitable for overnight guest or live-in parents. The family room has 11' step tray ceilings while the formal dining has a soaring 2-story ceiling with natural light imported from the dormer above. The formal living area features a cathedral ceiling to accommodate a super size arch top window. The rear porch is accessible from the family room or garage and it makes a perfect outdoor entertainment area. A centrally located stairwell leads to the bonus space located over the garage.
 

See All Plan Options
 

FEATURES & DETAILS

Exterior features
Rear Porch
Foundation Options
Crawlspace
Slab
Lot Options
Suited for corner lot
Garage Location
Side
Garage Options
Attached
4,573 Ft
2
Total Structure
2,891 Ft
2
Total Heated
2,891 Ft
2
1st Floor
4
Bedrooms
3.5
Bathrooms
3
Garage
1
Stories
79' 6"
Width
77' 0"
Depth
32' 4"
Height
11 & 9' 0"
Main Floor Ceiling
8' 0"
Upper Floor Ceiling
2x4
Framing
Stick
Roof Framing
12/12
Primary Roof Pitch
Single
Dwelling Number
1st Floor
Bonus Access

Unheated Living Space
817 Ft
2
Garage
442 Ft
2
Porch
423 Ft
2
Bonus Room
 

Plan Package Options

 Select Plan Package
 Need To Reverse Plan? (Optional)
  Select Foundation Option
  Add-Ons (Optional)
INCLUDED WITH YOUR PURCHASE

Free Ground shipping in the U.S.

FREE

Home Building & Product Ideas Organizer

Sub Total
$0
Free Shipping
QUESTIONS OR NEED HELP ORDERING? LIVE CHAT OR CALL US AT 866-214-2242
Plan Packages

Each set of construction documents typically includes detailed, dimensioned floor plans, basic electric layouts, cross sections, roof details, cabinet layouts, and elevations, as well as general IRC specifications. Please refer to the ARCHITECT or DESIGNER’S PLAN DETAILS link above the floor plan on any plan page to determine the specific details for each plan. Our house plans contain virtually all of the information required to construct your home. The typical plan set does not include plumbing, HVAC drawings, or engineering stamps due to the wide variety of specific needs, local codes, and climatic conditions. These details and specifications are easily obtained from your builder, contractors, and/or local engineers.

BEST PRICE GUARANTEE

Find the same house plan (modifications included!) and package for less on another site, show us the URL and we'll give you the difference plus an additional 10% back.

100% SATISFACTION GUARANTEE

We offer a one-time, 30-day exchange policy for unused, printed plan packages in the event you aren't satisfied with your first selection.

Customer Reviews of House Plan 8369
9/5/2018
Jackie of ELLENWOOD, GA
Customer Review:
Customer service was excellent. I enjoyed working with the staff at The House Designers.

SEE All Reviews
 
 

Plan 8369  Back to plan page

Loading...