Get discounts,
promos, see our
newest plans
and more!
+ 15% off any plan
See terms opt out anytime


No Thanks

Thanks for
signing up!


Use Code:

SIGNUP15

And save 15% off any plan!

Check your email for details.

CLOSE
Search Plans
Customer Reviews
     

Sq Ft
3,510 FT²

Beds
5

Baths
3.5

Stories
2

Garage
3

Depth
45'

Width
68' 6"
From
$1,395.00
EXCLUSIVE PLAN
© copyright by architect
 View All 6 Images | Photographs may reflect modified home
Sq Ft
3,510 FT²
Beds
5
Baths
3.5
Stories
2
Garage
3
Depth
45'
Width
68' 6"
 
Click to Zoom In on Floor Plan
© copyright by architect
 
 

About This Plan

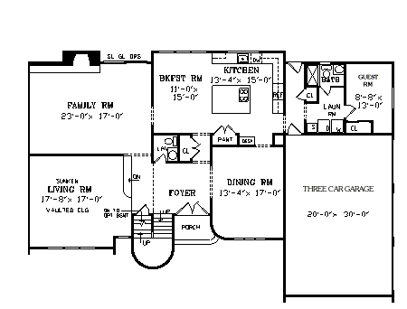
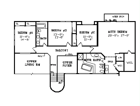
A skylighted silo draws attention to this dazzling contemporary home. Next to the silo-enclosed stairway is a two-story foyer and a sunken living room with a 17-ft. vaulted ceiling. Across the foyer, the elegant formal dining room is located conveniently close to the kitchen. The family room features a fireplace and sliding glass doors to the outside. At the center of the home, a sunny breakfast nook merges with the roomy kitchen. A handy island cooktop maximizes workspace in the kitchen. The main-floor bedroom suite could house an in-law or an overnight guest. The circular staircase leads up to a balcony that overlooks the foyer and living room below. The upper floor sleeping rooms include a master bedroom with a 13-ft. vaulted ceiling and sliding glass doors to a private deck. The master bath features a garden tub and a separate shower. 

See All Plan Options
 

FEATURES & DETAILS

Kitchen features
Kitchen Island
Foundation Options
Basement
Crawlspace
Slab
Additional features
2 Story Volume
Fireplace
In-law Suite
Vaulted Ceilings
Garage Location
Side
Garage Options
Attached
Side-entry
3,510 Ft
2
Total Heated
1,940 Ft
2
1st Floor
1,570 Ft
2
2nd Floor
5
Bedrooms
3.5
Bathrooms
3
Garage
2
Stories
68' 6"
Width
45' 0"
Depth
26' 8"
Height
8'-1"' 0"
Main Floor Ceiling
8'-1"' 0"
Upper Floor Ceiling
2x4
Framing
Stick
Roof Framing
5/12
Primary Roof Pitch
Single
Dwelling Number

Unheated Living Space
627 Ft
2
Garage
Exterior Styles
Collections
 

Plan Package Options

 Select Plan Package
$1,505
5 Printed Sets

Five Printed Sets of Residential Construction Drawings are typically 24” x 36” documents and come with a license to construct a single residence shipped to a physical address. Keep in mind PDF Plan Packages are our most popular choice which allows you to print as many copies as you need and to electronically send files to your builder, subcontractors, etc.

$1,505
$1,580
8 Printed Sets

Eight Printed Sets of Construction Drawings, typically 24” x 36” documents, with a license to construct a single residence shipped to your physical address. PDF Plan Packages are our most popular choice which allows you to print as many copies as you need and to electronically send files to your builder, subcontractors, bank/mortgage reps, material stores, decorators and more.

$1,580
$1,125
PDF Bid Set
PDFs NOW!™

Home plans stamped "NOT FOR CONSTRUCTION" for cost estimating and bidding purposes only; a minimum 5 set plan package must be purchased within 90 days for a license to build plan set; a credit will be applied towards your house plan upgrade

$1,125
$1,395
PDF Single Build
PDFs NOW!™

Digital plans emailed to you in PDF format that allows for printing copies and sharing electronically with contractors, subs, decorators, and more. This package includes a license to build the home one time.

$1,395
  Select Foundation Option
  Add-Ons (Optional)
INCLUDED WITH YOUR PURCHASE

Free Ground shipping in the Continental U.S.

FREE

Home Building & Product Ideas Organizer

Sub Total
$0
Free Shipping
QUESTIONS OR NEED HELP ORDERING? LIVE CHAT OR CALL US AT 866-214-2242
Plan Packages

Each set of construction documents includes detailed, dimensioned floor plans, basic electric layouts, cross sections, roof details, cabinet layouts and elevations, as well as general IRC specifications. They contain virtually all of the information required to construct your home. The typical plan set does not include any plumbing, HVAC drawings, or engineering stamps due to the wide variety of specific needs, local codes, and climatic conditions. These details and specifications are easily obtained from your builder, contractors, and/or local engineers.

BEST PRICE GUARANTEE

Find the same house plan (modifications included!) and package for less on another site, show us the URL and we'll give you the difference plus an additional 5% back.

100% SATISFACTION GUARANTEE

We offer a one-time, 30-day exchange policy for unused, printed plan packages in the event you aren't satisfied with your first selection. Exchanges are subject to a 20% restocking fee.

 
 

Plan 3709  Back to plan page

Loading...