Get discounts,
promos, see our
newest plans
and more!
+ 15% off any plan
See terms opt out anytime


No Thanks

Thanks for
signing up!


Use Code:

SIGNUP15

And save 15% off any plan!

Check your email for details.

CLOSE
Search Plans
Customer Reviews
     
20% off ALL House Plans Sitewide
20% off ALL House Plans Sitewide
20% off ALL House Plans Sitewide

Code: HONOR20
Sale ends midnight 5/25/2026 PST

Sq Ft
1,795 FT²

Beds
4

Baths
2.5

Stories
2

Garage
2

Depth
32'

Width
55' 8"
On Sale
$796.00
$995.00
© copyright by architect
 View All 7 Images | Photographs may reflect modified home
Sq Ft
1,795 FT²
Beds
4
Baths
2.5
Stories
2
Garage
2
Depth
32'
Width
55' 8"
 
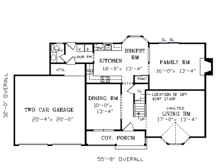
Click to Zoom In on Floor Plan
© copyright by architect
 
 

About This Plan

I created this appealing two-story home to feature a flexible floor plan that allows for up to four bedrooms. The foyer introduces the formal living spaces, which consist of a nice-sized dining room and a spacious living room with a 12-ft. vaulted ceiling and an arched window bay. Overlooking the backyard, the family-sized kitchen incorporates a bayed breakfast nook. The nearby mudroom includes a half-bath and access to the backyard and the garage. A decorative railing connects the casual dining area to the large family room, which boasts an inviting fireplace and sliding glass doors to the backyard. Upstairs, three bedrooms share a full bath. The optional master bedroom suite showcases a 12-ft. vaulted ceiling, a walk-in closet and a private bath with a whirlpool tub and a corner shower. 

See All Plan Options
 

FEATURES & DETAILS

Exterior features
Front Porch
Foundation Options
Basement
Crawlspace
Slab
Additional features
Dining Room
Family Room
Fireplace
Foyer
Vaulted Ceilings
Garage Location
Front
Garage Options
Attached
Front-entry
1,795 Ft
2
Total Heated
1,060 Ft
2
1st Floor
735 Ft
2
2nd Floor
4
Bedrooms
2.5
Bathrooms
2
Garage
2
Stories
55' 8"
Width
32' 0"
Depth
27' 0"
Height
8'-1"' 0"
Main Floor Ceiling
8'-1"' 0"
Upper Floor Ceiling
2x4
Framing
Stick
Roof Framing
8/12
Primary Roof Pitch
Single
Dwelling Number

Unheated Living Space
427 Ft
2
Garage
344 Ft
2
Bonus Room
 

Plan Package Options

 Select Plan Package
  Select Foundation Option
  Add-Ons (Optional)
INCLUDED WITH YOUR PURCHASE

Free Ground shipping in the U.S.

FREE

Home Building & Product Ideas Organizer

Sub Total
$0
Free Shipping
QUESTIONS OR NEED HELP ORDERING? LIVE CHAT OR CALL US AT 866-214-2242
Plan Packages

Each set of construction documents typically includes detailed, dimensioned floor plans, basic electric layouts, cross sections, roof details, cabinet layouts, and elevations, as well as general IRC specifications. Please refer to the ARCHITECT or DESIGNER’S PLAN DETAILS link above the floor plan on any plan page to determine the specific details for each plan. Our house plans contain virtually all of the information required to construct your home. The typical plan set does not include plumbing, HVAC drawings, or engineering stamps due to the wide variety of specific needs, local codes, and climatic conditions. These details and specifications are easily obtained from your builder, contractors, and/or local engineers.

BEST PRICE GUARANTEE

Find the same house plan (modifications included!) and package for less on another site, show us the URL and we'll give you the difference plus an additional 10% back.

100% SATISFACTION GUARANTEE

We offer a one-time, 30-day exchange policy for unused, printed plan packages in the event you aren't satisfied with your first selection.

 
 

Plan 3704  Back to plan page

Loading...