Get discounts,
promos, see our
newest plans
and more!
+ 15% off any plan
See terms opt out anytime


No Thanks

Thanks for
signing up!


Use Code:

SIGNUP15

And save 15% off any plan!

Check your email for details.

CLOSE
Search Plans
Customer Reviews
     
15% Off House Plans Sitewide Ends Sunday
15% Off House Plans Sitewide Ends Sunday
15% Off House Plans Sitewide Ends Sunday

Code: SAVE15
Sale ends midnight 1/25/2026 PST

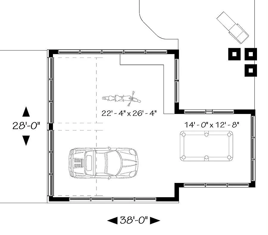
Sq Ft
868 FT²

Beds
0

Baths
0

Stories
1

Garage
2

Depth
28'

Width
38'
On Sale
$446.25
$525.00
© copyright by designer
 View All 5 Images | Photographs may reflect modified home
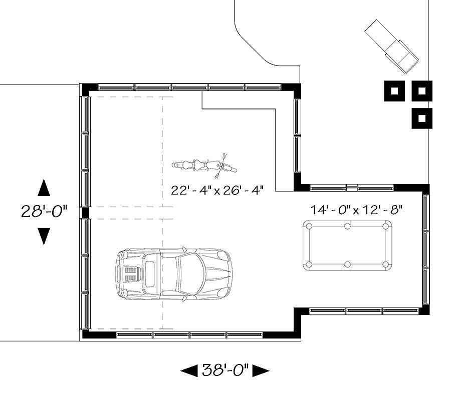
Sq Ft
868 FT²
Beds
0
Baths
0
Stories
1
Garage
2
Depth
28'
Width
38'
 
Click to Zoom In on Floor Plan
© copyright by designer
 
 

About This Plan

This 868 square foot 2-car garage offers a traditional style. With the flexible design, it allows for a game room (pool table, tiki bar or else) and a workshop. Ideal if you want to build a garage in your backyard near the pool to enjoy long summer days. 

See All Plan Options
 

FEATURES & DETAILS

Exterior features
Covered Rear Porch
Foundation Options
Crawlspace
Slab
Lot Options
Suited for corner lot
Additional features
Vaulted Ceilings
Garage Location
Front
Garage Options
Attached
Front-entry
868 Ft
2
Total Heated
2
Garage
1
Stories
38' 0"
Width
28' 0"
Depth
24' 3"
Height
12' 0"
Main Floor Ceiling
2x6
Framing
Truss
Roof Framing
10/12
Primary Roof Pitch
10/12
Secondary Roof Pitch
Garage
Dwelling Number

Unheated Living Space
868 Ft
2
Garage
 

Plan Package Options

 Select Plan Package
 Need To Reverse Plan? (Optional)
  Select Foundation Option
  Add-Ons (Optional)
INCLUDED WITH YOUR PURCHASE

Free Ground shipping in the U.S.

FREE

Home Building & Product Ideas Organizer

Sub Total
$0
Free Shipping
Please allow 3-5 business days for delivery of this plan Please check our PDFs NOW collection for plans that can be downloaded and received immediately or live chat us to help you find a similar plan available now.
QUESTIONS OR NEED HELP ORDERING? LIVE CHAT OR CALL US AT 866-214-2242
Plan Packages

Each set of construction documents includes detailed, dimensioned floor plans, basic electric layouts, cross sections, roof details, cabinet layouts and elevations, as well as general IRC specifications. They contain virtually all of the information required to construct your home. The typical plan set does not include any plumbing, HVAC drawings, or engineering stamps due to the wide variety of specific needs, local codes, and climatic conditions. These details and specifications are easily obtained from your builder, contractors, and/or local engineers.

BEST PRICE GUARANTEE

Find the same house plan (modifications included!) and package for less on another site, show us the URL and we'll give you the difference plus an additional 10% back.

100% SATISFACTION GUARANTEE

We offer a one-time, 30-day exchange policy for unused, printed plan packages in the event you aren't satisfied with your first selection. Exchanges are subject to a 20% restocking fee.

 
 

Plan 4956  Back to plan page

Loading...