Get discounts,
promos, see our
newest plans
and more!
+ 15% off any plan
See terms opt out anytime


No Thanks

Thanks for
signing up!


Use Code:

SIGNUP15

And save 15% off any plan!

Check your email for details.

CLOSE
Search Plans
Customer Reviews
     
15% off ALL House Plans Sitewide
15% off ALL House Plans Sitewide
15% off ALL House Plans Sitewide

Code: SAVE15
Sale ends midnight 4/19/2026 PST

Sq Ft
7,761 FT²

Beds
6

Baths
6.5

Stories
3

Garage
6

Depth
69'

Width
82'
On Sale
$4,165.00
$4,900.00
© copyright by designer
 View All 9 Images | Photographs may reflect modified home
Sq Ft
7,761 FT²
Beds
6
Baths
6.5
Stories
3
Garage
6
Depth
69'
Width
82'
 
Click to Zoom In on Floor Plan
© copyright by designer
 
 

About This Plan

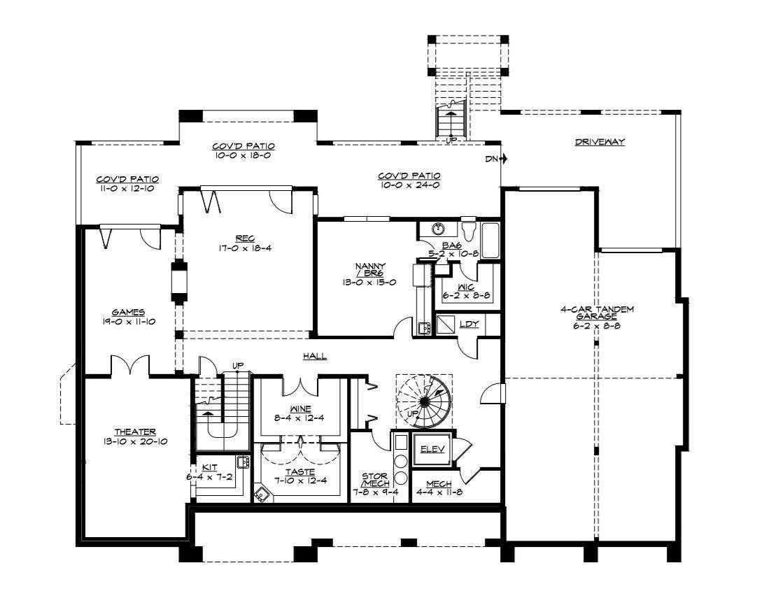
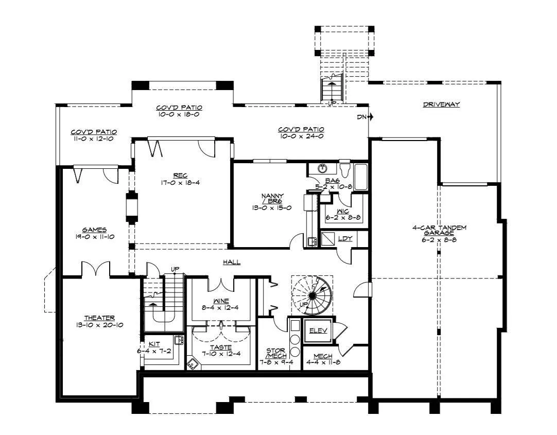
Capturing the easy elegance of a grand Old World hillside estate while taking advantage of a magnificent view, the Valencias adventure begins with its arched stone entry, leading into a dramatic two-story bridged foyer with living room beyond, a cathedral-like space defined by its eight impressive heavy-timber trusses and a huge window wall directed at the view beyond. The private left side of the main floor holds a luxury guest or parents suite, formal powder room and 2-story library. A large formal dining room opens to the right of the foyer. A chefs gourmet double island kitchen, butlery with walk-in pantry, huge glazed nook and family room with multiple covered decks and rear outdoor stair provide spacious all-weather view living areas, while a convenient elevator, circular back stair, mud room and 2-car garage complete the main floor. Upstairs, the owners will enjoy the grand master suite with its sitting room, see-thru fireplace, deluxe master bath and huge walk-in closet. A special feature is the masters private covered deck with spiral stair to a roof-level widows walk. Also upstairs are three deluxe bedroom suites with private baths, the upper library catwalk, elevator, laundry and an enormous bonus room. The lower level includes a massive 4-car tandem garage, elevator, mechanical and storage room, twin stairs, wine cellar and tasting room, movie theatre with snack kitchen, combination recreation room and game room with see-thru fireplace, covered patios galore, and a deluxe nanny, guest or in-laws suite with laundry. Thoughtful design touches like niches, arches, columns, cased openings; extra storage and private decks distinguish spaces and circulation throughout this extraordinary home. The Valencia is a grand expression of traditional design elegance that integrates all the luxuries and conveniences enjoyed by modern lifestyles. 

See All Plan Options
 

FEATURES & DETAILS

Kitchen features
Butler's Pantry
Kitchen Island
Nook / Breakfast Area
Walk-in Pantry
Bedroom features
Double Vanity Sink
Guest Suite
Primary Bdrm Upstairs
Separate Tub and Shower
Sitting Area
Split Bedrooms
Walk-in Closet
Exterior features
Covered Front Porch
Covered Rear Porch
Rear Porch
Foundation Options
Daylight Basement
Lot Options
Suited for sloping lot
Additional features
2 Story Volume
Arches
Bonus Room
Dining Room
Family Room
Fireplace
Formal LR
Foyer
Home Office
Laundry 2nd Fl
Library/Media Rm
Open Floor Plan
Rec Room
Storage Space
Vaulted Ceilings
Wine Cellar
Garage Location
Front
Garage Options
Attached
Drive-under
Front-entry
Rear-entry
Tandem
7,761 Ft
2
Total Heated
2,736 Ft
2
1st Floor
2,740 Ft
2
2nd Floor
2,285 Ft
2
Lower Floor
6
Bedrooms
6.5
Bathrooms
6
Garage
3
Stories
82' 0"
Width
69' 0"
Depth
24' 6"
Height
10' 0"
Main Floor Ceiling
9' 0"
Upper Floor Ceiling
2x6
Framing
Combination
Roof Framing
3
Primary Roof Pitch
Single
Dwelling Number
2nd Floor
Bonus Access

Unheated Living Space
1,534 Ft
2
Garage
 

Plan Package Options

 Select Plan Package
 Need To Reverse Plan? (Optional)
  Select Foundation Option
  Add-Ons (Optional)
INCLUDED WITH YOUR PURCHASE

Free Ground shipping in the U.S.

FREE

Home Building & Product Ideas Organizer

Sub Total
$0
Free Shipping
IMPORTANT NOTE: Due to state regulations, this home is not available for purchase in the State of Washington. Contact us for more information.

Note: This plan cannot be purchased for construction in Washington State.
QUESTIONS OR NEED HELP ORDERING? LIVE CHAT OR CALL US AT 866-214-2242
Plan Packages

Each set of construction documents typically includes detailed, dimensioned floor plans, basic electric layouts, cross sections, roof details, cabinet layouts, and elevations, as well as general IRC specifications. Please refer to the ARCHITECT or DESIGNER’S PLAN DETAILS link above the floor plan on any plan page to determine the specific details for each plan. Our house plans contain virtually all of the information required to construct your home. The typical plan set does not include plumbing, HVAC drawings, or engineering stamps due to the wide variety of specific needs, local codes, and climatic conditions. These details and specifications are easily obtained from your builder, contractors, and/or local engineers.

BEST PRICE GUARANTEE

Find the same house plan (modifications included!) and package for less on another site, show us the URL and we'll give you the difference plus an additional 10% back.

100% SATISFACTION GUARANTEE

We offer a one-time, 30-day exchange policy for unused, printed plan packages in the event you aren't satisfied with your first selection.

 
 

Plan 3342  Back to plan page

Loading...