Get discounts,
promos, see our
newest plans
and more!
+ 15% off any plan
See terms opt out anytime


No Thanks

Thanks for
signing up!


Use Code:

SIGNUP15

And save 15% off any plan!

Check your email for details.

CLOSE
Search Plans
     
20% Off House Plans Sitewide Ends Tuesday
20% Off House Plans Sitewide Ends Tuesday
20% Off House Plans Sitewide Ends Tuesday

Code: VET20
Sale ends midnight 11/11/2025 PST

Sq Ft
1,339 FT²

Beds
2

Baths
1

Stories
1

Garage
1

Depth
50'

Width
38'
On Sale
$1,152.00
$1,440.00
© copyright by designer
 View All 6 Images | Photographs may reflect modified home
Sq Ft
1,339 FT²
Beds
2
Baths
1
Stories
1
Garage
1
Depth
50'
Width
38'
 
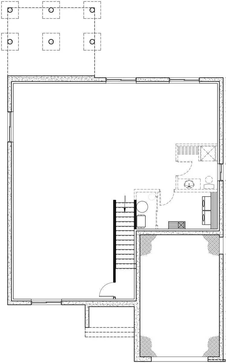
Click to Zoom In on Floor Plan
© copyright by designer
 
 

About This Plan

This small and affordable home is perfect for empty nesters looking to downsize. Urban Valley III has 1,339 square feet of living space includes 2 bedrooms and 1 bath. The main floor master bedroom, complete with a large walk-in closet and bathroom, is open and airy. A small guest bedroom is also located on the main floor. The kitchen, dining, and living areas are open leaving plenty of space for entertaining. Though it’s small in size, there’s plenty of opportunities to customize and make this home your own. 

See All Plan Options
 

FEATURES & DETAILS

Kitchen features
Kitchen Island
Walk-in Pantry
Bedroom features
Separate Tub and Shower
Split Bedrooms
Walk-in Closet
Exterior features
Covered Rear Porch
Lot Options
Suited for sloping lot
Additional features
Foyer
Mud Room
Garage Location
Front
Garage Options
Attached
1,339 Ft
2
Total Heated
1,339 Ft
2
1st Floor
1,339 Ft
2
Lower Floor
2
Bedrooms
1
Bathrooms
1
Garage
1
Stories
38' 0"
Width
50' 0"
Depth
21' 6"
Height
9' 0"
Main Floor Ceiling
13' 2"
Foyer Ceiling
2x6
Framing
Truss
Roof Framing
Single
Dwelling Number
None
Bonus Access

Unheated Living Space
388 Ft
2
Garage
 

Plan Package Options

 Select Plan Package
Sale: $1,152
PDF Single Build
$1,440

Digital plans emailed to you in PDF format that allows for printing copies and sharing electronically with contractors, subs, decorators, and more. This package includes a license to build the home one time.

Sale: $1,152
Sale: $1,264
3 sets + PDF
$1,580
Please allow 3-5 days for delivery
Sale: $1,264
Sale: $1,952
CAD + PDF Single Build
$2,440

CAD files are a complete set of construction drawings delivered electronically. They can be used for any type of modification—including major design changes and engineering—and include a release granting permission to modify the plan. Most CAD plan orders are emailed the same or next business day.
 
This package also comes with a PDF set of plans and a copyright release for making modifications and printing unlimited copies.
 
CAD files are provided in .dwg format. For details on the specific CAD program used, please refer to the PLAN DETAILS section located above the floor plan on each plan’s page.

Sale: $1,952
 Need To Reverse Plan? (Optional)
$250
Readable Reverse

Reverse house plans with readable text and dimensions 

$250
  Select Foundation Option
  Add-Ons (Optional)
INCLUDED WITH YOUR PURCHASE

Free Ground shipping in the Continental U.S.

FREE

Design consultation with the architect or designer to discuss your plan

Home Building & Product Ideas Organizer

Sub Total
$0
Free Shipping
Please allow 3-5 business days for delivery of this plan Please check our PDFs NOW collection for plans that can be downloaded and received immediately or live chat us to help you find a similar plan available now.
QUESTIONS OR NEED HELP ORDERING? LIVE CHAT OR CALL US AT 866-214-2242
Plan Packages

Each set of construction documents includes detailed, dimensioned floor plans, basic electric layouts, cross sections, roof details, cabinet layouts and elevations, as well as general IRC specifications. They contain virtually all of the information required to construct your home. The typical plan set does not include any plumbing, HVAC drawings, or engineering stamps due to the wide variety of specific needs, local codes, and climatic conditions. These details and specifications are easily obtained from your builder, contractors, and/or local engineers.

BEST PRICE GUARANTEE

find the same house plan (modifications included!) and package for less on another site, show us the URL and we'll give you the difference plus an additional 5% back.

100% SATISFACTION GUARANTEE

We offer a one-time, 30-day exchange policy for unused, non-electronic plan packages in the event you aren't satisfied with your first selection.

 
 

Plan 8824  Back to plan page

Loading...