Get discounts,
promos, see our
newest plans
and more!
+ 15% off any plan
See terms opt out anytime


No Thanks

Thanks for
signing up!


Use Code:

SIGNUP15

And save 15% off any plan!

Check your email for details.

CLOSE
Search Plans
Customer Reviews
     
15% Off House Plans Sitewide Ends Sunday

Code: SAVE15
Sale ends midnight 1/11/2026 PST

Sq Ft
3,215 FT²

Beds
4

Baths
3.5

Stories
2

Garage
3

Depth
55'

Width
68'
From
$2,150.00
© copyright by designer
 View All 8 Images | Photographs may reflect modified home
Sq Ft
3,215 FT²
Beds
4
Baths
3.5
Stories
2
Garage
3
Depth
55'
Width
68'
 
Click to Zoom In on Floor Plan
© copyright by designer
 
 

About This Plan

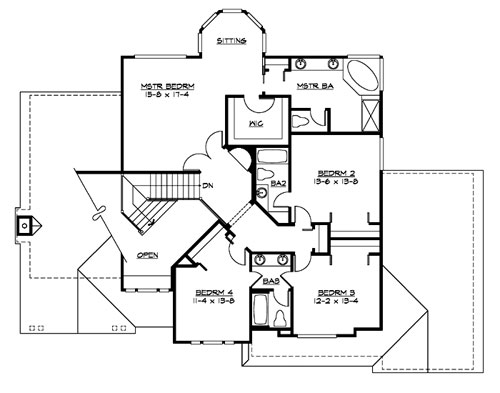
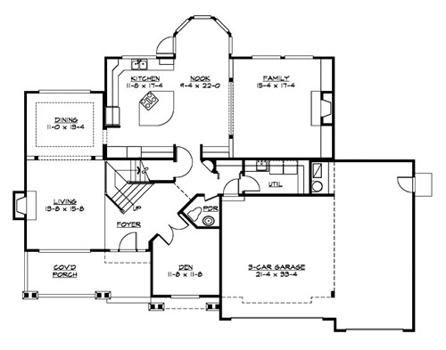
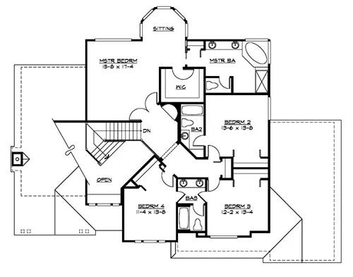
Terrific curb appeal combined with a family-friendly floor plan make the Trillium Lane one of the designers most popular plans. The graceful arched gables and traditional craftsman trim details create a delightful composition. The dramatic double-height foyer beautifully displays the unique angled stair, while efficient circulation allows for generously sized rooms, including the oversize island kitchen, nook and family room. The grand master suite offers an octagonal sitting area, large walk-in closet, and a spacious master bath. A guest bedroom with ensuite bath and two additional bedrooms with a Jack-and-Jill bath complete the upper floor. 

See All Plan Options
 

FEATURES & DETAILS

Kitchen features
Kitchen Island
Nook / Breakfast Area
Bedroom features
Double Vanity Sink
Primary Bdrm Upstairs
Separate Tub and Shower
Sitting Area
Walk-in Closet
Exterior features
Covered Front Porch
Front Porch
Foundation Options
Crawlspace
Additional features
2 Story Volume
Dining Room
Family Room
Fireplace
Formal LR
Foyer
Laundry 1st Fl
Library/Media Rm
Open Floor Plan
Vaulted Ceilings
Garage Location
Front
Garage Options
Attached
Front-entry
3,215 Ft
2
Total Heated
1,686 Ft
2
1st Floor
1,529 Ft
2
2nd Floor
4
Bedrooms
3.5
Bathrooms
3
Garage
2
Stories
68' 0"
Width
55' 0"
Depth
30' 6"
Height
9' 0"
Main Floor Ceiling
8' 0"
Upper Floor Ceiling
2x6
Framing
Combination
Roof Framing
8
Primary Roof Pitch
Single
Dwelling Number

Unheated Living Space
885 Ft
2
Garage
 

Plan Package Options

 Select Plan Package
$2,150
PDF Single Build

Digital plans emailed to you in PDF format that allows for printing copies and sharing electronically with contractors, subs, decorators, and more. This package includes a license to build the home one time.

$2,150
$3,500
CAD + PDF Unlimited Build

This plan package is created in AutoCAD and delivered in .DWG format. CAD files are intended for use by design professionals, structural engineers, and builders to update plans for local building codes or to make revisions based on specific needs, lot requirements, and budget considerations. A complimentary PDF copy is included with this package for reference. CAD packages are delivered within 1 to 2 business days.
 
This package also comes with a multi-use building license, granting permission to construct the home an unlimited number of times, along with a copyright release for making revisions and printing unlimited copies.
 
For details on the specific CAD program used, please refer to the PLAN DETAILS section located above the floor plan on each plan page.

$3,500
 Need To Reverse Plan? (Optional)
$300
Readable Reverse

Reverse house plans with readable text and dimensions 

$300
  Select Foundation Option
  Add-Ons (Optional)
INCLUDED WITH YOUR PURCHASE

Free Ground shipping in the Continental U.S.

FREE

Home Building & Product Ideas Organizer

Sub Total
$0
Free Shipping
IMPORTANT NOTE: Due to state regulations, this home is not available for purchase in the State of Washington. Contact us for more information.

Note: This plan cannot be purchased for construction in Washington State.
QUESTIONS OR NEED HELP ORDERING? LIVE CHAT OR CALL US AT 866-214-2242
Plan Packages

Each set of construction documents includes detailed, dimensioned floor plans, basic electric layouts, cross sections, roof details, cabinet layouts and elevations, as well as general IRC specifications. They contain virtually all of the information required to construct your home. The typical plan set does not include any plumbing, HVAC drawings, or engineering stamps due to the wide variety of specific needs, local codes, and climatic conditions. These details and specifications are easily obtained from your builder, contractors, and/or local engineers.

BEST PRICE GUARANTEE

Find the same house plan (modifications included!) and package for less on another site, show us the URL and we'll give you the difference plus an additional 5% back.

100% SATISFACTION GUARANTEE

We offer a one-time, 30-day exchange policy for unused, printed plan packages in the event you aren't satisfied with your first selection. Exchanges are subject to a 20% restocking fee.

 
 

Plan 3223  Back to plan page

Loading...