Get discounts,
promos, see our
newest plans
and more!
+ 15% off any plan
See terms opt out anytime


No Thanks

Thanks for
signing up!


Use Code:

SIGNUP15

And save 15% off any plan!

Check your email for details.

CLOSE
Search Plans
Customer Reviews
     
20% off ALL House Plans Sitewide
20% off ALL House Plans Sitewide
20% off ALL House Plans Sitewide

Code: SAVE20
Sale ends midnight 5/13/2026 PST

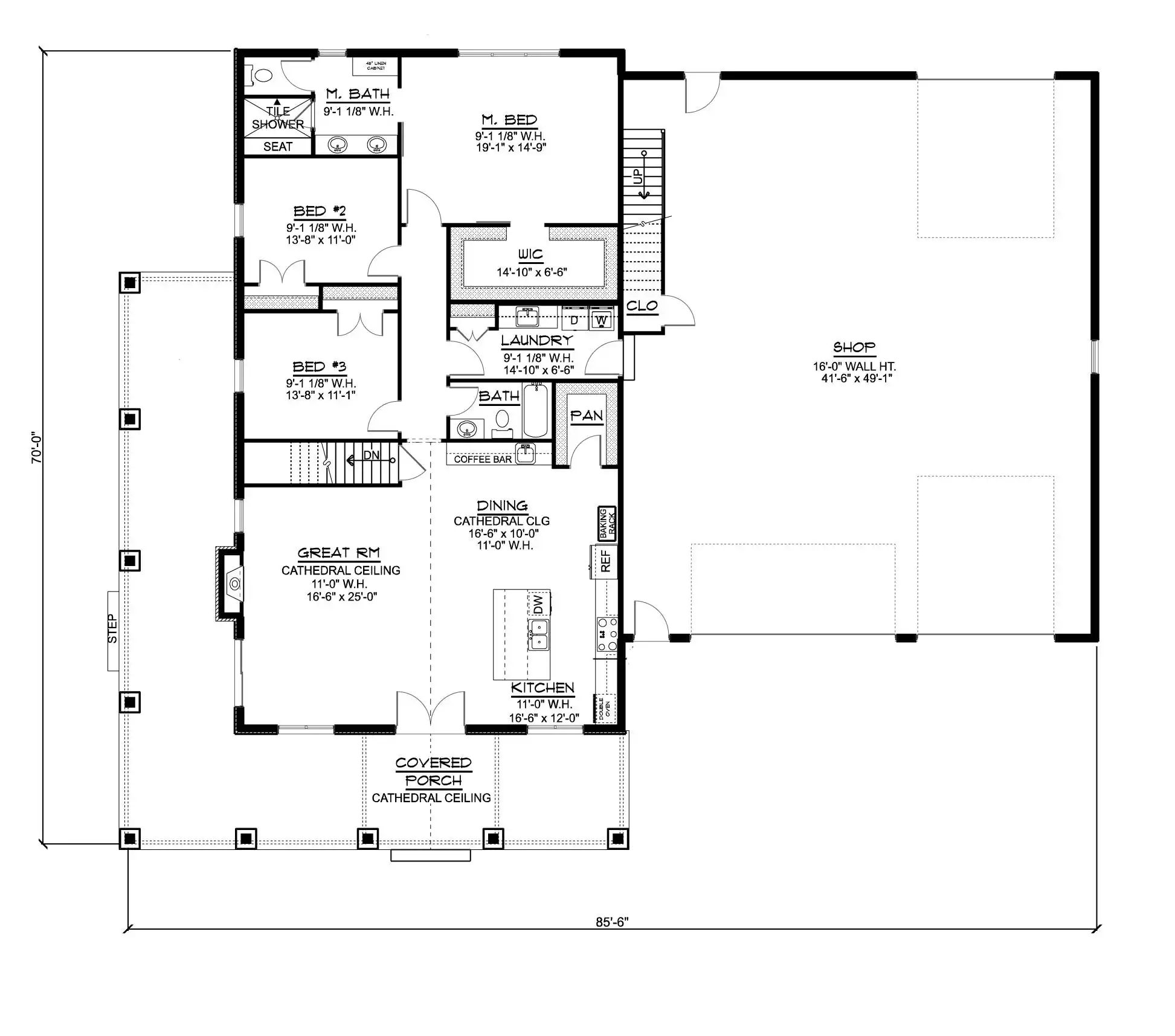
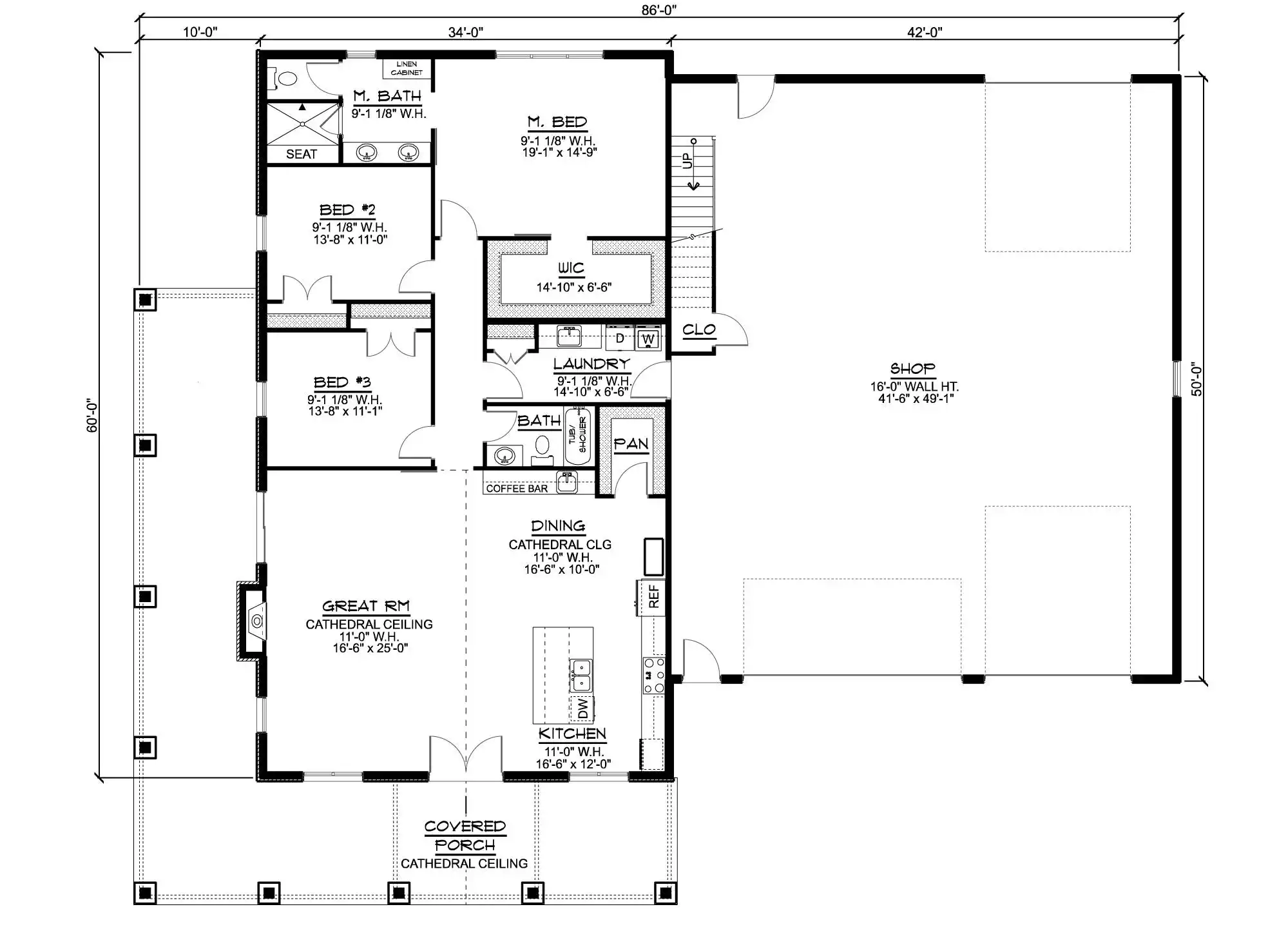
Croydon Place | 3 Bedroom Barndominium Style House, Plan 10870

 
 

Sq Ft
2,039 FT²

Beds
3

Baths
2

Stories
1

Garage
3

Depth
70'

Width
86'
On Sale
$1,000.00
$1,250.00
© copyright by designer
 View All 7 Images | Photographs may reflect modified home
Sq Ft
2,039 FT²
Beds
3
Baths
2
Stories
1
Garage
3
Depth
70'
Width
86'
 
Click to Zoom In on Floor Plan
© copyright by designer
 
 

About This Plan

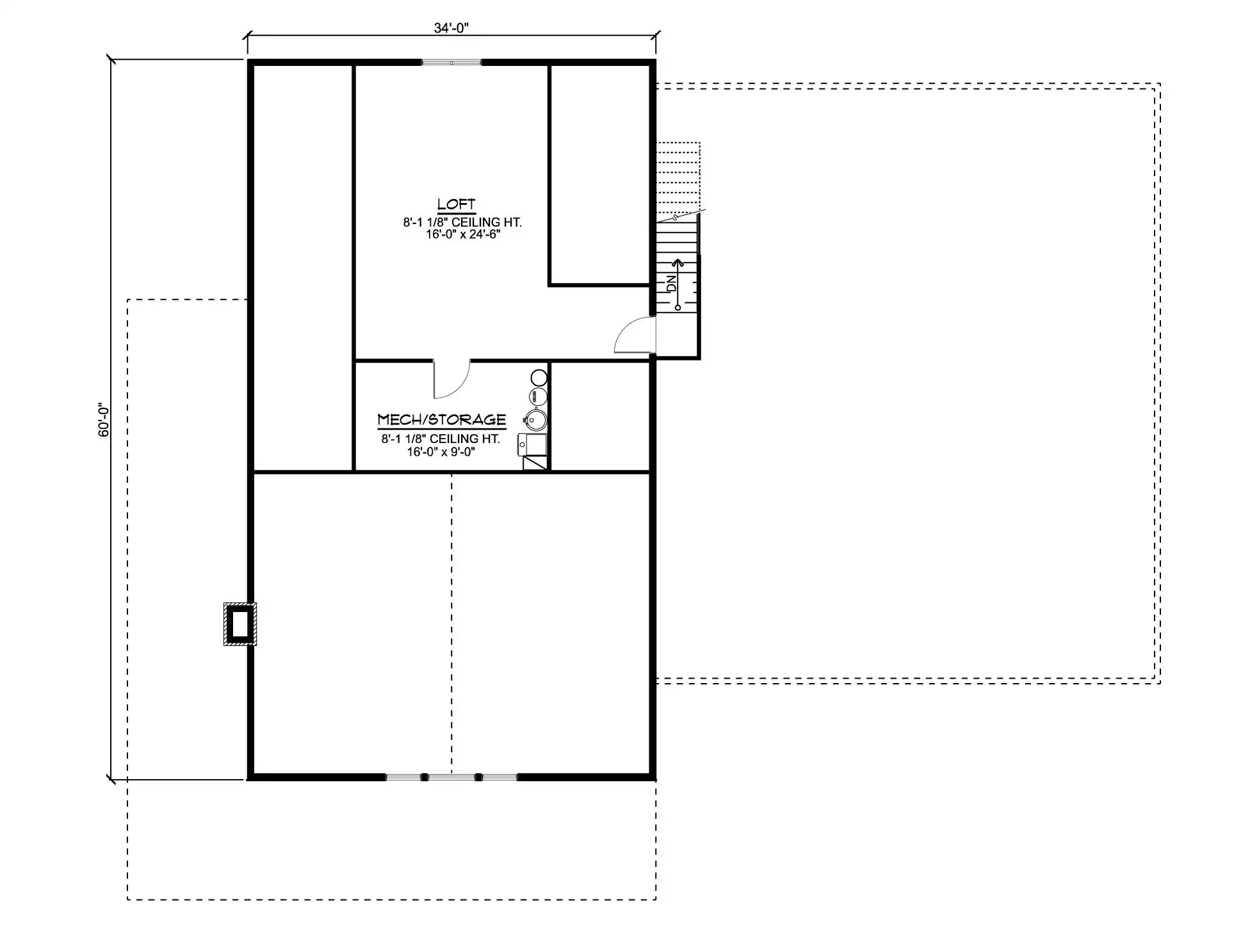
Welcome to Croydon Place, a stunning 2,039 sq. ft. country barndominium that blends classic rural charm with versatile modern living. This 3-bedroom, 2-bathroom home offers a spacious and open main floor layout perfect for families, hobbyists, or those seeking flexible space to grow. The vaulted living area invites natural light and warmth, creating an ideal setting for gathering and relaxation. Upstairs, a loft overlooks the heart of the home and provides bonus living or office space, while a dedicated storage area ensures everything has its place. The expansive 3-car garage is perfect for vehicles, workshop needs, or outdoor equipment. With a width of 86 feet and depth of 70 feet, Croydon Place fits beautifully on wide lots and offers generous outdoor connection opportunities. Whether you’re settling into a peaceful countryside or building your dream shop-home, this barndominium delivers comfort, character, and utility in one thoughtfully designed package. 

See All Plan Options
 

FEATURES & DETAILS

Kitchen features
Kitchen Island
L-Shaped
Walk-in Pantry
Bedroom features
Double Vanity Sink
Family Style
Primary Bdrm Main Floor
Walk-in Closet
Exterior features
Covered Front Porch
Outdoor Living Space
Wraparound Porch
Lot Options
Suited for view lot
Additional features
Dining Room
Fireplace
Great Room
Laundry 1st Fl
Loft / Balcony
Mud Room
Open Floor Plan
Storage Space
Vaulted Ceilings
Vaulted Great Room/Living
Workshop
Garage Location
Front
Garage Options
Attached
Front-entry
Rear-entry
RV Garage
5,618 Ft
2
Total Structure
2,039 Ft
2
Total Heated
2,039 Ft
2
1st Floor
626 Ft
2
2nd Floor
3
Bedrooms
2
Bathrooms
3
Garage
1
Stories
86' 0"
Width
70' 0"
Depth
25' 8"
Height
9' 0"
Main Floor Ceiling
8' 0"
Upper Floor Ceiling
2x6
Framing
Truss
Roof Framing
9/12
Primary Roof Pitch
4/12
Secondary Roof Pitch
Single
Dwelling Number
None
Bonus Access

Unheated Living Space
2,123 Ft
2
Garage
830 Ft
2
Porch
 

Plan Package Options

 Select Plan Package
 Need To Reverse Plan? (Optional)
  Select Foundation Option
  Add-Ons (Optional)
INCLUDED WITH YOUR PURCHASE

Free Ground shipping in the U.S.

FREE

Home Building & Product Ideas Organizer

Sub Total
$0
Free Shipping
QUESTIONS OR NEED HELP ORDERING? LIVE CHAT OR CALL US AT 866-214-2242
Plan Packages

Each set of construction documents typically includes detailed, dimensioned floor plans, basic electric layouts, cross sections, roof details, cabinet layouts, and elevations, as well as general IRC specifications. Please refer to the ARCHITECT or DESIGNER’S PLAN DETAILS link above the floor plan on any plan page to determine the specific details for each plan. Our house plans contain virtually all of the information required to construct your home. The typical plan set does not include plumbing, HVAC drawings, or engineering stamps due to the wide variety of specific needs, local codes, and climatic conditions. These details and specifications are easily obtained from your builder, contractors, and/or local engineers.

BEST PRICE GUARANTEE

Find the same house plan (modifications included!) and package for less on another site, show us the URL and we'll give you the difference plus an additional 10% back.

100% SATISFACTION GUARANTEE

We offer a one-time, 30-day exchange policy for unused, printed plan packages in the event you aren't satisfied with your first selection.

 
 

Plan 10870  Back to plan page

Loading...