Get discounts,
promos, see our
newest plans
and more!
+ 15% off any plan
See terms opt out anytime


No Thanks

Thanks for
signing up!


Use Code:

SIGNUP15

And save 15% off any plan!

Check your email for details.

CLOSE
Search Plans
Customer Reviews
     
15% off ALL House Plans Sitewide
15% off ALL House Plans Sitewide
15% off ALL House Plans Sitewide

Code: HONOR
Sale ends midnight 5/29/2026 PST

The Woodbridge Affordable Ranch Style House, Plan 6989

 
 

Sq Ft
1,948 FT²

Beds
3

Baths
2

Stories
1

Garage
2

Depth
40' 2"

Width
74' 4"
On Sale
$892.50
$1,050.00
© copyright by designer
 View All 6 Images | Photographs may reflect modified home
Sq Ft
1,948 FT²
Beds
3
Baths
2
Stories
1
Garage
2
Depth
40' 2"
Width
74' 4"
 
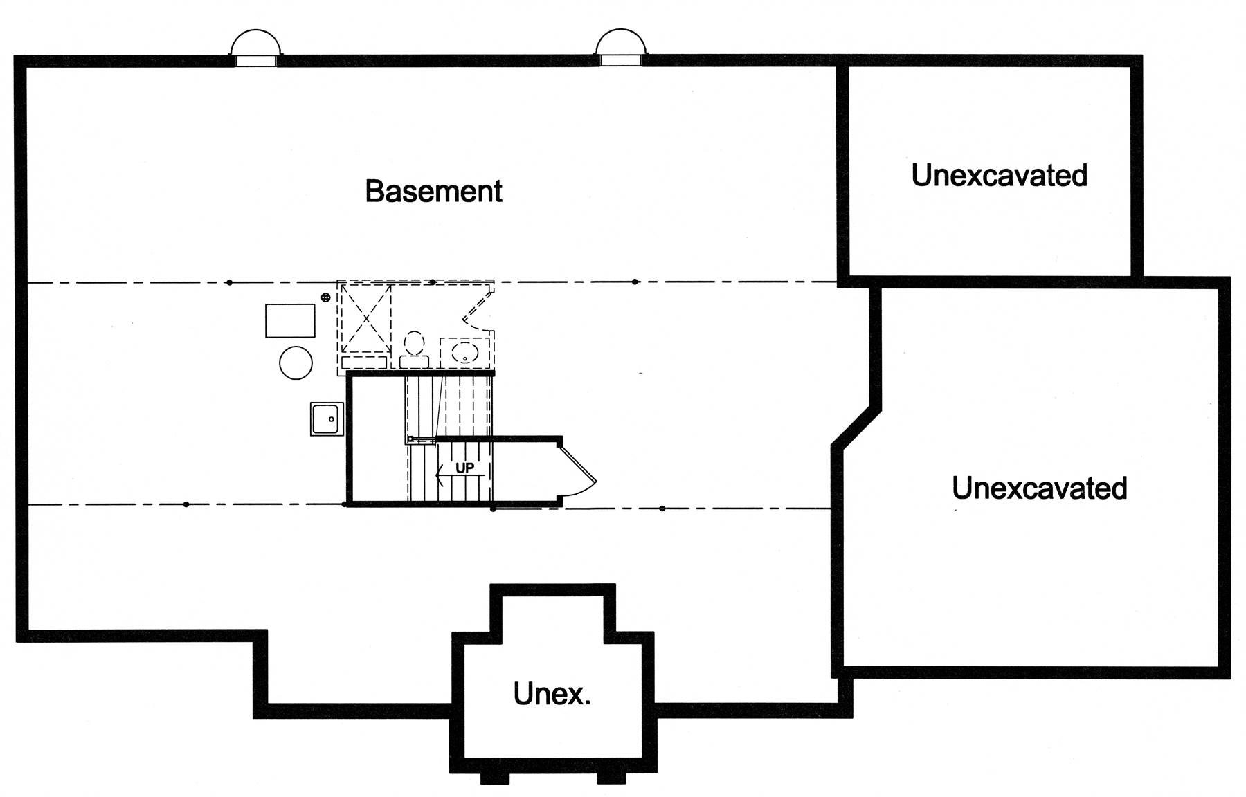
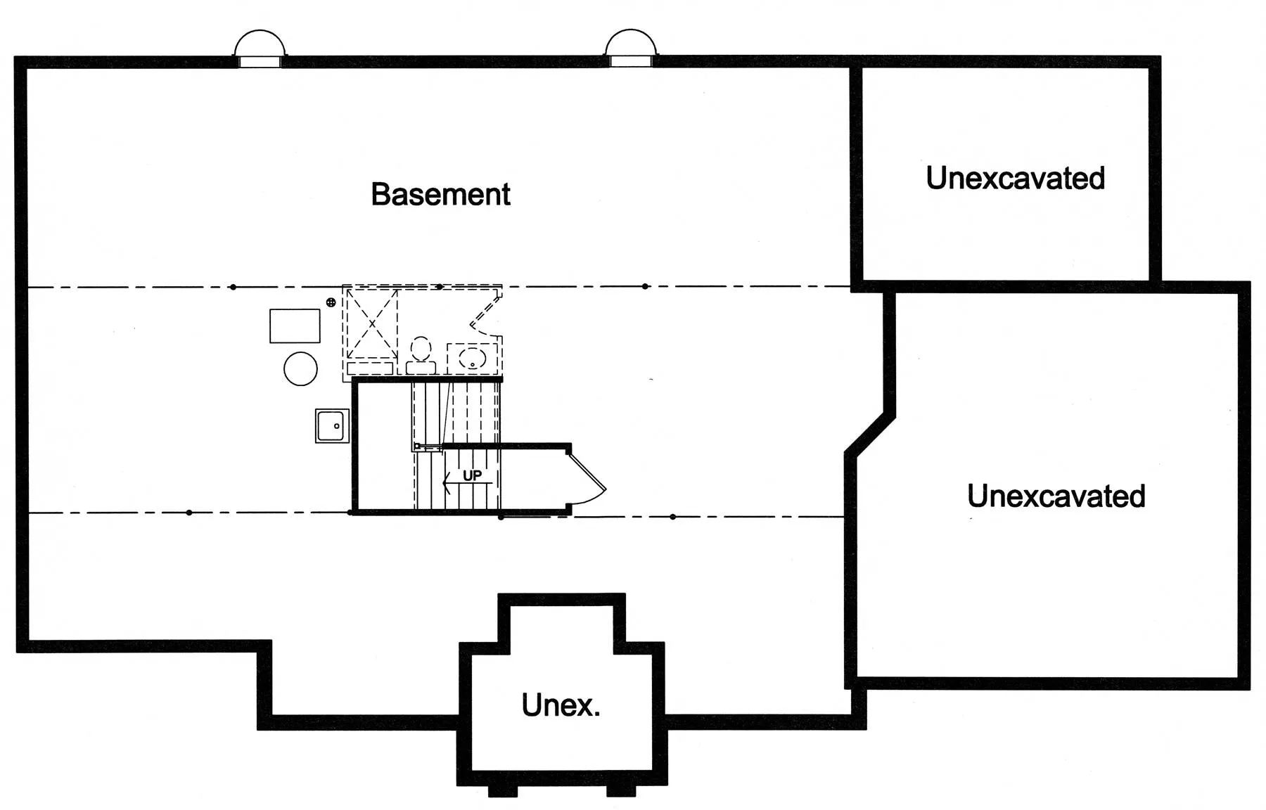
Click to Zoom In on Floor Plan
© copyright by designer
 
 

About This Plan

An inviting and pleasant feel abounds this entire ranch style plan. With 1,948 square feet, 3 bedrooms, 2 bathrooms, and the addition of a basement, this home pairs affordability with appeal to create the complete package. A grand stone archway adorns the front entrance which leads in to the foyer. The floor plan then flows in to a breathtaking grand room, which combined the kitchen, dining room, and family room all in to one vaulted space. Directly off of this is a covered porch and grilling patio, making barbecues a thing of ease. A magnificent master suite is accompanied by 2 more bedrooms and an adjacent master bath and walk-in closet. This plan comes with an excavated but unfinished basement, a true blank canvas to make the house custom to you from top to bottom. A 2-car garage completes the space in the home with plenty of storage to boot 

See All Plan Options
 

FEATURES & DETAILS

Kitchen features
Kitchen Island
Nook / Breakfast Area
Peninsula / Eating Bar
Bedroom features
Double Vanity Sink
Primary Bdrm Main Floor
Walk-in Closet
Exterior features
Covered Rear Porch
Front Porch
Rear Porch
Foundation Options
Basement
Additional features
Fireplace
Foyer
Great Room
Laundry 1st Fl
Open Floor Plan
Storage Space
Unfinished Space
Garage Location
Side
Garage Options
Attached
Front-entry
1,948 Ft
2
Total Heated
1,948 Ft
2
1st Floor
3
Bedrooms
2
Bathrooms
2
Garage
1
Stories
74' 4"
Width
40' 2"
Depth
24' 2"
Height
9' 0"
Main Floor Ceiling
2x4
Framing
Truss
Roof Framing
8:12
Primary Roof Pitch
12:14
Secondary Roof Pitch
Single
Dwelling Number

Unheated Living Space
511 Ft
2
Garage
244 Ft
2
Porch
 

Plan Package Options

 Select Plan Package
 Need To Reverse Plan? (Optional)
  Select Foundation Option
  Add-Ons (Optional)
INCLUDED WITH YOUR PURCHASE

Free Ground shipping in the U.S.

FREE

Home Building & Product Ideas Organizer

Sub Total
$0
Free Shipping
QUESTIONS OR NEED HELP ORDERING? LIVE CHAT OR CALL US AT 866-214-2242
Plan Packages

Each set of construction documents typically includes detailed, dimensioned floor plans, basic electric layouts, cross sections, roof details, cabinet layouts, and elevations, as well as general IRC specifications. Please refer to the ARCHITECT or DESIGNER’S PLAN DETAILS link above the floor plan on any plan page to determine the specific details for each plan. Our house plans contain virtually all of the information required to construct your home. The typical plan set does not include plumbing, HVAC drawings, or engineering stamps due to the wide variety of specific needs, local codes, and climatic conditions. These details and specifications are easily obtained from your builder, contractors, and/or local engineers.

BEST PRICE GUARANTEE

Find the same house plan (modifications included!) and package for less on another site, show us the URL and we'll give you the difference plus an additional 10% back.

100% SATISFACTION GUARANTEE

We offer a one-time, 30-day exchange policy for unused, printed plan packages in the event you aren't satisfied with your first selection.

 
 

Plan 6989  Back to plan page

Loading...