Get discounts,
promos, see our
newest plans
and more!
+ 15% off any plan
See terms opt out anytime


No Thanks

Thanks for
signing up!


Use Code:

SIGNUP15

And save 15% off any plan!

Check your email for details.

CLOSE
Search Plans
Customer Reviews
     

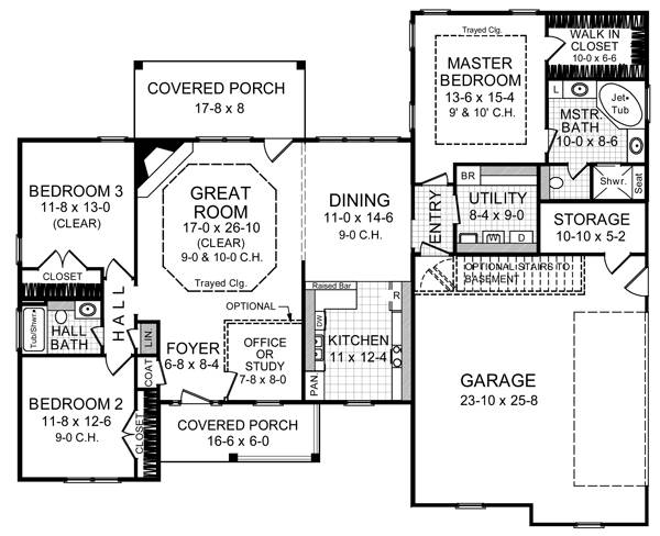
European Ranch Style House, Plan 5760- The Westford

 
 

Sq Ft
1,801 FT²

Beds
3

Baths
2

Stories
1

Garage
2

Depth
53' 4"

Width
65' 2"
From
$1,300.00
© copyright by designer
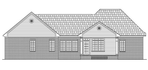
 View All 3 Images | Photographs may reflect modified home
Sq Ft
1,801 FT²
Beds
3
Baths
2
Stories
1
Garage
2
Depth
53' 4"
Width
65' 2"
 
Click to Zoom In on Floor Plan
© copyright by designer
 
 

About This Plan

This home features the popular split floorplan layout and includes a spacious, open living area where your family can relax at the end of a long day. The isolated master suite has a trayed ceiling, jet tub, seperate shower, large walk-in closets, and dual lavatories. The large utility/laundry has plenty of space for storing and folding clothing and other goods. The expansive great room features a gas log fireplace, and space to build an optional home office/study. The covered rear porch is a great space for grilling-out and visiting with friends. The kitchen has a raised bar for friends and family to visit while keeping them out of the work triangle. A great plan and easy to build. 

See All Plan Options
 

FEATURES & DETAILS

Kitchen features
Country Kitchen
Peninsula / Eating Bar
Bedroom features
Double Vanity Sink
Primary Bdrm Main Floor
Separate Tub and Shower
Split Bedrooms
Walk-in Closet
Exterior features
Covered Front Porch
Covered Rear Porch
Front Porch
Rear Porch
Foundation Options
Crawlspace
Slab
Lot Options
Suited for corner lot
Suited for sloping lot
Suited for view lot
Additional features
Dining Room
Exercise Room
Foyer
Great Room
Home Office
Laundry 1st Fl
Library/Media Rm
Open Floor Plan
Storage Space
Unfinished Space
Workshop
Garage Location
Side
Garage Options
Attached
Oversized
1,801 Ft
2
Total Heated
3
Bedrooms
2
Bathrooms
2
Garage
1
Stories
65' 2"
Width
53' 4"
Depth
21' 9"
Height
9' 0"
Main Floor Ceiling
2x4
Framing
Stick
Roof Framing
8/12
Primary Roof Pitch
10:12
Secondary Roof Pitch
12:12
Teritary Roof Pitch
Single
Dwelling Number
None
Bonus Access

Unheated Living Space
657 Ft
2
Garage
61 Ft
2
Storage
240 Ft
2
Porch
 

Plan Package Options

 Select Plan Package
$1,150
Study Set - Printed
One printed set of house plans stamped NOT FOR CONSTRUCTION". This set is intended for review purposes and are mailed to you. To build from the plans, you need to upgrade to a licensed set.
$1,150
$1,400
5 Printed Sets

Five Printed Sets of Residential Construction Drawings are typically 24” x 36” documents and come with a license to construct a single residence shipped to a physical address. Keep in mind PDF Plan Packages are our most popular choice which allows you to print as many copies as you need and to electronically send files to your builder, subcontractors, etc.

$1,400
$1,600
5 Printed Sets + PDF

Includes 5 physical printed blueprints shipped and delivered within 3-5 business days and a copyright release license to construct one home and to make copies. A complimentary PDF plan set is also emailed within 1 business day for easy sharing and local printing. 

$1,600
$1,300
PDF Single Build

Digital plans emailed to you in PDF format that allows for printing copies and sharing electronically with contractors, subs, decorators, and more. This package includes a license to build the home one time.

$1,300
$1,950
CAD + PDF Single Build

This plan package is created in AutoCAD and delivered in .DWG format. CAD files are intended for use by design professionals, structural engineers, and builders to update plans for local building codes or to make revisions based on specific needs, lot requirements, and budget considerations. A complimentary PDF copy is included with this package for reference. CAD packages are delivered within 1 to 2 business days.
 
This package also comes with a copyright release for making revisions and printing unlimited copies.

For details on the specific CAD program used, please refer to the PLAN DETAILS section located above the floor plan on each plan page.

$1,950
 Need To Reverse Plan? (Optional)
$150
Readable Reverse

Reverse house plans with readable text and dimensions 

$150
  Select Foundation Option
  Add-Ons (Optional)
INCLUDED WITH YOUR PURCHASE

Free Ground shipping in the Continental U.S.

FREE

Home Building & Product Ideas Organizer

Sub Total
$0
Free Shipping
QUESTIONS OR NEED HELP ORDERING? LIVE CHAT OR CALL US AT 866-214-2242
Plan Packages

Each set of construction documents includes detailed, dimensioned floor plans, basic electric layouts, cross sections, roof details, cabinet layouts and elevations, as well as general IRC specifications. They contain virtually all of the information required to construct your home. The typical plan set does not include any plumbing, HVAC drawings, or engineering stamps due to the wide variety of specific needs, local codes, and climatic conditions. These details and specifications are easily obtained from your builder, contractors, and/or local engineers.

BEST PRICE GUARANTEE

Find the same house plan (modifications included!) and package for less on another site, show us the URL and we'll give you the difference plus an additional 5% back.

100% SATISFACTION GUARANTEE

We offer a one-time, 30-day exchange policy for unused, printed plan packages in the event you aren't satisfied with your first selection. Exchanges are subject to a 20% restocking fee.

 
 

Plan 5760  Back to plan page

Loading...