Get discounts,
promos, see our
newest plans
and more!
+ 15% off any plan
See terms opt out anytime


No Thanks

Thanks for
signing up!


Use Code:

SIGNUP15

And save 15% off any plan!

Check your email for details.

CLOSE
Search Plans
Customer Reviews
     
15% off ALL House Plans Sitewide
15% off ALL House Plans Sitewide
15% off ALL House Plans Sitewide

Code: HONOR
Sale ends midnight 5/31/2026 PST

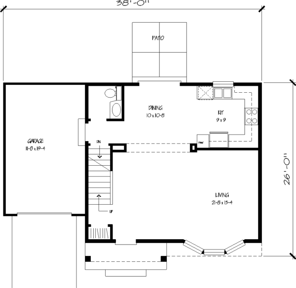
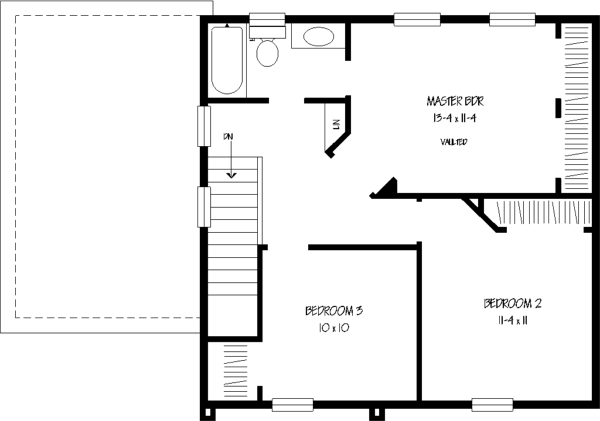
Sq Ft
1,300 FT²

Beds
3

Baths
1.5

Stories
2

Garage
1

Depth
26'

Width
38'
On Sale
$653.65
$769.00
© copyright by designer
 View All 4 Images | Photographs may reflect modified home
Sq Ft
1,300 FT²
Beds
3
Baths
1.5
Stories
2
Garage
1
Depth
26'
Width
38'
 
Click to Zoom In on Floor Plan
© copyright by designer
 
 

About This Plan

This compact and efficient design is perfect for the first-time home builder. The main floor provides an open, spacious living room for family activities or formal entertaining. The attached dining room opens to a lovely patio and is easily serviced by the modern U-shaped kitchen. A convenient half-bath and the garage entrance are nearby. Upstairs, double doors open to the handsome master bedroom, where the ceiling vaults to a flat area of 9 feet. The adjoining full bath can be entered from the master bedroom or from the hall. The garage may be omitted for a narrow lot, or expanded to accommodate a second car. 

See All Plan Options
 

FEATURES & DETAILS

Foundation Options
Basement
Lot Options
Suited for narrow lot
Suited for sloping lot
Suited for view lot
Garage Location
Front
Garage Options
Attached
Front-entry
1,300 Ft
2
Total Heated
624 Ft
2
1st Floor
624 Ft
2
2nd Floor
3
Bedrooms
1.5
Bathrooms
1
Garage
2
Stories
38' 0"
Width
26' 0"
Depth
23' 0"
Height
2x4
Framing
Combination
Roof Framing
Single
Dwelling Number

Unheated Living Space
 

Plan Package Options

 Select Plan Package
  Select Foundation Option
  Add-Ons (Optional)
INCLUDED WITH YOUR PURCHASE

Free Ground shipping in the U.S.

FREE

Home Building & Product Ideas Organizer

Sub Total
$0
Free Shipping
QUESTIONS OR NEED HELP ORDERING? LIVE CHAT OR CALL US AT 866-214-2242
Plan Packages

Each set of construction documents typically includes detailed, dimensioned floor plans, basic electric layouts, cross sections, roof details, cabinet layouts, and elevations, as well as general IRC specifications. Please refer to the ARCHITECT or DESIGNER’S PLAN DETAILS link above the floor plan on any plan page to determine the specific details for each plan. Our house plans contain virtually all of the information required to construct your home. The typical plan set does not include plumbing, HVAC drawings, or engineering stamps due to the wide variety of specific needs, local codes, and climatic conditions. These details and specifications are easily obtained from your builder, contractors, and/or local engineers.

BEST PRICE GUARANTEE

Find the same house plan (modifications included!) and package for less on another site, show us the URL and we'll give you the difference plus an additional 10% back.

100% SATISFACTION GUARANTEE

We offer a one-time, 30-day exchange policy for unused, printed plan packages in the event you aren't satisfied with your first selection.

Customer Reviews of House Plan 1655
1/4/2013
Brooks of Leominster, MA
Customer Review:
The House Designers was great to work with. The modification team was very good to work with. This plan took a small space and really made it look much bigger. We highly recommend this house plan.

SEE All Reviews
 
 

Plan 1655  Back to plan page

Loading...