Get discounts,
promos, see our
newest plans
and more!
+ 15% off any plan
See terms opt out anytime


No Thanks

Thanks for
signing up!


Use Code:

SIGNUP15

And save 15% off any plan!

Check your email for details.

CLOSE
Search Plans
Customer Reviews
     
22% Off House Plans Sitewide Ends Sunday
22% Off House Plans Sitewide Ends Sunday
22% Off House Plans Sitewide Ends Sunday

Code: SAVE22
Sale ends midnight 12/7/2025 PST

Sq Ft
1,963 FT²

Beds
3

Baths
2

Stories
1

Garage
2

Depth
57' 6"

Width
57' 8"
On Sale
$1,088.10
$1,395.00
© copyright by designer
 View All 3 Images | Photographs may reflect modified home
Sq Ft
1,963 FT²
Beds
3
Baths
2
Stories
1
Garage
2
Depth
57' 6"
Width
57' 8"
 
Click to Zoom In on Floor Plan
© copyright by designer
 
 

About This Plan

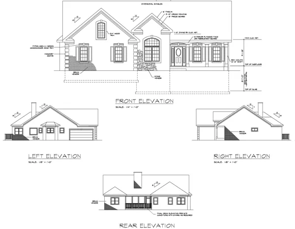
This striking and distinctive ranch includes all the frills. From the inviting front porch to the screened porch and deck, this home provides dramatic spaces, luxurious appointments, and spacious living sreas. The bonus room and basement provide plenty of space for expansion, so this home is one that won't soon be outgrown.

Just beyond the porch is the entrywith 11' high ceilings. To the left is the dining room open to the entry and family room, also with an 11' high ceiling. Stairs to the bonus room are directly off the family room. The "U" shaped kitchen is open and includes a breakfast bar. The dramatic master suite is loaded with amenities such as a double step tray ceiling, direct access to the screened porch, a sitting room, deluxe bath and his and hers walk in closet. The comfortably sized secondary bedrooms are connected by "Jack and Jill" bath arrangement. Unless otherwise noted, the mani level ceilings are 9' high. The bonus room has 5' high knee walls with ceiling sloping to 8' high. 

See All Plan Options
 

FEATURES & DETAILS

Kitchen features
Nook / Breakfast Area
Walk-in Pantry
Bedroom features
Primary Bdrm Main Floor
Sitting Area
Exterior features
Covered Front Porch
Deck
Front Porch
Foundation Options
Basement
Crawlspace
Slab
Additional features
Family Room
Laundry 1st Fl
Garage Location
Side
Garage Options
Attached
1,963 Ft
2
Total Heated
3
Bedrooms
2
Bathrooms
2
Garage
1
Stories
57' 8"
Width
57' 6"
Depth
22' 3"
Height
9' 0"
Main Floor Ceiling
2x4
Framing
Truss
Roof Framing
10/12
Primary Roof Pitch
Single
Dwelling Number
2nd Floor
Bonus Access

Unheated Living Space
309 Ft
2
Bonus Room
 

Plan Package Options

 Select Plan Package
Sale: $698
PDF Bid Set
$895

PDFs NOW!™

Home plans stamped "NOT FOR CONSTRUCTION" for cost estimating and bidding purposes only; a minimum 5 set plan package must be purchased within 90 days for a license to build plan set; a credit will be applied towards your house plan upgrade

Sale: $698
Sale: $1,088
PDF Single Build
$1,395

PDFs NOW!™

Digital plans emailed to you in PDF format that allows for printing copies and sharing electronically with contractors, subs, decorators, and more. This package includes a license to build the home one time.

Sale: $1,088
Sale: $1,127
5 Printed Sets
$1,445

Five Printed Sets of Residential Construction Drawings are typically 24” x 36” documents and come with a license to construct a single residence shipped to a physical address. Keep in mind PDF Plan Packages are our most popular choice which allows you to print as many copies as you need and to electronically send files to your builder, subcontractors, etc.

Sale: $1,127
Sale: $1,166
8 Printed Sets
$1,495

Eight Printed Sets of Construction Drawings, typically 24” x 36” documents, with a license to construct a single residence shipped to your physical address. PDF Plan Packages are our most popular choice which allows you to print as many copies as you need and to electronically send files to your builder, subcontractors, bank/mortgage reps, material stores, decorators and more.

Sale: $1,166
Sale: $1,478
CAD + PDF Single Build
$1,895

CAD files are a complete set of construction drawings delivered electronically. They can be used for any type of modification—including major design changes and engineering—and include a release granting permission to modify the plan. Most CAD plan orders are emailed the same or next business day.
 
This package also comes with a PDF set of plans and a copyright release for making modifications and printing unlimited copies.
 
CAD files are provided in .dwg format. For details on the specific CAD program used, please refer to the PLAN DETAILS section located above the floor plan on each plan’s page.

Sale: $1,478
 Need To Reverse Plan? (Optional)
$295
Readable Reverse

Reverse house plans with readable text and dimensions 

$295
  Select Foundation Option
  Add-Ons (Optional)
INCLUDED WITH YOUR PURCHASE

Free Ground shipping in the Continental U.S.

FREE

Design consultation with the architect or designer to discuss your plan

Home Building & Product Ideas Organizer

Sub Total
$0
Free Shipping
QUESTIONS OR NEED HELP ORDERING? LIVE CHAT OR CALL US AT 866-214-2242
Plan Packages

Each set of construction documents includes detailed, dimensioned floor plans, basic electric layouts, cross sections, roof details, cabinet layouts and elevations, as well as general IRC specifications. They contain virtually all of the information required to construct your home. The typical plan set does not include any plumbing, HVAC drawings, or engineering stamps due to the wide variety of specific needs, local codes, and climatic conditions. These details and specifications are easily obtained from your builder, contractors, and/or local engineers.

BEST PRICE GUARANTEE

find the same house plan (modifications included!) and package for less on another site, show us the URL and we'll give you the difference plus an additional 5% back.

100% SATISFACTION GUARANTEE

We offer a one-time, 30-day exchange policy for unused, non-electronic plan packages in the event you aren't satisfied with your first selection.

 
 

Plan 6241  Back to plan page

Loading...