Get discounts,
promos, see our
newest plans
and more!
+ 15% off any plan
See terms opt out anytime


No Thanks

Thanks for
signing up!


Use Code:

SIGNUP15

And save 15% off any plan!

Check your email for details.

CLOSE
Search Plans
Customer Reviews
     
15% Off House Plans Sitewide Ends Sunday

Code: SAVE15
Sale ends midnight 2/8/2026 PST

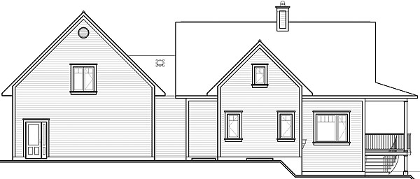
The Thatchery 3 Bedroom Country Style House, Plan 1189

 
 

Sq Ft
2,219 FT²

Beds
3

Baths
3.5

Stories
1.5

Garage
2

Depth
40'

Width
67'
From
$1,855.00
© copyright by designer
 View All 8 Images | Photographs may reflect modified home
Sq Ft
2,219 FT²
Beds
3
Baths
3.5
Stories
1.5
Garage
2
Depth
40'
Width
67'
 
Click to Zoom In on Floor Plan
© copyright by designer
 
 

About This Plan

Charm and personality greet you at every turn of this country style plan. A great option for a family, this 2,219 square foot home offers a bit of tranquil relaxation amidst the daily bustle of a fast-paced life. Housing 3 bedrooms and 3.5 bathrooms, this plan is as adaptable as it is welcoming. An attached 2-car garage and a large covered side porch are the main features that catch the eye upon walking up to this home. A covered front entryway protects from the elements and also opens in to the interior of this amazing home. A grand foyer greets the entrance, as well as a half bathroom for guests. From there you enter the kitchen and its eat-in island, great for family dinners or quick meals. A dining room is seen directly ahead and it perfect for more formal meals. The living room is attached to the dining room thanks to the open floor plan that spans this 2-story home. Both rooms offer access to the porch as well as to the sweeping grand staircase that leads to the second floor. A first-floor master suite can also be found in this plan, as well as a spacious walk-in closet and relaxing bathroom. There are two sets of staircases leading to the second floor in this home. The first and primary is found in the living room and dining room space. This staircase opens on to a lofted area that looks down upon the living room below. Here you will find a full bedroom with a large closet, as well as a full bathroom and a secondary family room space. The second staircase is the hidden gem of this home and is found by the garage entrance. This leads to a completely detached and private in-law suite, complete with a full bedroom and walk-in closet, attached full bathroom, and its own private living room space. This area is perfectly suited for guests or family members who may value their privacy and need some separate space when visiting.

 


 

See All Plan Options
 

FEATURES & DETAILS

Kitchen features
Kitchen Island
Bedroom features
Guest Suite
Exterior features
Front Porch
Foundation Options
Daylight Basement
Walkout Basement
Additional features
Fireplace
Garage Location
Side
Garage Options
Attached
Front-entry
2,786 Ft
2
Total Structure
2,219 Ft
2
Total Heated
1,232 Ft
2
1st Floor
987 Ft
2
2nd Floor
3
Bedrooms
3.5
Bathrooms
2
Garage
1.5
Stories
67' 0"
Width
40' 0"
Depth
35' 4"
Height
8' 0"
Main Floor Ceiling
8' 0"
Upper Floor Ceiling
2x6
Framing
Truss
Roof Framing
12
Primary Roof Pitch
8
Secondary Roof Pitch
12
Gable Roof Pitch
4
Porch Roof Pitch
Single
Dwelling Number
None
Bonus Access

Unheated Living Space
567 Ft
2
Garage
 

Plan Package Options

 Select Plan Package
 Need To Reverse Plan? (Optional)
  Select Foundation Option
  Add-Ons (Optional)
INCLUDED WITH YOUR PURCHASE

Free Ground shipping in the U.S.

FREE

Home Building & Product Ideas Organizer

Sub Total
$0
Free Shipping
Please allow 3-5 business days for delivery of this plan Please check our PDFs NOW collection for plans that can be downloaded and received immediately or live chat us to help you find a similar plan available now.
QUESTIONS OR NEED HELP ORDERING? LIVE CHAT OR CALL US AT 866-214-2242
Plan Packages

Each set of construction documents includes detailed, dimensioned floor plans, basic electric layouts, cross sections, roof details, cabinet layouts and elevations, as well as general IRC specifications. They contain virtually all of the information required to construct your home. The typical plan set does not include any plumbing, HVAC drawings, or engineering stamps due to the wide variety of specific needs, local codes, and climatic conditions. These details and specifications are easily obtained from your builder, contractors, and/or local engineers.

BEST PRICE GUARANTEE

Find the same house plan (modifications included!) and package for less on another site, show us the URL and we'll give you the difference plus an additional 10% back.

100% SATISFACTION GUARANTEE

We offer a one-time, 30-day exchange policy for unused, printed plan packages in the event you aren't satisfied with your first selection.

 
 

Plan 1189  Back to plan page

Loading...