Get discounts,
promos, see our
newest plans
and more!
+ 15% off any plan
See terms opt out anytime


No Thanks

Thanks for
signing up!


Use Code:

SIGNUP15

And save 15% off any plan!

Check your email for details.

CLOSE
Search Plans
Customer Reviews
     
22% Off House Plans Sitewide Ends Friday

Code: SAVE22
Sale ends midnight 12/5/2025 PST

Sq Ft
2,208 FT²

Beds
3

Baths
2

Stories
1

Garage
2

Depth
54'

Width
42'
From
$1,050.00
© copyright by designer
 View All 6 Images | Photographs may reflect modified home
Sq Ft
2,208 FT²
Beds
3
Baths
2
Stories
1
Garage
2
Depth
54'
Width
42'
 
Click to Zoom In on Floor Plan
© copyright by designer
 
 

About This Plan

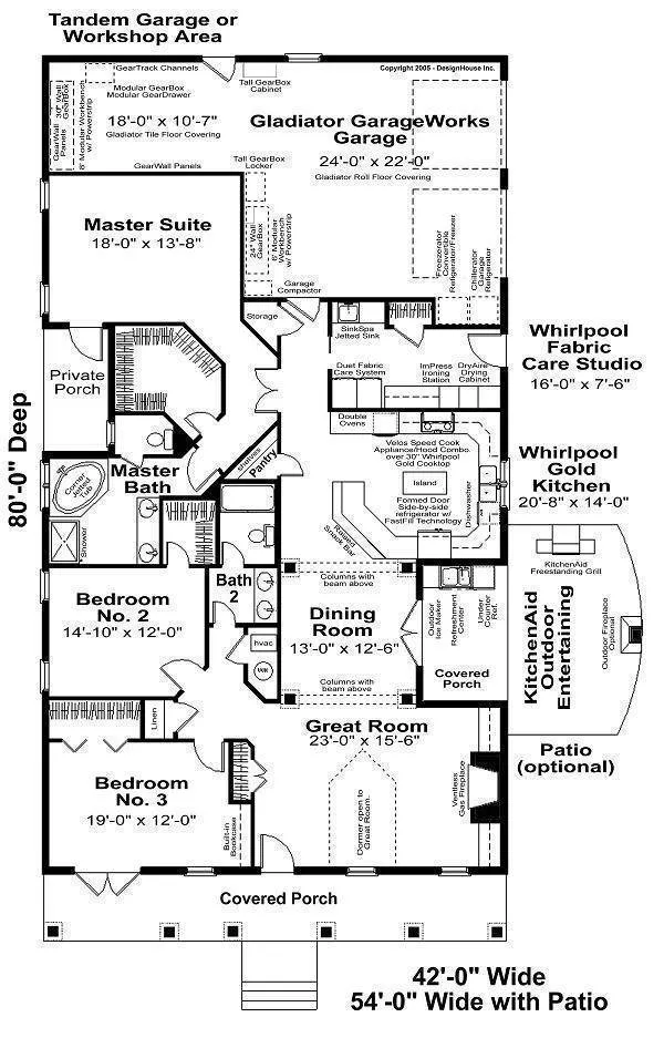
The Tavernier has the exterior of days gone by with the interior that is sure to be instep with todays busy lifestyles. A dormer sheds light into the spacious Great Room that is warmed by a gas fireplace. The Dining Room is highlighted with columns and a double french door. The Master Suite welcomes you with interesting angles, a private porch, large walk-in closet and
Spa Style Master Bath. Bedrooms 2 and 3 feature walk-in closets and share a full bath.
 

See All Plan Options
 

FEATURES & DETAILS

Kitchen features
Kitchen Island
Peninsula / Eating Bar
Walk-in Pantry
Bedroom features
Separate Tub and Shower
Walk-in Closet
Exterior features
Covered Front Porch
Front Porch
Foundation Options
Crawlspace
Slab
Lot Options
Suited for corner lot
Suited for narrow lot
Suited for view lot
Additional features
Dining Room
Fireplace
Great Room
Open Floor Plan
Workshop
Garage Location
Rear
Garage Options
Attached
Side-entry
Tandem
2,208 Ft
2
Total Heated
3
Bedrooms
2
Bathrooms
2
Garage
1
Stories
42' 0"
Width
54' 0"
Depth
28' 0"
Height
10' 0"
Main Floor Ceiling
2x6
Framing
Truss
Roof Framing
8/12
Primary Roof Pitch
Single
Dwelling Number
None
Bonus Access

Unheated Living Space
718 Ft
2
Garage
416 Ft
2
Porch
207 Ft
2
Patio
 

Plan Package Options

 Select Plan Package
$1,050
PDF Single Build

Digital plans emailed to you in PDF format that allows for printing copies and sharing electronically with contractors, subs, decorators, and more. This package includes a license to build the home one time.

$1,050
$1,180
5 Printed Sets

Five Printed Sets of Residential Construction Drawings are typically 24” x 36” documents and come with a license to construct a single residence shipped to a physical address. Keep in mind PDF Plan Packages are our most popular choice which allows you to print as many copies as you need and to electronically send files to your builder, subcontractors, etc.

$1,180
 Need To Reverse Plan? (Optional)
$150
Readable Reverse

Reverse house plans with readable text and dimensions 

$150
  Select Foundation Option
  Add-Ons (Optional)
INCLUDED WITH YOUR PURCHASE

Free Ground shipping in the Continental U.S.

FREE

Design consultation with the architect or designer to discuss your plan

Home Building & Product Ideas Organizer

Sub Total
$0
Free Shipping
QUESTIONS OR NEED HELP ORDERING? LIVE CHAT OR CALL US AT 866-214-2242
Plan Packages

Each set of construction documents includes detailed, dimensioned floor plans, basic electric layouts, cross sections, roof details, cabinet layouts and elevations, as well as general IRC specifications. They contain virtually all of the information required to construct your home. The typical plan set does not include any plumbing, HVAC drawings, or engineering stamps due to the wide variety of specific needs, local codes, and climatic conditions. These details and specifications are easily obtained from your builder, contractors, and/or local engineers.

BEST PRICE GUARANTEE

find the same house plan (modifications included!) and package for less on another site, show us the URL and we'll give you the difference plus an additional 5% back.

100% SATISFACTION GUARANTEE

We offer a one-time, 30-day exchange policy for unused, non-electronic plan packages in the event you aren't satisfied with your first selection.

 
 

Plan 6266  Back to plan page

Loading...