Get discounts,
promos, see our
newest plans
and more!
+ 15% off any plan
See terms opt out anytime


No Thanks

Thanks for
signing up!


Use Code:

SIGNUP15

And save 15% off any plan!

Check your email for details.

CLOSE
Search Plans
Customer Reviews
     
17% Off House Plans Sitewide Ends Sunday
17% Off House Plans Sitewide Ends Sunday
17% Off House Plans Sitewide Ends Sunday

Code: SAVE17
Sale ends midnight 12/14/2025 PST

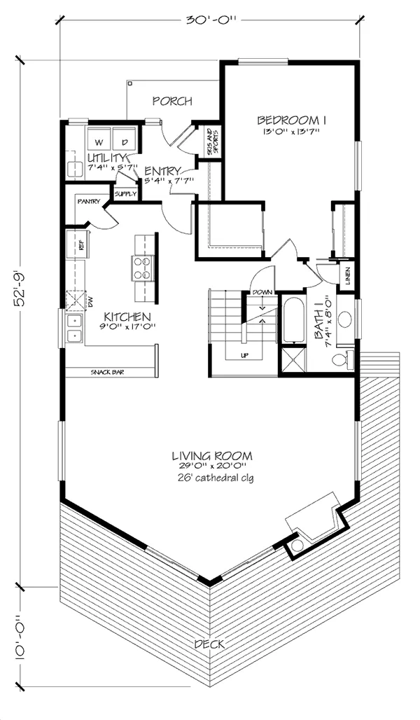
Sq Ft
2,645 FT²

Beds
4

Baths
2

Stories
1.5

Garage
1

Depth
53'

Width
30'
On Sale
$729.57
$879.00
© copyright by designer
 View All 4 Images | Photographs may reflect modified home
Sq Ft
2,645 FT²
Beds
4
Baths
2
Stories
1.5
Garage
1
Depth
53'
Width
30'
 
Click to Zoom In on Floor Plan
© copyright by designer
 
 

About This Plan

This prowed chalet -- an updated version of one of our most popular plans -- now has even more appeal. Its fabulous windows soar to the peak of the living room's cathedral ceiling, providing breathtaking views of the great outdoors. Sliding glass doors open to a large deck. The main-floor bedroom features a walk-in closet and a wardrobe closet, plus private access to a full bath. Upstairs, a skylighted loft overlooks the living room. The loft is large enough to accommodate overnight guests. The optional walk-out basement offers a good-sized recreation room with a second fireplace. A large storage room and a one-car garage/shop complete the versatile basement level. 

See All Plan Options
 

FEATURES & DETAILS

Foundation Options
Basement
Crawlspace
Lot Options
Suited for corner lot
Suited for narrow lot
Suited for sloping lot
Suited for view lot
Garage Location
Under
Garage Options
Attached
Front-entry
2,645 Ft
2
Total Heated
1,350 Ft
2
1st Floor
850 Ft
2
2nd Floor
445 Ft
2
Lower Floor
4
Bedrooms
2
Bathrooms
1
Garage
1.5
Stories
30' 0"
Width
53' 0"
Depth
27' 0"
Height
2x6
Framing
Combination
Roof Framing
Single
Dwelling Number

Unheated Living Space
 

Plan Package Options

 Select Plan Package
Sale: $484
PDF Bid Set
$583

PDFs NOW!™

Home plans stamped "NOT FOR CONSTRUCTION" for cost estimating and bidding purposes only; a minimum 5 set plan package must be purchased within 90 days for a license to build plan set; a credit will be applied towards your house plan upgrade

Sale: $484
Sale: $730
PDF Single Build
$879

PDFs NOW!™

Digital plans emailed to you in PDF format that allows for printing copies and sharing electronically with contractors, subs, decorators, and more. This package includes a license to build the home one time.

Sale: $730
  Select Foundation Option
  Add-Ons (Optional)
INCLUDED WITH YOUR PURCHASE

Free Ground shipping in the Continental U.S.

FREE

Design consultation with the architect or designer to discuss your plan

Home Building & Product Ideas Organizer

Sub Total
$0
Free Shipping
QUESTIONS OR NEED HELP ORDERING? LIVE CHAT OR CALL US AT 866-214-2242
Plan Packages

Each set of construction documents includes detailed, dimensioned floor plans, basic electric layouts, cross sections, roof details, cabinet layouts and elevations, as well as general IRC specifications. They contain virtually all of the information required to construct your home. The typical plan set does not include any plumbing, HVAC drawings, or engineering stamps due to the wide variety of specific needs, local codes, and climatic conditions. These details and specifications are easily obtained from your builder, contractors, and/or local engineers.

BEST PRICE GUARANTEE

find the same house plan (modifications included!) and package for less on another site, show us the URL and we'll give you the difference plus an additional 5% back.

100% SATISFACTION GUARANTEE

We offer a one-time, 30-day exchange policy for unused, non-electronic plan packages in the event you aren't satisfied with your first selection.

 
 

Plan 1407  Back to plan page

Loading...