Get discounts,
promos, see our
newest plans
and more!
+ 15% off any plan
See terms opt out anytime


No Thanks

Thanks for
signing up!


Use Code:

SIGNUP15

And save 15% off any plan!

Check your email for details.

CLOSE
Search Plans
Customer Reviews
     
20% off ALL House Plans Sitewide
20% off ALL House Plans Sitewide
20% off ALL House Plans Sitewide

Code: HONOR20
Sale ends midnight 5/25/2026 PST

Sq Ft
1,595 FT²

Beds
3

Baths
2.5

Stories
2

Garage
2

Depth
28'

Width
48'
On Sale
$1,036.00
$1,295.00
© copyright by designer
 View All 4 Images | Photographs may reflect modified home
Sq Ft
1,595 FT²
Beds
3
Baths
2.5
Stories
2
Garage
2
Depth
28'
Width
48'
 
Click to Zoom In on Floor Plan
© copyright by designer
 
 

About This Plan

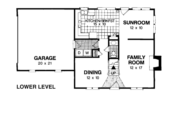
This attractive traditional plan features 1,595 square feet of living space. This distinctive layout welcomes friends and family into a comfortable 12'x17' family room accented by a brick fireplace. An unusual feature in a home this size is a bright and airy 12'x10' sunroom. Decorative columns provide a visual break between the large open 15'x10' kitchen and breakfast area and the sunroom. The 12'x10' dining room is conveniently placed for more formal entertaining. Completing the lower level are a powder room and roomy laundry room.

The upper level features an enormous 12'x19' master suite with a tray ceiling. The master bath is highlighted by a corner tub and offers a separate shower, his and hers vanities, toilet compartment, and a large walk-in closet. Bedrooms 2 and 3, measuring 12'x10' and 11'x10' respectively, share a hall bath. A spacious 20'x13' bonus room can serve as a fourth bedroom.
 

See All Plan Options
 

FEATURES & DETAILS

Exterior features
No Porch
Foundation Options
Crawlspace
Lot Options
Suited for narrow lot
Garage Location
Side
Garage Options
Attached
1,595 Ft
2
Total Heated
784 Ft
2
1st Floor
811 Ft
2
2nd Floor
3
Bedrooms
2.5
Bathrooms
2
Garage
2
Stories
48' 0"
Width
28' 0"
Depth
28' 4"
Height
8' 0"
Main Floor Ceiling
8' 0"
Upper Floor Ceiling
2x4
Framing
Truss
Roof Framing
8/12
Primary Roof Pitch
Single
Dwelling Number

Unheated Living Space
295 Ft
2
Bonus Room
 

Plan Package Options

 Select Plan Package
  Select Foundation Option
  Add-Ons (Optional)
INCLUDED WITH YOUR PURCHASE

Free Ground shipping in the U.S.

FREE

Home Building & Product Ideas Organizer

Sub Total
$0
Free Shipping
QUESTIONS OR NEED HELP ORDERING? LIVE CHAT OR CALL US AT 866-214-2242
Plan Packages

Each set of construction documents typically includes detailed, dimensioned floor plans, basic electric layouts, cross sections, roof details, cabinet layouts, and elevations, as well as general IRC specifications. Please refer to the ARCHITECT or DESIGNER’S PLAN DETAILS link above the floor plan on any plan page to determine the specific details for each plan. Our house plans contain virtually all of the information required to construct your home. The typical plan set does not include plumbing, HVAC drawings, or engineering stamps due to the wide variety of specific needs, local codes, and climatic conditions. These details and specifications are easily obtained from your builder, contractors, and/or local engineers.

BEST PRICE GUARANTEE

Find the same house plan (modifications included!) and package for less on another site, show us the URL and we'll give you the difference plus an additional 10% back.

100% SATISFACTION GUARANTEE

We offer a one-time, 30-day exchange policy for unused, printed plan packages in the event you aren't satisfied with your first selection.

 
 

Plan 7590  Back to plan page

Loading...