Get discounts,
promos, see our
newest plans
and more!
+ 15% off any plan
See terms opt out anytime


No Thanks

Thanks for
signing up!


Use Code:

SIGNUP15

And save 15% off any plan!

Check your email for details.

CLOSE
Search Plans
Customer Reviews
     
22% Off House Plans Sitewide Ends Sunday

Code: SAVE22
Sale ends midnight 12/7/2025 PST

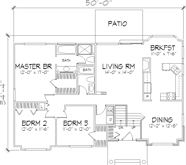
Sq Ft
1,549 FT²

Beds
3

Baths
2

Stories
1

Garage
2

Depth
35'

Width
50'
From
$851.00
© copyright by designer
 View All 5 Images | Photographs may reflect modified home
Sq Ft
1,549 FT²
Beds
3
Baths
2
Stories
1
Garage
2
Depth
35'
Width
50'
 
Click to Zoom In on Floor Plan
© copyright by designer
 
 

About This Plan

This lovely split-entry combines contemporary and traditional styling in an affordable floor arrangement. The main/upper level houses 3 bedrooms, two baths, convenient laundry facilities, and the main living areas of the home. A formal dining room is divided from the foyer by an open handrail. The adjacent living room boasts a handsome fireplace and sliders to a rear patio. A large, versatile bonus space and garage are found on the lower level. 

See All Plan Options
 

FEATURES & DETAILS

Foundation Options
Basement
Daylight Basement
Walkout Basement
Lot Options
Suited for narrow lot
Suited for sloping lot
Suited for view lot
Garage Location
Under
Garage Options
Attached
1,549 Ft
2
Total Heated
3
Bedrooms
2
Bathrooms
2
Garage
1
Stories
50' 0"
Width
35' 0"
Depth
25' 0"
Height
2x4
Framing
Truss
Roof Framing
Single
Dwelling Number
1st Floor
Bonus Access

Unheated Living Space
 

Plan Package Options

 Select Plan Package
$544
PDF Bid Set
PDFs NOW!™

Home plans stamped "NOT FOR CONSTRUCTION" for cost estimating and bidding purposes only; a minimum 5 set plan package must be purchased within 90 days for a license to build plan set; a credit will be applied towards your house plan upgrade

$544
$851
PDF Single Build
PDFs NOW!™

Digital plans emailed to you in PDF format that allows for printing copies and sharing electronically with contractors, subs, decorators, and more. This package includes a license to build the home one time.

$851
  Select Foundation Option
  Add-Ons (Optional)
INCLUDED WITH YOUR PURCHASE

Free Ground shipping in the Continental U.S.

FREE

Design consultation with the architect or designer to discuss your plan

Home Building & Product Ideas Organizer

Sub Total
$0
Free Shipping
QUESTIONS OR NEED HELP ORDERING? LIVE CHAT OR CALL US AT 866-214-2242
Plan Packages

Each set of construction documents includes detailed, dimensioned floor plans, basic electric layouts, cross sections, roof details, cabinet layouts and elevations, as well as general IRC specifications. They contain virtually all of the information required to construct your home. The typical plan set does not include any plumbing, HVAC drawings, or engineering stamps due to the wide variety of specific needs, local codes, and climatic conditions. These details and specifications are easily obtained from your builder, contractors, and/or local engineers.

BEST PRICE GUARANTEE

find the same house plan (modifications included!) and package for less on another site, show us the URL and we'll give you the difference plus an additional 5% back.

100% SATISFACTION GUARANTEE

We offer a one-time, 30-day exchange policy for unused, non-electronic plan packages in the event you aren't satisfied with your first selection.

 
 

Plan 1500  Back to plan page

Loading...