Get discounts,
promos, see our
newest plans
and more!
+ 15% off any plan
See terms opt out anytime


No Thanks

Thanks for
signing up!


Use Code:

SIGNUP15

And save 15% off any plan!

Check your email for details.

CLOSE
Search Plans
Customer Reviews
     
15% off ALL House Plans Sitewide
15% off ALL House Plans Sitewide
15% off ALL House Plans Sitewide

Code: HONOR
Sale ends midnight 5/31/2026 PST

Sq Ft
1,500 FT²

Beds
2

Baths
2.5

Stories
1

Garage
3

Depth
46' 4"

Width
67' 6"
On Sale
$1,100.75
$1,295.00
© copyright by designer
 View All 4 Images | Photographs may reflect modified home
Sq Ft
1,500 FT²
Beds
2
Baths
2.5
Stories
1
Garage
3
Depth
46' 4"
Width
67' 6"
 
Click to Zoom In on Floor Plan
© copyright by designer
 
 

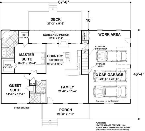
About This Plan

Welcome home to this unusually versatile "ranch" offering both beauty and an array of superb features. Boasting a mere 1,500 square feet, this carefully designed home includes a country kitchen, relaxing screened porch, spacious family room and a guest suite as well as a luxurious master suite. An enormous future 1,338 sq. ft. bonus area offers unlimited possibilities.

A three-car garage, with work area and laundry closet, leads into the country kitchen. Here a center island with a sink and dishwasher makes meal prep and clean-up a breeze. The spacious 218 x 154 family room is ideal for entertaining. The luxurious master suite features separate his and hers walk-in closets and a spa-like bathroom with a corner garden tub and separate shower. Guests are invited to make themselves at home in the spacious guest suite with a walk-in closet and private bathroom.

The 1,338 sq. ft. upper level future bonus room could serve any number of purposes from play room, study, library, craft room, storagethe list goes on and on!
 

See All Plan Options
 

FEATURES & DETAILS

Exterior features
Front Porch
Foundation Options
Basement
Crawlspace
Slab
Garage Location
Side
Garage Options
Attached
1,500 Ft
2
Total Heated
1,500 Ft
2
1st Floor
2
Bedrooms
2.5
Bathrooms
3
Garage
1
Stories
67' 6"
Width
46' 4"
Depth
22' 8"
Height
9' 0"
Main Floor Ceiling
8' 0"
Upper Floor Ceiling
2x4
Framing
Stick
Roof Framing
6/12
Primary Roof Pitch
Single
Dwelling Number
1st Floor
Bonus Access

Unheated Living Space
1,338 Ft
2
Bonus Room
 

Plan Package Options

 Select Plan Package
 Need To Reverse Plan? (Optional)
  Select Foundation Option
  Add-Ons (Optional)
INCLUDED WITH YOUR PURCHASE

Free Ground shipping in the U.S.

FREE

Home Building & Product Ideas Organizer

Sub Total
$0
Free Shipping
QUESTIONS OR NEED HELP ORDERING? LIVE CHAT OR CALL US AT 866-214-2242
Plan Packages

Each set of construction documents typically includes detailed, dimensioned floor plans, basic electric layouts, cross sections, roof details, cabinet layouts, and elevations, as well as general IRC specifications. Please refer to the ARCHITECT or DESIGNER’S PLAN DETAILS link above the floor plan on any plan page to determine the specific details for each plan. Our house plans contain virtually all of the information required to construct your home. The typical plan set does not include plumbing, HVAC drawings, or engineering stamps due to the wide variety of specific needs, local codes, and climatic conditions. These details and specifications are easily obtained from your builder, contractors, and/or local engineers.

BEST PRICE GUARANTEE

Find the same house plan (modifications included!) and package for less on another site, show us the URL and we'll give you the difference plus an additional 10% back.

100% SATISFACTION GUARANTEE

We offer a one-time, 30-day exchange policy for unused, printed plan packages in the event you aren't satisfied with your first selection.

 
 

Plan 1167  Back to plan page

Loading...