Get discounts,
promos, see our
newest plans
and more!
+ 15% off any plan
See terms opt out anytime


No Thanks

Thanks for
signing up!


Use Code:

SIGNUP15

And save 15% off any plan!

Check your email for details.

CLOSE
Search Plans
Customer Reviews
     
15% off ALL House Plans Sitewide
15% off ALL House Plans Sitewide
15% off ALL House Plans Sitewide

Code: HONOR
Sale ends midnight 5/31/2026 PST

Sq Ft
2,321 FT²

Beds
3

Baths
2.5

Stories
1.5

Garage
2

Depth
71'

Width
67'
On Sale
$747.15
$879.00
© copyright by designer
 View All 4 Images | Photographs may reflect modified home
Sq Ft
2,321 FT²
Beds
3
Baths
2.5
Stories
1.5
Garage
2
Depth
71'
Width
67'
 
Click to Zoom In on Floor Plan
© copyright by designer
 
 

About This Plan

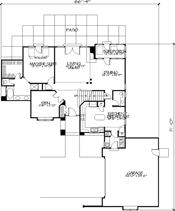
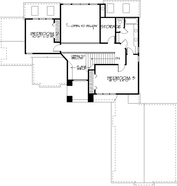
This sophisticated two-story demands a second look. The towering covered front entry and elegant brick exterior set the tone for the spectacular spaces found within. Back from the two-story-high foyer, the living room features a patio view and a 17-ft.-high vaulted ceiling. Tall columns visually separate the living room from the dining room, and a two-sided fireplace is shared between the rooms. Just off the dining room, a skylighted sun porch is surrounded in glass and accesses the patio. A spacious island kitchen and breakfast area combine at the front of the home. A deluxe laundry room connects the kitchen to the garage. The skylighted master suite is quietly positioned to the rear of the home, with private access to the patio. The luxurious master bath includes a dual-sink vanity, a spa tub and a separate shower. A toilet compartment and a large walk-in closet round out the suite. Two more bedrooms and another full bath share the upper floor. 

See All Plan Options
 

FEATURES & DETAILS

Foundation Options
Basement
Lot Options
Suited for corner lot
Suited for sloping lot
Suited for view lot
Garage Location
Side
Garage Options
Attached
2,321 Ft
2
Total Heated
1,554 Ft
2
1st Floor
767 Ft
2
2nd Floor
3
Bedrooms
2.5
Bathrooms
2
Garage
1.5
Stories
67' 0"
Width
71' 0"
Depth
30' 0"
Height
2x4
Framing
Single
Dwelling Number

Unheated Living Space
 

Plan Package Options

 Select Plan Package
  Select Foundation Option
  Add-Ons (Optional)
INCLUDED WITH YOUR PURCHASE

Free Ground shipping in the U.S.

FREE

Home Building & Product Ideas Organizer

Sub Total
$0
Free Shipping
QUESTIONS OR NEED HELP ORDERING? LIVE CHAT OR CALL US AT 866-214-2242
Plan Packages

Each set of construction documents typically includes detailed, dimensioned floor plans, basic electric layouts, cross sections, roof details, cabinet layouts, and elevations, as well as general IRC specifications. Please refer to the ARCHITECT or DESIGNER’S PLAN DETAILS link above the floor plan on any plan page to determine the specific details for each plan. Our house plans contain virtually all of the information required to construct your home. The typical plan set does not include plumbing, HVAC drawings, or engineering stamps due to the wide variety of specific needs, local codes, and climatic conditions. These details and specifications are easily obtained from your builder, contractors, and/or local engineers.

BEST PRICE GUARANTEE

Find the same house plan (modifications included!) and package for less on another site, show us the URL and we'll give you the difference plus an additional 10% back.

100% SATISFACTION GUARANTEE

We offer a one-time, 30-day exchange policy for unused, printed plan packages in the event you aren't satisfied with your first selection.

 
 

Plan 1574  Back to plan page

Loading...