Get discounts,
promos, see our
newest plans
and more!
+ 15% off any plan
See terms opt out anytime


No Thanks

Thanks for
signing up!


Use Code:

SIGNUP15

And save 15% off any plan!

Check your email for details.

CLOSE
Search Plans
Customer Reviews
     
15% Off House Plans Sitewide Ends Sunday

Code: SAVE15
Sale ends midnight 1/11/2026 PST

Sq Ft
3,967 FT²

Beds
6

Baths
7.5

Stories
3

Garage
2

Depth
112' 6"

Width
24' 8"
From
$1,795.00
© copyright by architect
 View All 7 Images | Photographs may reflect modified home
Sq Ft
3,967 FT²
Beds
6
Baths
7.5
Stories
3
Garage
2
Depth
112' 6"
Width
24' 8"
 
Click to Zoom In on Floor Plan
© copyright by architect
 
 

About This Plan

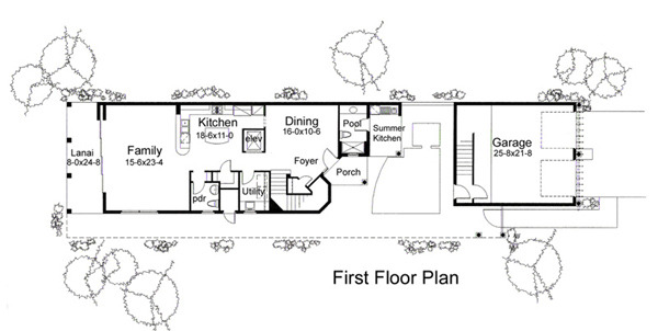
Luxury, great design and space sum up this floor plan. This home has three levels of custom inspired details. The gourmet Kitchen opens to the large Family room with its sliding Lanai door. A guest suite is located over the detached garage, so your company will feel as though they've checked into a resort. The third floor features a Master Suite and extra bedroom which easily could function as a home office. This home is grand and boasts many delightful details. 

See All Plan Options
 

FEATURES & DETAILS

Exterior features
Rear Porch
Foundation Options
Crawlspace
Slab
Walkout Basement
Lot Options
Suited for narrow lot
Garage Location
Front
Garage Options
Detached
Front-entry
With Living Space
3,967 Ft
2
Total Heated
1,345 Ft
2
1st Floor
1,659 Ft
2
2nd Floor
6
Bedrooms
7.5
Bathrooms
2
Garage
3
Stories
24' 8"
Width
112' 6"
Depth
38' 8"
Height
10' 0"
Main Floor Ceiling
9' 0"
Upper Floor Ceiling
8" Block/Wood
Framing
Stick
Roof Framing
7/12
Primary Roof Pitch
12:12
Secondary Roof Pitch
Single
Dwelling Number

Unheated Living Space
518 Ft
2
Garage
761 Ft
2
Porch
84 Ft
2
Patio
963 Ft
2
Bonus Room
Exterior Styles
 

Plan Package Options

 Select Plan Package
$1,995
5 Printed Sets

Five Printed Sets of Residential Construction Drawings are typically 24” x 36” documents and come with a license to construct a single residence shipped to a physical address. Keep in mind PDF Plan Packages are our most popular choice which allows you to print as many copies as you need and to electronically send files to your builder, subcontractors, etc.

$1,995
$2,095
5 Printed Sets + PDF

Includes 5 physical printed blueprints shipped and delivered within 3-5 business days and a copyright release license to construct one home and to make copies. A complimentary PDF plan set is also emailed within 1 business day for easy sharing and local printing. 

$2,095
$1,795
PDF Single Build

Digital plans emailed to you in PDF format that allows for printing copies and sharing electronically with contractors, subs, decorators, and more. This package includes a license to build the home one time.

$1,795
$2,795
CAD + PDF Single Build

This plan package is created in AutoCAD and delivered in .DWG format. CAD files are intended for use by design professionals, structural engineers, and builders to update plans for local building codes or to make revisions based on specific needs, lot requirements, and budget considerations. A complimentary PDF copy is included with this package for reference. CAD packages are delivered within 1 to 2 business days.
 
This package also comes with a copyright release for making revisions and printing unlimited copies.

For details on the specific CAD program used, please refer to the PLAN DETAILS section located above the floor plan on each plan page.

$2,795
$3,490
CAD + PDF Unlimited Build

This plan package is created in AutoCAD and delivered in .DWG format. CAD files are intended for use by design professionals, structural engineers, and builders to update plans for local building codes or to make revisions based on specific needs, lot requirements, and budget considerations. A complimentary PDF copy is included with this package for reference. CAD packages are delivered within 1 to 2 business days.
 
This package also comes with a multi-use building license, granting permission to construct the home an unlimited number of times, along with a copyright release for making revisions and printing unlimited copies.
 
For details on the specific CAD program used, please refer to the PLAN DETAILS section located above the floor plan on each plan page.

$3,490
 Need To Reverse Plan? (Optional)
$245
Readable Reverse

Reverse house plans with readable text and dimensions 

$245
  Select Foundation Option
  Add-Ons (Optional)
INCLUDED WITH YOUR PURCHASE

Free Ground shipping in the Continental U.S.

FREE

Home Building & Product Ideas Organizer

Sub Total
$0
Free Shipping
QUESTIONS OR NEED HELP ORDERING? LIVE CHAT OR CALL US AT 866-214-2242
Plan Packages

Each set of construction documents includes detailed, dimensioned floor plans, basic electric layouts, cross sections, roof details, cabinet layouts and elevations, as well as general IRC specifications. They contain virtually all of the information required to construct your home. The typical plan set does not include any plumbing, HVAC drawings, or engineering stamps due to the wide variety of specific needs, local codes, and climatic conditions. These details and specifications are easily obtained from your builder, contractors, and/or local engineers.

BEST PRICE GUARANTEE

Find the same house plan (modifications included!) and package for less on another site, show us the URL and we'll give you the difference plus an additional 5% back.

100% SATISFACTION GUARANTEE

We offer a one-time, 30-day exchange policy for unused, printed plan packages in the event you aren't satisfied with your first selection. Exchanges are subject to a 20% restocking fee.

 
 

Plan 6031  Back to plan page

Loading...