Get discounts,
promos, see our
newest plans
and more!
+ 15% off any plan
See terms opt out anytime


No Thanks

Thanks for
signing up!


Use Code:

SIGNUP15

And save 15% off any plan!

Check your email for details.

CLOSE
Search Plans
     

Sq Ft
1,424 FT²

Beds
3

Baths
2.5

Stories
1

Garage
2

Depth
44'

Width
44'
From
$769.00
© copyright by designer
 View All 5 Images | Photographs may reflect modified home
Sq Ft
1,424 FT²
Beds
3
Baths
2.5
Stories
1
Garage
2
Depth
44'
Width
44'
 
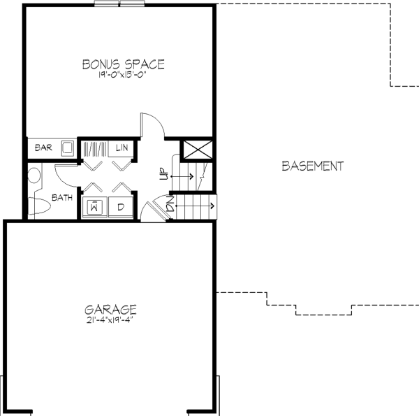
Click to Zoom In on Floor Plan
© copyright by designer
 
 

About This Plan

For a sloping lot, this four-level split design offers maximum value and versatility. A covered front porch with arbor detail adds streetscape interest. The interior feels spacious with vaulted ceilings, flowing spaces and long views through corner windows. The master suite boasts a vaulted ceiling, a plant shelf, a walk-in closet and a private skylighted bath. 

See All Plan Options
 

FEATURES & DETAILS

Foundation Options
Basement
Daylight Basement
Lot Options
Suited for narrow lot
Suited for sloping lot
Suited for view lot
Garage Location
Front
Garage Options
Attached
Drive-under
Front-entry
1,424 Ft
2
Total Heated
3
Bedrooms
2.5
Bathrooms
2
Garage
1
Stories
44' 0"
Width
44' 0"
Depth
22' 0"
Height
2x4
Framing
Combination
Roof Framing
Single
Dwelling Number
1st Floor
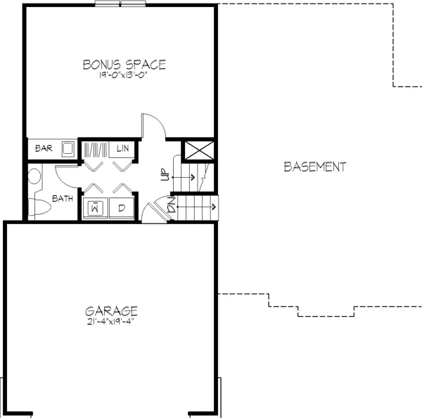
Bonus Access

Unheated Living Space
423 Ft
2
Bonus Room
 

Plan Package Options

 Select Plan Package
$504
PDF Bid Set
PDFs NOW!™

Home plans stamped "NOT FOR CONSTRUCTION" for cost estimating and bidding purposes only; a minimum 5 set plan package must be purchased within 90 days for a license to build plan set; a credit will be applied towards your house plan upgrade

$504
$769
PDF Single Build
PDFs NOW!™

Digital plans emailed to you in PDF format that allows for printing copies and sharing electronically with contractors, subs, decorators, and more. This package includes a license to build the home one time.

$769
$1,540
CAD + PDF Single Build

CAD files are a complete set of construction drawings delivered electronically. They can be used for any type of modification—including major design changes and engineering—and include a release granting permission to modify the plan. Most CAD plan orders are emailed the same or next business day.
 
This package also comes with a PDF set of plans and a copyright release for making modifications and printing unlimited copies.
 
CAD files are provided in .dwg format. For details on the specific CAD program used, please refer to the PLAN DETAILS section located above the floor plan on each plan’s page.

$1,540
  Select Foundation Option
  Add-Ons (Optional)
INCLUDED WITH YOUR PURCHASE

Free Ground shipping in the Continental U.S.

FREE

Design consultation with the architect or designer to discuss your plan

Home Building & Product Ideas Organizer

Sub Total
$0
Free Shipping
QUESTIONS OR NEED HELP ORDERING? LIVE CHAT OR CALL US AT 866-214-2242
Plan Packages

Each set of construction documents includes detailed, dimensioned floor plans, basic electric layouts, cross sections, roof details, cabinet layouts and elevations, as well as general IRC specifications. They contain virtually all of the information required to construct your home. The typical plan set does not include any plumbing, HVAC drawings, or engineering stamps due to the wide variety of specific needs, local codes, and climatic conditions. These details and specifications are easily obtained from your builder, contractors, and/or local engineers.

BEST PRICE GUARANTEE

find the same house plan (modifications included!) and package for less on another site, show us the URL and we'll give you the difference plus an additional 5% back.

100% SATISFACTION GUARANTEE

We offer a one-time, 30-day exchange policy for unused, non-electronic plan packages in the event you aren't satisfied with your first selection.

 
 

Plan 1557  Back to plan page

Loading...