Get discounts,
promos, see our
newest plans
and more!
+ 15% off any plan
See terms opt out anytime


No Thanks

Thanks for
signing up!


Use Code:

SIGNUP15

And save 15% off any plan!

Check your email for details.

CLOSE
Search Plans
Customer Reviews
     
20% off ALL House Plans Sitewide
20% off ALL House Plans Sitewide
20% off ALL House Plans Sitewide

Code: LOVE20
Sale ends midnight 2/15/2026 PST

Sq Ft
1,940 FT²

Beds
3

Baths
2

Stories
1

Garage
2

Depth
59'

Width
68'
On Sale
$1,040.00
$1,300.00
© copyright by designer
 View All 4 Images | Photographs may reflect modified home
Sq Ft
1,940 FT²
Beds
3
Baths
2
Stories
1
Garage
2
Depth
59'
Width
68'
 
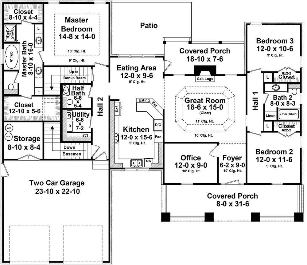
Click to Zoom In on Floor Plan
© copyright by designer
 
 

About This Plan

This beautiful Craftsman house design features all the things that make a house a home. Three oversized bedrooms are complemented by large closets, and a home office space is also provided. A breakfast eating area, and a raised bar provide spaces for those family meals, with close access to the fully equipped kitchen. The great room includes a gas fireplace, a tray ceiling, and beautiful views to the covered rear porch beyond. The master bedroom also features a tray ceiling. The deluxe master bath leaves nothing to be desired. The garage provides plenty of room for oversized trucks and SUV's and also includes a large storage area. The bonus room grants space for future expansion or for additional storage. This is the perfect home for you and your family! 

See All Plan Options
 

FEATURES & DETAILS

Kitchen features
Country Kitchen
Nook / Breakfast Area
Peninsula / Eating Bar
Bedroom features
Double Vanity Sink
Primary Bdrm Main Floor
Separate Tub and Shower
Split Bedrooms
Walk-in Closet
Exterior features
Covered Front Porch
Covered Rear Porch
Front Porch
Rear Porch
Screened Porch/Sunroom
Foundation Options
Basement
Lot Options
Suited for corner lot
Suited for sloping lot
Suited for view lot
Additional features
Bonus Room
Exercise Room
Fireplace
Foyer
Great Room
Home Office
Laundry 1st Fl
Open Floor Plan
Storage Space
Unfinished Space
Workshop
Garage Location
Front
Garage Options
Attached
Front-entry
Oversized
1,940 Ft
2
Total Heated
3
Bedrooms
2
Bathrooms
2
Garage
1
Stories
68' 0"
Width
59' 0"
Depth
23' 9"
Height
9' 0"' 0"
Main Floor Ceiling
Other
Framing
Stick
Roof Framing
9 in 12
Primary Roof Pitch
13 in 12
Secondary Roof Pitch
10 in 12
Teritary Roof Pitch
Single
Dwelling Number
2nd Floor
Bonus Access

Unheated Living Space
400 Ft
2
Bonus Room
 

Plan Package Options

 Select Plan Package
 Need To Reverse Plan? (Optional)
  Select Foundation Option
  Add-Ons (Optional)
INCLUDED WITH YOUR PURCHASE

Free Ground shipping in the U.S.

FREE

Home Building & Product Ideas Organizer

Sub Total
$0
Free Shipping
QUESTIONS OR NEED HELP ORDERING? LIVE CHAT OR CALL US AT 866-214-2242
Plan Packages

Each set of construction documents includes detailed, dimensioned floor plans, basic electric layouts, cross sections, roof details, cabinet layouts and elevations, as well as general IRC specifications. They contain virtually all of the information required to construct your home. The typical plan set does not include any plumbing, HVAC drawings, or engineering stamps due to the wide variety of specific needs, local codes, and climatic conditions. These details and specifications are easily obtained from your builder, contractors, and/or local engineers.

BEST PRICE GUARANTEE

Find the same house plan (modifications included!) and package for less on another site, show us the URL and we'll give you the difference plus an additional 10% back.

100% SATISFACTION GUARANTEE

We offer a one-time, 30-day exchange policy for unused, printed plan packages in the event you aren't satisfied with your first selection.

 
 

Plan 4886  Back to plan page

Loading...