Get discounts,
promos, see our
newest plans
and more!
+ 15% off any plan
See terms opt out anytime


No Thanks

Thanks for
signing up!


Use Code:

SIGNUP15

And save 15% off any plan!

Check your email for details.

CLOSE
Search Plans
Customer Reviews
     
15% off ALL House Plans Sitewide
15% off ALL House Plans Sitewide
15% off ALL House Plans Sitewide

Code: HONOR
Sale ends midnight 5/29/2026 PST

Sq Ft
1,832 FT²

Beds
3

Baths
2

Stories
1.5

Garage
0

Depth
40'

Width
38'
On Sale
$1,479.00
$1,740.00
© copyright by designer
 View All 9 Images | Photographs may reflect modified home
Sq Ft
1,832 FT²
Beds
3
Baths
2
Stories
1.5
Garage
0
Depth
40'
Width
38'
 
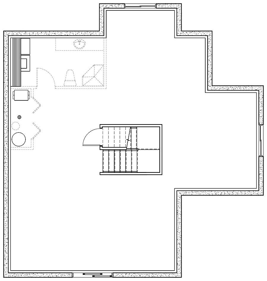
Click to Zoom In on Floor Plan
© copyright by designer
 
 

About This Plan

The designer has thought of everything to make this stunning cottage an exceptional place from which
to enjoy breathtaking views on a waterfront or hillside property.

The wrap around porch with access to the main foyer in front leads into a 12 x 16 screened in
porch that has access to the superb deck, spanning the entire rear of the home, and a separate door
to the kitchen dining area inside to enhance the ease with which outdoor meals can be enjoyed.

A two sided fireplace adds coziness to the central living room and offers a unique cachet to the
main floor master bedroom, with walk-in closet and its own access to the rear deck. The well
appointed bathroom includes a corner bath, corner shower and a double vanity along with a linen
closet. The walk-in pantry in the kitchen enhances the uninterrupted flow of this open floor plan.
9 ceilings throughout the main level and the walk-in closet/mud-room off of the entrance foyer are
practical features that are sure to enhance the livability of this model.

Two large bedrooms share a full bathroom upstairs and are complete with ample storage space that
includes a walk-in closet in one, his/hers closets and a separate sitting area in the other.
 

See All Plan Options
 

FEATURES & DETAILS

Kitchen features
Kitchen Island
Walk-in Pantry
Bedroom features
Double Vanity Sink
Primary Bdrm Main Floor
Separate Tub and Shower
Sitting Area
Walk-in Closet
Exterior features
Covered Front Porch
Deck
Front Porch
Rear Porch
Screened Porch/Sunroom
Wraparound Porch
Foundation Options
Crawlspace
Slab
Walkout Basement
Lot Options
Suited for sloping lot
Suited for view lot
Additional features
Family Room
Fireplace
Foyer
Great Room
Mud Room
Open Floor Plan
Garage Options
None
1,832 Ft
2
Total Heated
1,212 Ft
2
1st Floor
620 Ft
2
2nd Floor
1,212 Ft
2
Lower Floor
3
Bedrooms
2
Bathrooms
0
Garage
1.5
Stories
38' 0"
Width
40' 0"
Depth
25' 8"
Height
9' 0"
Main Floor Ceiling
8' 0"
Upper Floor Ceiling
2x6
Framing
Truss
Roof Framing
12/12
Primary Roof Pitch
12/12
Secondary Roof Pitch
Single
Dwelling Number
None
Bonus Access

Unheated Living Space
 

Plan Package Options

 Select Plan Package
 Need To Reverse Plan? (Optional)
  Select Foundation Option
  Add-Ons (Optional)
INCLUDED WITH YOUR PURCHASE

Free Ground shipping in the U.S.

FREE

Home Building & Product Ideas Organizer

Sub Total
$0
Free Shipping
Please allow 3-5 business days for delivery of this plan Please check our PDFs NOW collection for plans that can be downloaded and received immediately or live chat us to help you find a similar plan available now.
QUESTIONS OR NEED HELP ORDERING? LIVE CHAT OR CALL US AT 866-214-2242
Plan Packages

Each set of construction documents typically includes detailed, dimensioned floor plans, basic electric layouts, cross sections, roof details, cabinet layouts, and elevations, as well as general IRC specifications. Please refer to the ARCHITECT or DESIGNER’S PLAN DETAILS link above the floor plan on any plan page to determine the specific details for each plan. Our house plans contain virtually all of the information required to construct your home. The typical plan set does not include plumbing, HVAC drawings, or engineering stamps due to the wide variety of specific needs, local codes, and climatic conditions. These details and specifications are easily obtained from your builder, contractors, and/or local engineers.

BEST PRICE GUARANTEE

Find the same house plan (modifications included!) and package for less on another site, show us the URL and we'll give you the difference plus an additional 10% back.

100% SATISFACTION GUARANTEE

We offer a one-time, 30-day exchange policy for unused, printed plan packages in the event you aren't satisfied with your first selection.

Customer Reviews of House Plan 1150
9/3/2011
Mitch of IL
Customer Review:
Jo-Ann it was a pleasure working with you. You gave me information that I didn't even ask for. You had me do my research before you sold me a plan. I really appreciate all of the information and time you spent with me. Thank you!

SEE All Reviews
 
 

Plan 1150  Back to plan page

Loading...