Get discounts,
promos, see our
newest plans
and more!
+ 15% off any plan
See terms opt out anytime


No Thanks

Thanks for
signing up!


Use Code:

SIGNUP15

And save 15% off any plan!

Check your email for details.

CLOSE
Search Plans
Customer Reviews
     
20% off ALL House Plans Sitewide
20% off ALL House Plans Sitewide
20% off ALL House Plans Sitewide

Code: LOVE20
Sale ends midnight 2/15/2026 PST

Sq Ft
3,074 FT²

Beds
3

Baths
3.5

Stories
2

Garage
2

Depth
60'

Width
68'
On Sale
$1,276.00
$1,595.00
© copyright by designer
 View All 4 Images | Photographs may reflect modified home
Sq Ft
3,074 FT²
Beds
3
Baths
3.5
Stories
2
Garage
2
Depth
60'
Width
68'
 
Click to Zoom In on Floor Plan
© copyright by designer
 
 

About This Plan

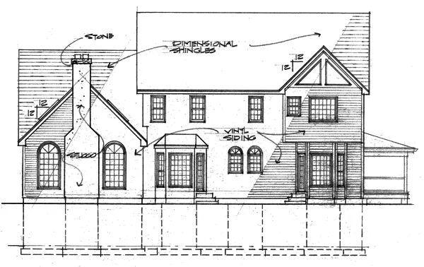
The eye-catching elevation is but a hint of the excitement you'll find in this dramatic new farm house design! The wrap-a-round porch awaits rocking chairs and a swing. The two story foyer provides an immediate feeling of spaciousness which characterizes this open and roomy floor plan. Highlights of the lower level include: A study, a music room, a large 13' by 15' dining room, a mud room, a large kitchen/breakfast room, a 20' by 24' family room with a vaulted ceiling and sky lights, and a large deck with multiple access.
The upper level features a vaulted master suite with his and hers closets and a luxurious bath. The laundry includes a laundry tub and two closets. The growing family will appreciate the space for expansion, a 14' by 32' bonus room.
 

See All Plan Options
 

FEATURES & DETAILS

Exterior features
Wraparound Porch
Foundation Options
Basement
Garage Location
Side
Garage Options
Attached
3,074 Ft
2
Total Heated
1,881 Ft
2
1st Floor
1,193 Ft
2
2nd Floor
3
Bedrooms
3.5
Bathrooms
2
Garage
2
Stories
68' 0"
Width
60' 0"
Depth
35' 0"
Height
9' 0"
Main Floor Ceiling
8' 0"
Upper Floor Ceiling
2x4
Framing
Stick
Roof Framing
12/12
Primary Roof Pitch
Single
Dwelling Number
2nd Floor
Bonus Access

Unheated Living Space
433 Ft
2
Bonus Room
 

Plan Package Options

 Select Plan Package
  Select Foundation Option
  Add-Ons (Optional)
INCLUDED WITH YOUR PURCHASE

Free Ground shipping in the U.S.

FREE

Home Building & Product Ideas Organizer

Sub Total
$0
Free Shipping
QUESTIONS OR NEED HELP ORDERING? LIVE CHAT OR CALL US AT 866-214-2242
Plan Packages

Each set of construction documents includes detailed, dimensioned floor plans, basic electric layouts, cross sections, roof details, cabinet layouts and elevations, as well as general IRC specifications. They contain virtually all of the information required to construct your home. The typical plan set does not include any plumbing, HVAC drawings, or engineering stamps due to the wide variety of specific needs, local codes, and climatic conditions. These details and specifications are easily obtained from your builder, contractors, and/or local engineers.

BEST PRICE GUARANTEE

Find the same house plan (modifications included!) and package for less on another site, show us the URL and we'll give you the difference plus an additional 10% back.

100% SATISFACTION GUARANTEE

We offer a one-time, 30-day exchange policy for unused, printed plan packages in the event you aren't satisfied with your first selection.

 
 

Plan 7626  Back to plan page

Loading...