Get discounts,
promos, see our
newest plans
and more!
+ 15% off any plan
See terms opt out anytime


No Thanks

Thanks for
signing up!


Use Code:

SIGNUP15

And save 15% off any plan!

Check your email for details.

CLOSE
Search Plans
Customer Reviews
     
15% off ALL House Plans Sitewide
15% off ALL House Plans Sitewide
15% off ALL House Plans Sitewide

Code: HONOR
Sale ends midnight 5/29/2026 PST

The Pecan Trail Affordable Country Style House, Plan 6532

 
 

Sq Ft
1,531 FT²

Beds
3

Baths
2

Stories
1

Garage
2

Depth
52' 8"

Width
54' 8"
On Sale
$1,020.00
$1,200.00
© copyright by designer
 View All 3 Images | Photographs may reflect modified home
Sq Ft
1,531 FT²
Beds
3
Baths
2
Stories
1
Garage
2
Depth
52' 8"
Width
54' 8"
 
Click to Zoom In on Floor Plan
© copyright by designer
 
 

About This Plan

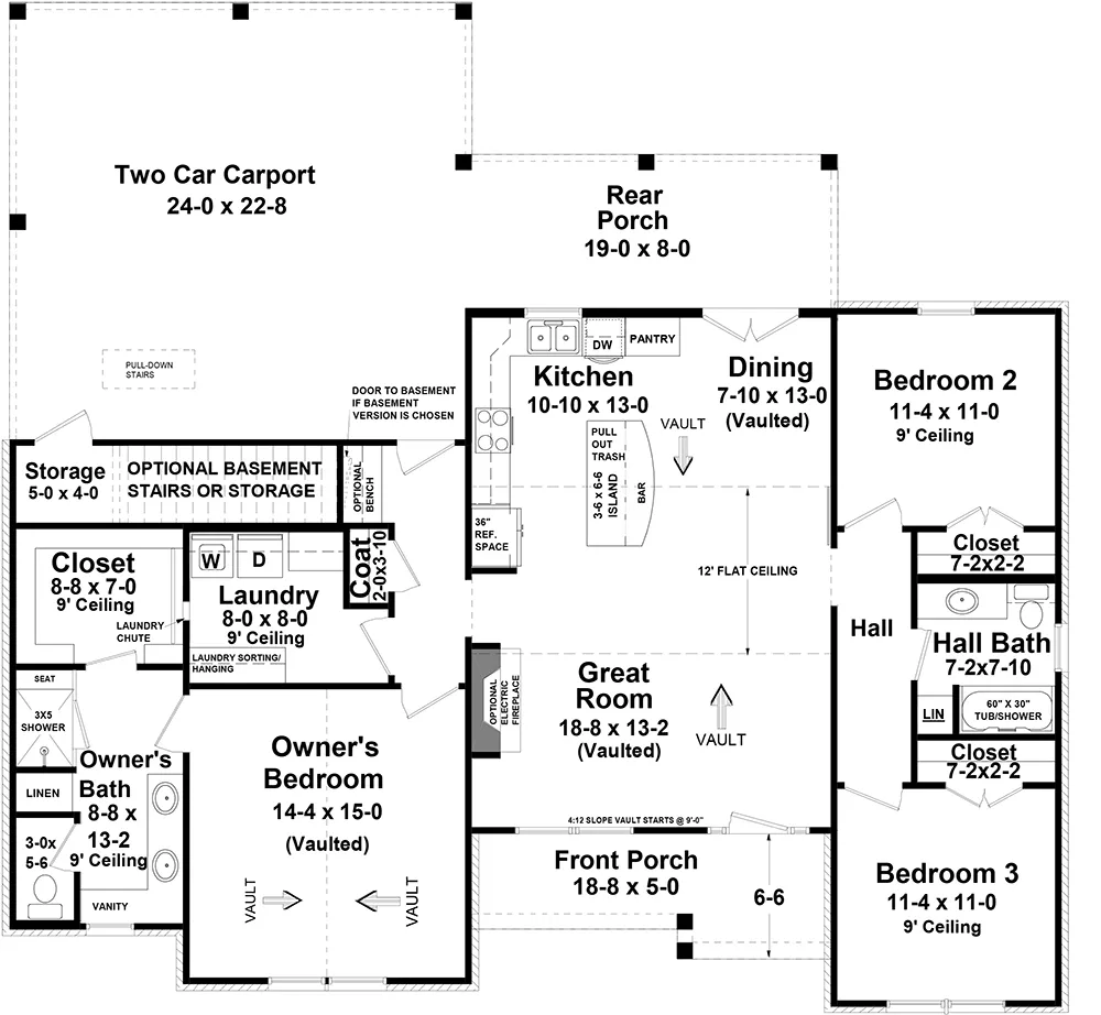
Whether you are a young family excited about building your first home or you are ready to downsize and enjoy your grandchildren, this 1 story 3 bedroom 2 bath charming farmhouse has a layout that is functional yet feels spacious and is elevated in style.

Entering the 1,531 sq.ft. home, your guests will feel the expansiveness of the great open room that’s also accentuated with a 12 foot vault that leads to a flat 12’ ceiling over the kitchen and shared living space. There’s an optional electric fireplace, the cook of the home will love the additional countertop space of the built in bar and the coveted window over the kitchen sink. The covered outdoor porch is a perfect spot for weekend bbqs and Easter Egg hunts.

The split bedroom floor plan has the master suite taking up the entire left side of the home with the laundry being strategically placed for organization and ease. There’s even a clever laundry chute from the master closet. There won’t be any referees needed when the two secondary bedrooms are up for grabs because they are identical and share a hallway bath. (An optional basement plan is available.) 

See All Plan Options
 

FEATURES & DETAILS

Kitchen features
Country Kitchen
Kitchen Island
L-Shaped
Pantry
Peninsula / Eating Bar
Bedroom features
Double Vanity Sink
Primary Bdrm Main Floor
Split Bedrooms
Walk-in Closet
Exterior features
Covered Front Porch
Covered Rear Porch
Additional features
Fireplace
Great Room
Laundry 1st Fl
Open Floor Plan
Storage Space
Unfinished Space
Vaulted Great Room/Living
Vaulted Kitchen
Vaulted Primary
Garage Location
Rear
Garage Options
Attached
Carport
Rear-entry
2,404 Ft
2
Total Structure
1,531 Ft
2
Total Heated
1,531 Ft
2
1st Floor
3
Bedrooms
2
Bathrooms
2
Garage
1
Stories
54' 8"
Width
52' 8"
Depth
20' 3"
Height
9' 0"
Main Floor Ceiling
2x4
Framing
Stick
Roof Framing
8:12
Primary Roof Pitch
None
Secondary Roof Pitch
Single
Dwelling Number

Unheated Living Space
611 Ft
2
Garage
106 Ft
2
Porch
 

Plan Package Options

 Select Plan Package
 Need To Reverse Plan? (Optional)
  Select Foundation Option
  Add-Ons (Optional)
INCLUDED WITH YOUR PURCHASE

Free Ground shipping in the U.S.

FREE

Home Building & Product Ideas Organizer

Sub Total
$0
Free Shipping
QUESTIONS OR NEED HELP ORDERING? LIVE CHAT OR CALL US AT 866-214-2242
Plan Packages

Each set of construction documents typically includes detailed, dimensioned floor plans, basic electric layouts, cross sections, roof details, cabinet layouts, and elevations, as well as general IRC specifications. Please refer to the ARCHITECT or DESIGNER’S PLAN DETAILS link above the floor plan on any plan page to determine the specific details for each plan. Our house plans contain virtually all of the information required to construct your home. The typical plan set does not include plumbing, HVAC drawings, or engineering stamps due to the wide variety of specific needs, local codes, and climatic conditions. These details and specifications are easily obtained from your builder, contractors, and/or local engineers.

BEST PRICE GUARANTEE

Find the same house plan (modifications included!) and package for less on another site, show us the URL and we'll give you the difference plus an additional 10% back.

100% SATISFACTION GUARANTEE

We offer a one-time, 30-day exchange policy for unused, printed plan packages in the event you aren't satisfied with your first selection.

 
 

Plan 6532  Back to plan page

Loading...