Get discounts,
promos, see our
newest plans
and more!
+ 15% off any plan
See terms opt out anytime


No Thanks

Thanks for
signing up!


Use Code:

SIGNUP15

And save 15% off any plan!

Check your email for details.

CLOSE
Search Plans
Customer Reviews
     
22% Off House Plans Sitewide Ends Friday

Code: SAVE22
Sale ends midnight 12/5/2025 PST

Sq Ft
1,900 FT²

Beds
4

Baths
2.5

Stories
1.5

Garage
2

Depth
54'

Width
57'
From
$851.00
© copyright by designer
 View All 5 Images | Photographs may reflect modified home
Sq Ft
1,900 FT²
Beds
4
Baths
2.5
Stories
1.5
Garage
2
Depth
54'
Width
57'
 
Click to Zoom In on Floor Plan
© copyright by designer
 
 

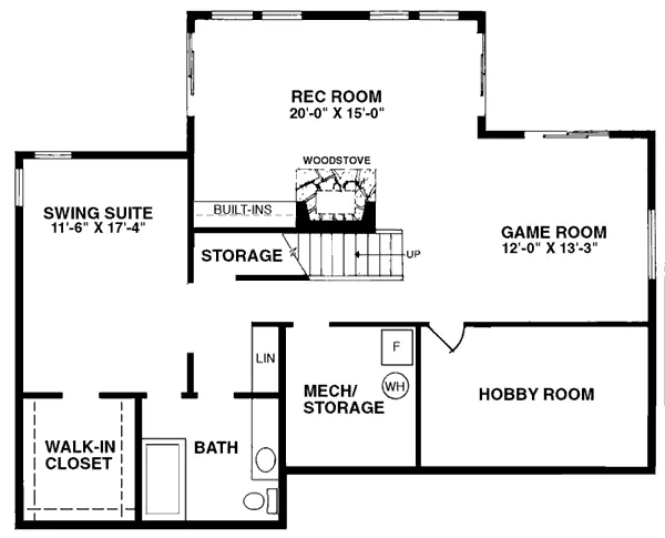
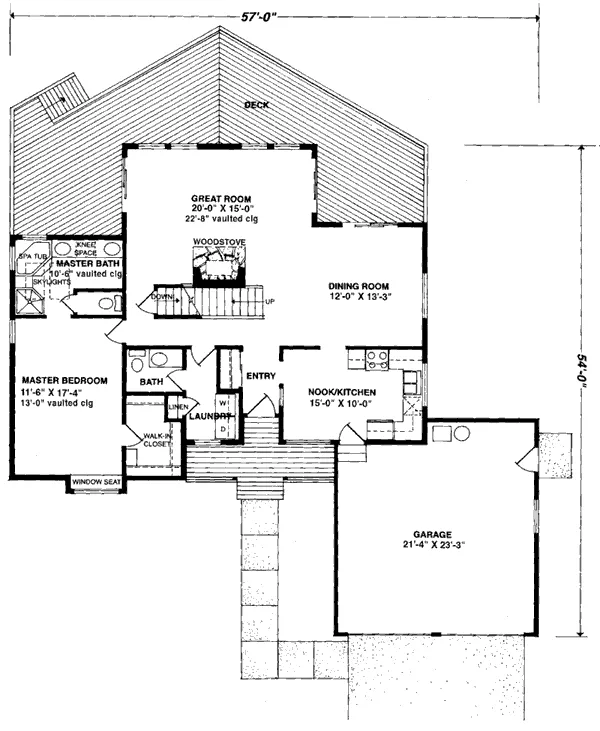
About This Plan

A scenic or sloping lot can be accommodated nicely with this wonderful walk-out design. Inside, the Great Room boasts an energy-efficient woodstove and two sets of sliding glass doors to the deck. Easy access from the kitchen to the garage saves steps when unloading groceries. 

See All Plan Options
 

FEATURES & DETAILS

Foundation Options
Basement
Daylight Basement
Lot Options
Suited for sloping lot
Suited for view lot
Garage Location
Front
Garage Options
Attached
Front-entry
1,900 Ft
2
Total Heated
1,340 Ft
2
1st Floor
560 Ft
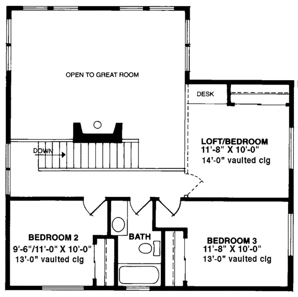
2
2nd Floor
1,340 Ft
2
Lower Floor
4
Bedrooms
2.5
Bathrooms
2
Garage
1.5
Stories
57' 0"
Width
54' 0"
Depth
27' 0"
Height
2x6
Framing
Combination
Roof Framing
Single
Dwelling Number
None
Bonus Access

Unheated Living Space
 

Plan Package Options

 Select Plan Package
$544
PDF Bid Set
PDFs NOW!™

Home plans stamped "NOT FOR CONSTRUCTION" for cost estimating and bidding purposes only; a minimum 5 set plan package must be purchased within 90 days for a license to build plan set; a credit will be applied towards your house plan upgrade

$544
$851
PDF Single Build
PDFs NOW!™

Digital plans emailed to you in PDF format that allows for printing copies and sharing electronically with contractors, subs, decorators, and more. This package includes a license to build the home one time.

$851
  Select Foundation Option
  Add-Ons (Optional)
INCLUDED WITH YOUR PURCHASE

Free Ground shipping in the Continental U.S.

FREE

Design consultation with the architect or designer to discuss your plan

Home Building & Product Ideas Organizer

Sub Total
$0
Free Shipping
QUESTIONS OR NEED HELP ORDERING? LIVE CHAT OR CALL US AT 866-214-2242
Plan Packages

Each set of construction documents includes detailed, dimensioned floor plans, basic electric layouts, cross sections, roof details, cabinet layouts and elevations, as well as general IRC specifications. They contain virtually all of the information required to construct your home. The typical plan set does not include any plumbing, HVAC drawings, or engineering stamps due to the wide variety of specific needs, local codes, and climatic conditions. These details and specifications are easily obtained from your builder, contractors, and/or local engineers.

BEST PRICE GUARANTEE

find the same house plan (modifications included!) and package for less on another site, show us the URL and we'll give you the difference plus an additional 5% back.

100% SATISFACTION GUARANTEE

We offer a one-time, 30-day exchange policy for unused, non-electronic plan packages in the event you aren't satisfied with your first selection.

 
 

Plan 1460  Back to plan page

Loading...