Get discounts,
promos, see our
newest plans
and more!
+ 15% off any plan
See terms opt out anytime


No Thanks

Thanks for
signing up!


Use Code:

SIGNUP15

And save 15% off any plan!

Check your email for details.

CLOSE
Search Plans
Customer Reviews
     

Sq Ft
3,260 FT²

Beds
4

Baths
4

Stories
2

Garage
2

Depth
46'

Width
60'
From
$1,595.00
© copyright by designer
 View All 4 Images | Photographs may reflect modified home
Sq Ft
3,260 FT²
Beds
4
Baths
4
Stories
2
Garage
2
Depth
46'
Width
60'
 
Click to Zoom In on Floor Plan
© copyright by designer
 
 

About This Plan

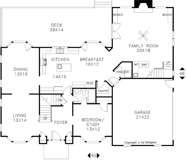
This 3,260 sq.ft. European stucco home features a dramatic two-story foyer with double coat closets. The convenient first floor bedroom with full bath can also be used as a study. The spacious kitchen and breakfast room area features a center island, built-in desk, walk-in pantry and separate freezer room. The large open family room has a fireplace, two built-in bookcases and an L-shaped wet bar. The 39'x14' deck is accessible from the family room as well as the dining and breakfast rooms. The upper level is accessible by front or back stairs. The master suite with trey ceiling features his and hers walk-in closets, separate vanities in master bath and separate shower and garden tub. The large upper level laundry has a laundry tub and linen storage. Bedroom #2 has its own access to the hall bath. Bedrooms #3 and #4 share a private bath. 

See All Plan Options
 

FEATURES & DETAILS

Exterior features
No Porch
Foundation Options
Basement
Daylight Basement
Garage Location
Side
Garage Options
Attached
3,260 Ft
2
Total Heated
1,735 Ft
2
1st Floor
1,525 Ft
2
2nd Floor
4
Bedrooms
4
Bathrooms
2
Garage
2
Stories
60' 0"
Width
46' 0"
Depth
34' 0"
Height
9' 0"
Main Floor Ceiling
8' 0"
Upper Floor Ceiling
2x4
Framing
Stick
Roof Framing
12/12
Primary Roof Pitch
Single
Dwelling Number
None
Bonus Access

Unheated Living Space
 

Plan Package Options

 Select Plan Package
$1,645
5 Printed Sets

Five Printed Sets of Residential Construction Drawings are typically 24” x 36” documents and come with a license to construct a single residence shipped to a physical address. Keep in mind PDF Plan Packages are our most popular choice which allows you to print as many copies as you need and to electronically send files to your builder, subcontractors, etc.

$1,645
$1,695
8 Printed Sets

Eight Printed Sets of Construction Drawings, typically 24” x 36” documents, with a license to construct a single residence shipped to your physical address. PDF Plan Packages are our most popular choice which allows you to print as many copies as you need and to electronically send files to your builder, subcontractors, bank/mortgage reps, material stores, decorators and more.

$1,695
$1,595
PDF Single Build
PDFs NOW!™

Digital plans emailed to you in PDF format that allows for printing copies and sharing electronically with contractors, subs, decorators, and more. This package includes a license to build the home one time.

$1,595
  Select Foundation Option
  Add-Ons (Optional)
INCLUDED WITH YOUR PURCHASE

Free Ground shipping in the Continental U.S.

FREE

Home Building & Product Ideas Organizer

Sub Total
$0
Free Shipping
QUESTIONS OR NEED HELP ORDERING? LIVE CHAT OR CALL US AT 866-214-2242
Plan Packages

Each set of construction documents includes detailed, dimensioned floor plans, basic electric layouts, cross sections, roof details, cabinet layouts and elevations, as well as general IRC specifications. They contain virtually all of the information required to construct your home. The typical plan set does not include any plumbing, HVAC drawings, or engineering stamps due to the wide variety of specific needs, local codes, and climatic conditions. These details and specifications are easily obtained from your builder, contractors, and/or local engineers.

BEST PRICE GUARANTEE

Find the same house plan (modifications included!) and package for less on another site, show us the URL and we'll give you the difference plus an additional 5% back.

100% SATISFACTION GUARANTEE

We offer a one-time, 30-day exchange policy for unused, printed plan packages in the event you aren't satisfied with your first selection. Exchanges are subject to a 20% restocking fee.

 
 

Plan 7630  Back to plan page

Loading...