Get discounts,
promos, see our
newest plans
and more!
+ 15% off any plan
See terms opt out anytime


No Thanks

Thanks for
signing up!


Use Code:

SIGNUP15

And save 15% off any plan!

Check your email for details.

CLOSE
Search Plans
Customer Reviews
     
15% off ALL House Plans Sitewide
15% off ALL House Plans Sitewide
15% off ALL House Plans Sitewide

Code: SAVE15
Sale ends midnight 4/19/2026 PST

Sq Ft
2,447 FT²

Beds
4

Baths
2.5

Stories
1

Garage
2

Depth
62'

Width
73' 6"
On Sale
$1,190.00
$1,400.00
© copyright by designer
 View All 7 Images | Photographs may reflect modified home
Sq Ft
2,447 FT²
Beds
4
Baths
2.5
Stories
1
Garage
2
Depth
62'
Width
73' 6"
 
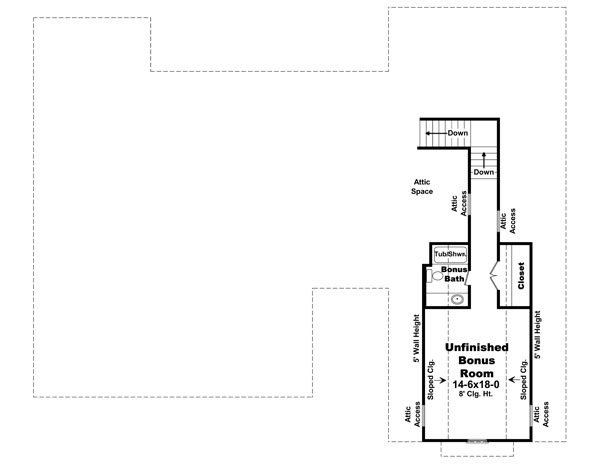
Click to Zoom In on Floor Plan
© copyright by designer
 
 

About This Plan

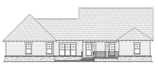
Looking for the house that has it all? Then look no further. This beautiful Craftsman design features all the things that make a house a home. Four over-sized bedrooms are complimented by large walk-in closets, and the flex space provides a perfect spot for that home office, playroom, or dining room. A breakfast area, and raised bar all provide spaces for those family meals with close access to the fully equipped kitchen. The great room includes gas logs, a coffered ceiling, and beautiful views to the covered rear porch beyond. The master bedroom also features trayed ceilings and the master bathroom leaves nothing to be desired. The expansive garage provides plenty of room for oversized trucks and SUV's and also includes a large storage area. The bonus room as well as the full basement provide excellent spaces for future expansion or for additional storage. This is the perfect home for you and your family! 

See All Plan Options
 

FEATURES & DETAILS

Kitchen features
Country Kitchen
Kitchen Island
Nook / Breakfast Area
Peninsula / Eating Bar
Walk-in Pantry
Bedroom features
Double Vanity Sink
His and Hers Primary Closets
Primary Bdrm Main Floor
Separate Tub and Shower
Split Bedrooms
Walk-in Closet
Exterior features
Covered Front Porch
Covered Rear Porch
Front Porch
Rear Porch
Foundation Options
Basement
Lot Options
Suited for corner lot
Suited for sloping lot
Suited for view lot
Additional features
Bonus Room
Dining Room
Exercise Room
Family Room
Fireplace
Formal LR
Foyer
Great Room
Home Office
Laundry 1st Fl
Library/Media Rm
Open Floor Plan
Storage Space
Unfinished Space
Workshop
Garage Location
Side
Garage Options
Attached
Oversized
2,447 Ft
2
Total Heated
2,447 Ft
2
1st Floor
4
Bedrooms
2.5
Bathrooms
2
Garage
1
Stories
73' 6"
Width
62' 0"
Depth
24' 11"
Height
9' 0"
Main Floor Ceiling
8' 0"
Upper Floor Ceiling
2x4
Framing
Stick
Roof Framing
8/12
Primary Roof Pitch
12:12
Secondary Roof Pitch
Single
Dwelling Number
2nd Floor
Bonus Access

Unheated Living Space
773 Ft
2
Garage
437 Ft
2
Storage
436 Ft
2
Bonus Room
 

Plan Package Options

 Select Plan Package
 Need To Reverse Plan? (Optional)
  Select Foundation Option
  Add-Ons (Optional)
INCLUDED WITH YOUR PURCHASE

Free Ground shipping in the U.S.

FREE

Home Building & Product Ideas Organizer

Sub Total
$0
Free Shipping
QUESTIONS OR NEED HELP ORDERING? LIVE CHAT OR CALL US AT 866-214-2242
Plan Packages

Each set of construction documents typically includes detailed, dimensioned floor plans, basic electric layouts, cross sections, roof details, cabinet layouts, and elevations, as well as general IRC specifications. Please refer to the ARCHITECT or DESIGNER’S PLAN DETAILS link above the floor plan on any plan page to determine the specific details for each plan. Our house plans contain virtually all of the information required to construct your home. The typical plan set does not include plumbing, HVAC drawings, or engineering stamps due to the wide variety of specific needs, local codes, and climatic conditions. These details and specifications are easily obtained from your builder, contractors, and/or local engineers.

BEST PRICE GUARANTEE

Find the same house plan (modifications included!) and package for less on another site, show us the URL and we'll give you the difference plus an additional 10% back.

100% SATISFACTION GUARANTEE

We offer a one-time, 30-day exchange policy for unused, printed plan packages in the event you aren't satisfied with your first selection.

Customer Reviews of House Plan 8561
4/12/2013
Rodriguez of Woodbridge, VA
Customer Review:
The salesperson got back to me very quickly and had superb knowledge of home building plans and the process. Had a good relation with the designer and that part went smoothly as well to make the changes that we requested.

SEE All Reviews
 
 

Plan 8561  Back to plan page

Loading...