Get discounts,
promos, see our
newest plans
and more!
+ 15% off any plan
See terms opt out anytime


No Thanks

Thanks for
signing up!


Use Code:

SIGNUP15

And save 15% off any plan!

Check your email for details.

CLOSE
Search Plans
Customer Reviews
     
15% Off House Plans Sitewide Ends Sunday

Code: SAVE15
Sale ends midnight 1/11/2026 PST

Sq Ft
2,458 FT²

Beds
2

Baths
2

Stories
2

Garage
2

Depth
70'

Width
33' 10"
From
$879.00
© copyright by designer
 View All 6 Images | Photographs may reflect modified home
Sq Ft
2,458 FT²
Beds
2
Baths
2
Stories
2
Garage
2
Depth
70'
Width
33' 10"
 
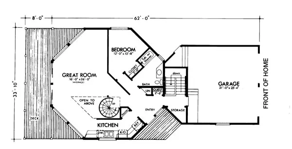
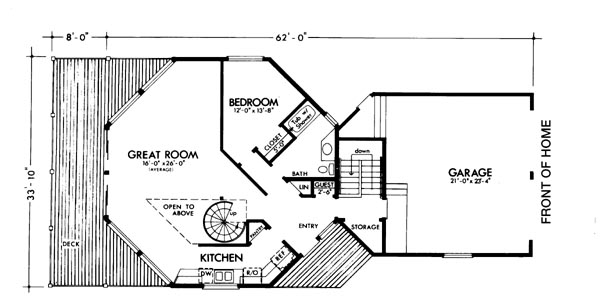
Click to Zoom In on Floor Plan
© copyright by designer
 
 

About This Plan

 

See All Plan Options
 

FEATURES & DETAILS

Kitchen features
Walk-in Pantry
Exterior features
Deck
Wraparound Porch
Foundation Options
Basement
Crawlspace
Daylight Basement
Lot Options
Suited for narrow lot
Garage Location
Side
Garage Options
Attached
2,458 Ft
2
Total Heated
1,067 Ft
2
1st Floor
346 Ft
2
2nd Floor
1,045 Ft
2
Lower Floor
2
Bedrooms
2
Bathrooms
2
Garage
2
Stories
33' 10"
Width
70' 0"
Depth
2x6
Framing
Single
Dwelling Number

Unheated Living Space
512 Ft
2
Garage
 

Plan Package Options

 Select Plan Package
$583
PDF Bid Set

Home plans stamped "NOT FOR CONSTRUCTION" for cost estimating and bidding purposes only; a minimum 5 set plan package must be purchased within 90 days for a license to build plan set; a credit will be applied towards your house plan upgrade

$583
$879
PDF Single Build

Digital plans emailed to you in PDF format that allows for printing copies and sharing electronically with contractors, subs, decorators, and more. This package includes a license to build the home one time.

$879
  Select Foundation Option
  Add-Ons (Optional)
INCLUDED WITH YOUR PURCHASE

Free Ground shipping in the Continental U.S.

FREE

Home Building & Product Ideas Organizer

Sub Total
$0
Free Shipping
QUESTIONS OR NEED HELP ORDERING? LIVE CHAT OR CALL US AT 866-214-2242
Plan Packages

Each set of construction documents includes detailed, dimensioned floor plans, basic electric layouts, cross sections, roof details, cabinet layouts and elevations, as well as general IRC specifications. They contain virtually all of the information required to construct your home. The typical plan set does not include any plumbing, HVAC drawings, or engineering stamps due to the wide variety of specific needs, local codes, and climatic conditions. These details and specifications are easily obtained from your builder, contractors, and/or local engineers.

BEST PRICE GUARANTEE

Find the same house plan (modifications included!) and package for less on another site, show us the URL and we'll give you the difference plus an additional 5% back.

100% SATISFACTION GUARANTEE

We offer a one-time, 30-day exchange policy for unused, printed plan packages in the event you aren't satisfied with your first selection. Exchanges are subject to a 20% restocking fee.

 
 

Plan 6130  Back to plan page

Loading...